Se Connecter/S’inscrire
Votre courriel a été envoyé.
Certaines informations ont été traduites automatiquement.
Résumé de l'annonce
The property is located on Lispenard Street, part of the SoHo/Tribeca submarket in Lower Manhattan. The area is a hub for luxury retail, design-oriented brands, and cultural attractions. The neighborhood is predominantly mixed-use with strong pedestrian activity, excellent visibility, and close proximity to multiple subway lines including N, Q, R, 6, and A/C/E stations.
1 Unité disponible
Unité 49
| Taille de l’unité | 4 400 pi² | Type de vente | Investissement ou propriétaire utilisateur |
| Utilisation du condo | Commerce de détail |
| Taille de l’unité | 4 400 pi² |
| Utilisation du condo | Commerce de détail |
| Type de vente | Investissement ou propriétaire utilisateur |
Description
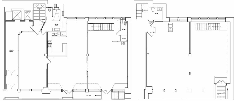
- Architecturally significant with high functionality
- Three large spaces that can be combined. Only 2 columns
- Large windows in the front and back
- 2 luxurious restrooms on the ground floor with showers + additional restroom in the lower level
- Five individual HVAC units plus radiator heating
- Accessible via two exterior doors and the residential lobby. ADA accessible
Sidewalk gate with stairs directly into the French basement
Notes sur la vente
Co-Op Maintenance: $8,800/month
Interior Photo
Interior Photo
Floor Plan
Interior Photo
1 de 4
Vidéos
Visite extérieure 3D Matterport
Visite 3D Matterport
Photos
Vue depuis la rue
Rue
Carte
Faits sur la propriété
Les caractéristiques et les équipements suivants s'appliquent à l'ensemble du bâtiment. Les détails relatifs aux unités de copropriété individuelles peuvent varier et figurent dans les informations concernant les unités ci-dessus.
| Taille totale du bâtiment | 35 973 pi² | Planchers | 9 |
| Type de propriété | Immeuble residentiel (Condo) | Superficie de plancher typique | 4 740 pi² |
| Sous-type de propriété | Appartement | Année de construction | 1920 |
| Classe d’immeuble | B | Taille du lot | 0,10 AC |
| Zonage | M1-5 | ||
| Taille totale du bâtiment | 35 973 pi² |
| Type de propriété | Immeuble residentiel (Condo) |
| Sous-type de propriété | Appartement |
| Classe d’immeuble | B |
| Planchers | 9 |
| Superficie de plancher typique | 4 740 pi² |
| Année de construction | 1920 |
| Taille du lot | 0,10 AC |
| Zonage | M1-5 |
Commodités
Commodités du site
- Accès 24 heures
- Centre de conditionnement physique
- CVCA contrôlé par le locataire
- Recyclage
- Pistes cyclables/Piétonnières
- Ascenseur
- Entretien sur place
- Sans ascenseur
- Détecteur de fumée
Unité renseignements sur le mélange
| Description | Nombre d’unités | Loyer moyen/mois | pi² |
|---|---|---|---|
| Studios | 18 | - | - |
Exceptionnellement praticable à pied
100/100
Relativement facile d’accès en voiture
30/100
Transports en commun exceptionnels
100/100
Très praticable en vélo
80/100
1 de 3
Vidéos
Visite extérieure 3D Matterport
Visite 3D Matterport
Photos
Vue depuis la rue
Rue
Carte
Présenté par
45 Lispenard St
Vous êtes déjà membre? Connectez-vous
Hmm, il semble y avoir eu une erreur lors de l’envoi de votre message. Veuillez réessayer.
Merci! Votre message a été envoyé.



