Votre courriel a été envoyé.
Certaines informations ont été traduites automatiquement.
Faits saillants du parc
- Zonage : I-2 (industrie lourde)
- Excellente visibilité et accès direct à la boucle 410. Moins d'une minute de/vers l'I-35.
- Configuration à chargement frontal
- Suites prêtes pour l'emménagement disponibles (éclairage d'entrepôt à DEL, nouvelles finitions de bureau)
- Entreposage extérieur clôturé disponible
- Situé à quelques minutes du centre-ville de San Antonio et du campus industriel de HEB.
Faits sur le parc
Caractéristiques et commodités
- Terrain clôturé
- Visibilité de l'autoroute
Tous les espaces disponibles(3)
Afficher les taux de location en
- Espace
- Taille
- Terme
- Taux de location
- Utilisation de l’espace
- Aménagement
- Disponible
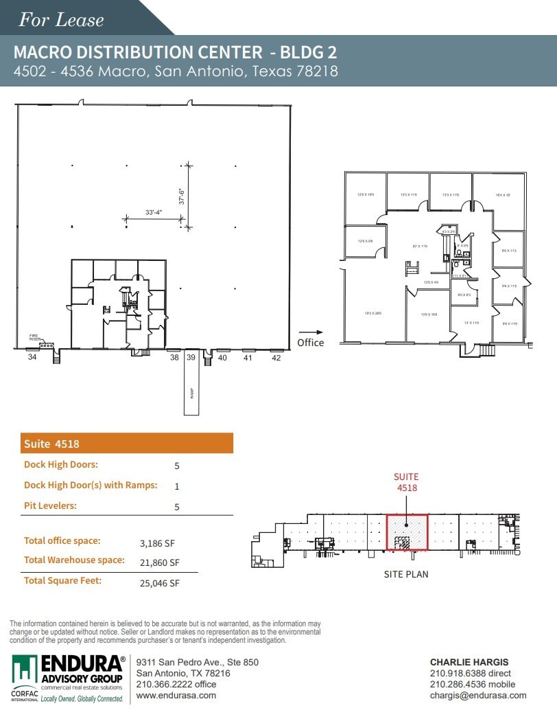
Position your operations at Macro Distribution Center – Building 2, a premier industrial facility strategically located in San Antonio’s thriving distribution corridor. This property offers exceptional functionality for logistics and warehousing, featuring a generous clear height of 22 feet and five dock-high doors equipped with pit levelers for efficient loading and unloading. A dedicated ramp and rear overhead doors enhance ventilation and operational flexibility. Suite 4518 delivers a balanced configuration of warehouse and office space, ideal for businesses seeking streamlined distribution capabilities with administrative convenience. The site’s proximity to major transportation arteries ensures seamless regional connectivity, supporting rapid access to I-35, I-10, and Loop 410 for efficient freight movement across Texas and beyond. San Antonio’s robust industrial market, coupled with its central location and growing population base, makes this an optimal choice for companies looking to expand or consolidate operations. Benefit from a business-friendly environment and strong labor pool while positioning your enterprise in a facility designed for performance and scalability.
- 1 accès plain-pied
- 5 quais de chargement
- Five dock-high doors with pit levelers
- Dedicated office space
- Espace en excellent état
- Strategic location
- 22-foot clear height
- Easy access to major highways
| Espace | Taille | Terme | Taux de location | Utilisation de l’espace | Aménagement | Disponible |
| 1er étage - 4518 | 25 046 pi² | Négociable | Sur demande Sur demande Sur demande Sur demande | Industriel | construction partielle | Maintenant |
4502-4536 Macro - 1er étage - 4518
- Espace
- Taille
- Terme
- Taux de location
- Utilisation de l’espace
- Aménagement
- Disponible
Contact Broker for Pricing
- Le taux de location ne comprend pas les services publics, les services de bâtiment ou les dépenses immobilières.
- 2 accès plain-pied
- Climatisation centrale
- Portes de quai avec rampes : 3
- Espace total à bureaux : 2 756 SF
- Comprend 1 305 pi² d’espace de bureau dédié
- 6 quais de chargement
- Portes de quai : 3
- Portes de rail : 3
| Espace | Taille | Terme | Taux de location | Utilisation de l’espace | Aménagement | Disponible |
| 1er étage - 4519 | 20 000 pi² | Négociable | Sur demande Sur demande Sur demande Sur demande | Industriel | construction complète | Maintenant |
4501-4525 Macro - 1er étage - 4519
- Espace
- Taille
- Terme
- Taux de location
- Utilisation de l’espace
- Aménagement
- Disponible
Contact Broker for Pricing
- Le taux de location ne comprend pas les services publics, les services de bâtiment ou les dépenses immobilières.
- 1 accès plain-pied
- Climatisation centrale
- Comprend 2 016 pi² d’espace de bureau dédié
- 5 quais de chargement
| Espace | Taille | Terme | Taux de location | Utilisation de l’espace | Aménagement | Disponible |
| 1er étage - 4706 | 27 300 pi² | Négociable | Sur demande Sur demande Sur demande Sur demande | Industriel | construction complète | Maintenant |
4700-4718 Macro - 1er étage - 4706
4502-4536 Macro - 1er étage - 4518
| Taille | 25 046 pi² |
| Terme | Négociable |
| Taux de location | Sur demande |
| Utilisation de l’espace | Industriel |
| Aménagement | construction partielle |
| Disponible | Maintenant |
Position your operations at Macro Distribution Center – Building 2, a premier industrial facility strategically located in San Antonio’s thriving distribution corridor. This property offers exceptional functionality for logistics and warehousing, featuring a generous clear height of 22 feet and five dock-high doors equipped with pit levelers for efficient loading and unloading. A dedicated ramp and rear overhead doors enhance ventilation and operational flexibility. Suite 4518 delivers a balanced configuration of warehouse and office space, ideal for businesses seeking streamlined distribution capabilities with administrative convenience. The site’s proximity to major transportation arteries ensures seamless regional connectivity, supporting rapid access to I-35, I-10, and Loop 410 for efficient freight movement across Texas and beyond. San Antonio’s robust industrial market, coupled with its central location and growing population base, makes this an optimal choice for companies looking to expand or consolidate operations. Benefit from a business-friendly environment and strong labor pool while positioning your enterprise in a facility designed for performance and scalability.
- 1 accès plain-pied
- Espace en excellent état
- 5 quais de chargement
- Strategic location
- Five dock-high doors with pit levelers
- 22-foot clear height
- Dedicated office space
- Easy access to major highways
4501-4525 Macro - 1er étage - 4519
| Taille | 20 000 pi² |
| Terme | Négociable |
| Taux de location | Sur demande |
| Utilisation de l’espace | Industriel |
| Aménagement | construction complète |
| Disponible | Maintenant |
Contact Broker for Pricing
- Le taux de location ne comprend pas les services publics, les services de bâtiment ou les dépenses immobilières.
- Comprend 1 305 pi² d’espace de bureau dédié
- 2 accès plain-pied
- 6 quais de chargement
- Climatisation centrale
- Portes de quai : 3
- Portes de quai avec rampes : 3
- Portes de rail : 3
- Espace total à bureaux : 2 756 SF
4700-4718 Macro - 1er étage - 4706
| Taille | 27 300 pi² |
| Terme | Négociable |
| Taux de location | Sur demande |
| Utilisation de l’espace | Industriel |
| Aménagement | construction complète |
| Disponible | Maintenant |
Contact Broker for Pricing
- Le taux de location ne comprend pas les services publics, les services de bâtiment ou les dépenses immobilières.
- Comprend 2 016 pi² d’espace de bureau dédié
- 1 accès plain-pied
- 5 quais de chargement
- Climatisation centrale
Aperçu du parc
Le Macro Distribution Center est situé près de l'intersection de l'Interstate 35 et de la boucle 410 dans le nord-est de San Antonio. Dans la zone de service de Fort Sam Houston et du centre médical militaire de San Antonio et de la zone de distribution de Rittiman également. Le projet offre un accès interétatique immédiat et des configurations fonctionnelles de chargement frontal. Situé à quelques minutes du centre-ville de San Antonio et du campus industriel de HEB.
Présenté par
Macro Distribution Center | San Antonio, TX 78218
Hmm, il semble y avoir eu une erreur lors de l’envoi de votre message. Veuillez réessayer.
Merci! Votre message a été envoyé.









