Se Connecter/S’inscrire
Votre courriel a été envoyé.
4545 Roosevelt Way NE
Seattle, WA 98105
Bureau Propriété À louer
·
53 416 pi²


Certaines informations ont été traduites automatiquement.
Faits saillants
- On-site parking at a ratio of 1/1,000 SF
- Secured access
Aperçu de la propriété
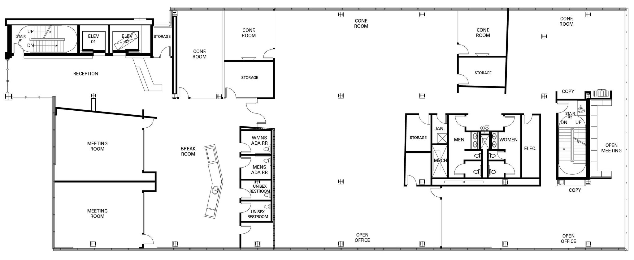
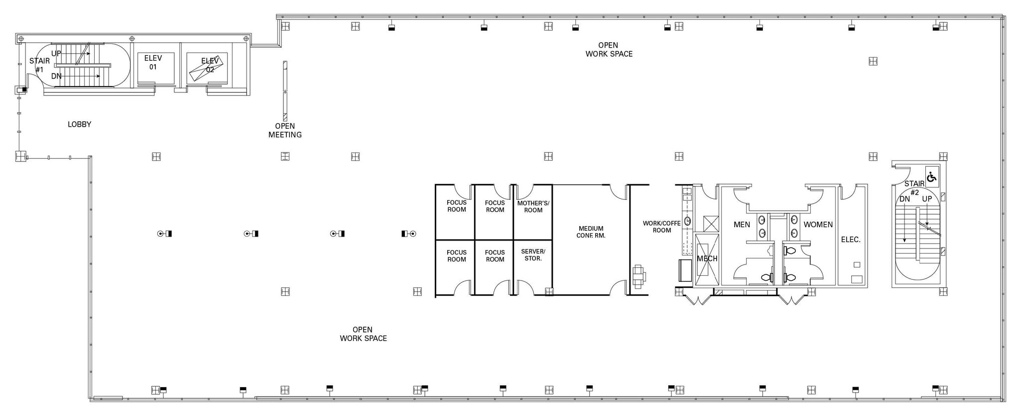
4545 Roosevelt Way NE offers four full floors of Class A office space in the heart of Seattle’s University District. Each floor totals approximately 13,346 RSF and will be delivered fully furnished and plug-and-play, providing a seamless solution for tenants seeking immediate occupancy and modern workspace functionality. Expansive window lines offer wraparound views to the north, east, south, and west – capturing the Cascades, Puget Sound, and South Lake Union.
Faits sur la propriété
Type de bâtiment
Bureau
Année de construction
2016
Hauteur du bâtiment
4 étages
Taille du bâtiment
54 676 pi²
Classe d’immeuble
A
Superficie de plancher typique
13 350 pi²
1 de 4
Vidéos
Visite extérieure 3D Matterport
Visite 3D Matterport
Photos
Vue depuis la rue
Rue
Carte
