Se Connecter/S’inscrire
Votre courriel a été envoyé.
Certaines informations ont été traduites automatiquement.
Faits saillants de l'investissement
- Ideal for owner-users and tenants seeking operational autonomy, strong branding presence, and simplified ownership.
- Conveniently positioned near I-80 and Highway 101 and just a short walk to BART and Caltrain, offering excellent accessibility.
- High-end finishes featuring high ceilings, fully equipped kitchen, on-site showers and deliverable completely furnished.
- Comprehensively renovated in 2004 with seismic upgrades, building-wide HVAC, and elevator service to all floors.
Résumé de l'annonce
455 9th Street presents a rare opportunity to acquire or lease a 14,475 square foot standalone commercial office building in the heart of the vibrant SoMa district. Prominently positioned on a corner lot, the property benefits from excellent visibility, abundant natural light, and immediate proximity to major freeway access points, providing convenient connectivity throughout the Bay Area. The building is improved with high-end interior finishes, creating a modern, design-forward environment well suited for a variety of business uses. Thoughtful amenities include a fully built-out kitchen with a gas range stove and an on-site shower, offering functionality and comfort that align with
today’s workplace expectations.
today’s workplace expectations.
Faits sur la propriété
Type de vente
Investissement ou propriétaire utilisateur
Type de propriété
Bureau
Taille du bâtiment
14 475 pi²
Classe d’immeuble
B
Année de construction/rénovation
1924/2004
Location
Unique
Hauteur du bâtiment
2 étages
Superficie de plancher typique
7 238 pi²
Coefficient d’occupation des sols de l’immeuble
2,00
Taille du lot
0,17 AC
Zonage
SALI, San Francisco
Commodités
- Accès 24 heures
- Installations de conférences
- Affichage
- Réception
- Climatisation
Principaux locataires
- Locataire
- Secteur
- pi² Occupé
- Loyer/pi²
- Fin du bail
- Isyndicate, Inc
- Information
- -
- -
- -
- Lieberman Productions
- Information
- -
- -
- -
- Philo TV
- -
- -
- -
- -
- Production Squared
- Information
- -
- -
- -
| Locataire | Secteur | pi² Occupé | Loyer/pi² | Fin du bail | ||
| Isyndicate, Inc | Information | - | - | - | ||
| Lieberman Productions | Information | - | - | - | ||
| Philo TV | - | - | - | - | ||
| Production Squared | Information | - | - | - |
Disponibilité des espaces
- Espace
- Taille
- Utilisation de l’espace
- Aménagement
- Disponible
| Espace | Taille | Utilisation de l’espace | Aménagement | Disponible |
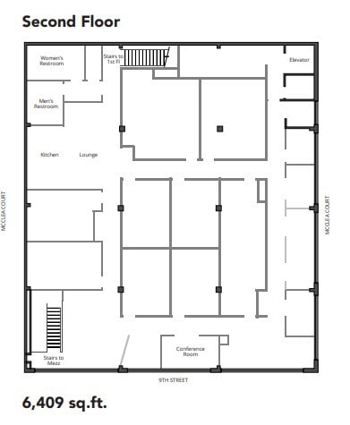
| 1er étage | 6 409 pi² | Bureau | construction complète | Juin 2026 |
| 2e étage | 6 409 pi² | Bureau | construction complète | Juin 2026 |
| Mezzanine | 1 657 pi² | Bureau | construction complète | Juin 2026 |
1er étage
| Taille |
| 6 409 pi² |
| Utilisation de l’espace |
| Bureau |
| Aménagement |
| construction complète |
| Disponible |
| Juin 2026 |
2e étage
| Taille |
| 6 409 pi² |
| Utilisation de l’espace |
| Bureau |
| Aménagement |
| construction complète |
| Disponible |
| Juin 2026 |
Mezzanine
| Taille |
| 1 657 pi² |
| Utilisation de l’espace |
| Bureau |
| Aménagement |
| construction complète |
| Disponible |
| Juin 2026 |
1 de 7
Vidéos
Visite extérieure 3D Matterport
Visite 3D Matterport
Photos
Vue depuis la rue
Rue
Carte
1er étage
| Taille | 6 409 pi² |
| Utilisation de l’espace | Bureau |
| Aménagement | construction complète |
| Disponible | Juin 2026 |
1 de 1
Vidéos
Visite extérieure 3D Matterport
Visite 3D Matterport
Photos
Vue depuis la rue
Rue
Carte
2e étage
| Taille | 6 409 pi² |
| Utilisation de l’espace | Bureau |
| Aménagement | construction complète |
| Disponible | Juin 2026 |
1 de 1
Vidéos
Visite extérieure 3D Matterport
Visite 3D Matterport
Photos
Vue depuis la rue
Rue
Carte
Mezzanine
| Taille | 1 657 pi² |
| Utilisation de l’espace | Bureau |
| Aménagement | construction complète |
| Disponible | Juin 2026 |
Exceptionnellement praticable à pied
90/100
Moyennement facile d’accès en voiture
70/100
Transports en commun exceptionnels
100/100
Moyennement praticable en vélo
60/100
Impôts fonciers
| Numéro de lot | 3757-046 | Évaluation des bâtiments | 1 795 566 $ CAD |
| Évaluation du terrain | 3 391 641 $ CAD | Évaluation totale | 5 187 207 $ CAD |
Impôts fonciers
Numéro de lot
3757-046
Évaluation du terrain
3 391 641 $ CAD
Évaluation des bâtiments
1 795 566 $ CAD
Évaluation totale
5 187 207 $ CAD
1 de 8
Vidéos
Visite extérieure 3D Matterport
Visite 3D Matterport
Photos
Vue depuis la rue
Rue
Carte
Présenté par
455-457 9th St
Vous êtes déjà membre? Connectez-vous
Hmm, il semble y avoir eu une erreur lors de l’envoi de votre message. Veuillez réessayer.
Merci! Votre message a été envoyé.











