Votre courriel a été envoyé.
Certaines informations ont été traduites automatiquement.
Faits saillants
- 455-457 Broadway est heureuse de se voir offrir de nouveaux espaces de bureaux créatifs de premier choix sur le marché de SoHo.
- Les grandes fenêtres permettent aux locataires professionnels de profiter d'une vue imprenable sur la ville.
- Au cœur de SoHo, à proximité des meilleurs magasins, restaurants et moyens de transport.
- L'édifice historique a continué d'être bien entretenu au fil des heures et offre de nouveaux ascenseurs et des loft modernes.
Tous les espaces disponibles(1)
Afficher les taux de location en
- Espace
- Taille
- Terme
- Taux de location
- Utilisation de l’espace
- Aménagement
- Disponible
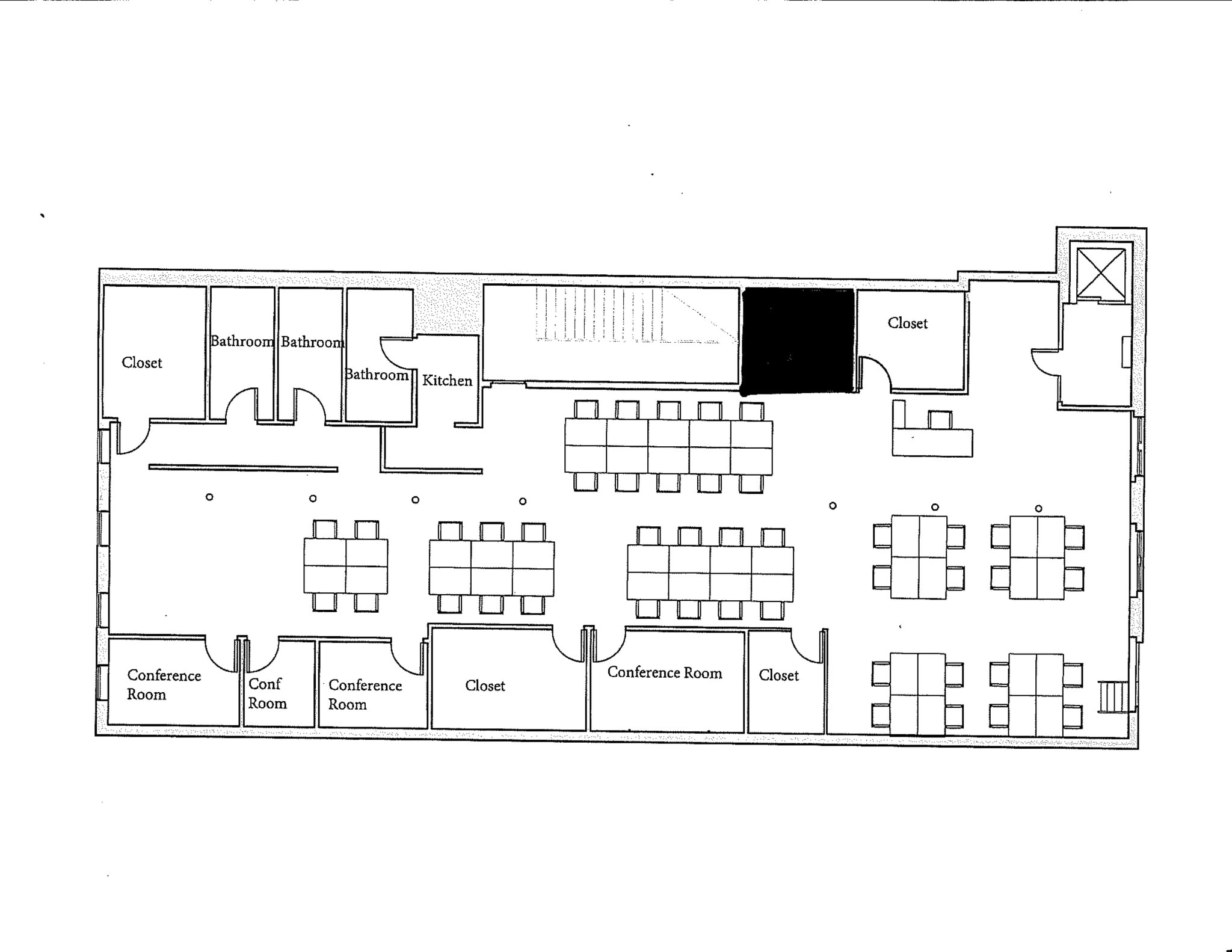
Full floor Soho office loft - ready to move in! Elevator opens to this 3rd floor with high ceilings, beautiful columns and hardwood floors offering perfect creative office /showroom/media/office space. Space is built with and 5 perimeter offices (layout can be adjusted) 2 sets of private bathrooms in addition to ADA bathroom and updated kitchen and HVAC in place. The mostly open layout provides flexibility for team collaboration or private offices as needed. All located in the heart of Soho - close to al the best shops, restaurants and means of transpotration. 24/7 Access Lease terms are flexible.
- Le taux inscrit peut ne pas comprendre certains services publics, les services de bâtiment et les dépenses immobilières.
- Convient pour 14 à 44 personnes
| Espace | Taille | Terme | Taux de location | Utilisation de l’espace | Aménagement | Disponible |
| 3e étage, ste 3F | 5 500 pi² | Négociable | 89,54 $ CAD/pi²/an 7,46 $ CAD/pi²/mois 492 456 $ CAD/an 41 038 $ CAD/mois | Bureau | - | Maintenant |
3e étage, ste 3F
| Taille |
| 5 500 pi² |
| Terme |
| Négociable |
| Taux de location |
| 89,54 $ CAD/pi²/an 7,46 $ CAD/pi²/mois 492 456 $ CAD/an 41 038 $ CAD/mois |
| Utilisation de l’espace |
| Bureau |
| Aménagement |
| - |
| Disponible |
| Maintenant |
3e étage, ste 3F
| Taille | 5 500 pi² |
| Terme | Négociable |
| Taux de location | 89,54 $ CAD/pi²/an |
| Utilisation de l’espace | Bureau |
| Aménagement | - |
| Disponible | Maintenant |
Full floor Soho office loft - ready to move in! Elevator opens to this 3rd floor with high ceilings, beautiful columns and hardwood floors offering perfect creative office /showroom/media/office space. Space is built with and 5 perimeter offices (layout can be adjusted) 2 sets of private bathrooms in addition to ADA bathroom and updated kitchen and HVAC in place. The mostly open layout provides flexibility for team collaboration or private offices as needed. All located in the heart of Soho - close to al the best shops, restaurants and means of transpotration. 24/7 Access Lease terms are flexible.
- Le taux inscrit peut ne pas comprendre certains services publics, les services de bâtiment et les dépenses immobilières.
- Convient pour 14 à 44 personnes
Aperçu de la propriété
Cast Iron Real Estate est heureuse de présenter la rare occasion de louer un duplex avec trois espaces extérieurs privés et penthouse dans le principal quartier SoHo de New York. Les bureaux des cinquième et sixième étages présentent des baies vitrées et deux terrasses orientées est et ouest. Cette offre couvre 8 000 pieds carrés d'espace de bureau intérieur entre les deux étages en plus de 3 600 pieds carrés d'espace extérieur total, une rareté métropolitaine. 455-457 Broadway est conforme à l'ADA et dispose d'un ascenseur privé au cinquième étage pour accéder directement au sixième étage, et à la terrasse sur le toit, magnifiquement conçue avec un treillis décoratif. Il y a une lumière naturelle incroyable avec un total de 18 mini-puits de lumière, ainsi que des salles de bains avec douches au sixième étage. Renseignez-vous dès aujourd'hui pour en savoir plus et planifiez une exposition pour voir comment cet espace proéminent répondra le mieux à vos besoins professionnels.
- Accès 24 heures
- Climatisation
- Balcon
Faits sur la propriété
Sélectionner des locataires
- Étage
- Nom du locataire
- Secteur
- Inconnu
- 7 Angeles
- Administration publique
- REZ-DE-CHAUSSÉE
- Abstract Edge Web Solutions
- Services professionnels, scientifiques et techniques
- Multiple
- Iceberg Army Navy
- Détaillant
- Inconnu
- Iceberg Overseas Supplies Co
- Détaillant
- Inconnu
- Lupita Photography
- Services professionnels, scientifiques et techniques
- Multiple
- Pearl Fisher Inc
- Services professionnels, scientifiques et techniques
- Inconnu
- Scott Paley
- Administration publique
- REZ-DE-CHAUSSÉE
- Travelhook Inc
- Services professionnels, scientifiques et techniques
Présenté par
Soho Loft Building | 455-457 Broadway
Hmm, il semble y avoir eu une erreur lors de l’envoi de votre message. Veuillez réessayer.
Merci! Votre message a été envoyé.






