Se Connecter/S’inscrire
Votre courriel a été envoyé.
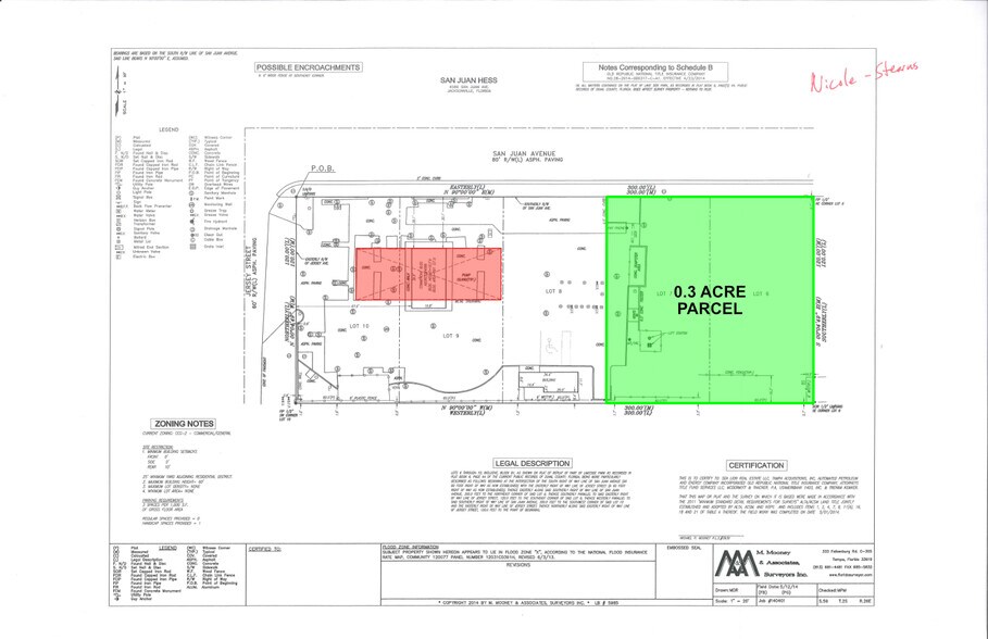
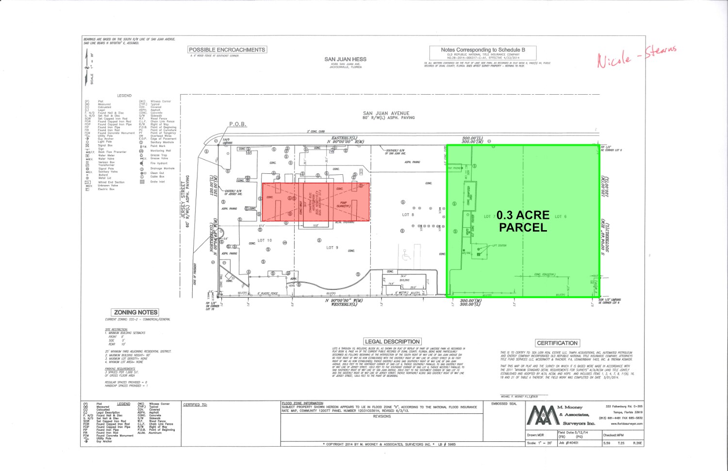
4586 San Juan Ave - Jacksonville Land Lot • Terrain commercial • 0,3 Acres • 482 790 $ CAD • Jacksonville, FL 32210



Certaines informations ont été traduites automatiquement.
FAITS SAILLANTS DE L'INVESTISSEMENT
- For Sale: $499,000 or build-to-suit
- Strategic location with strong consumer demand: population of 78,900 live within 3-mile radius of the property.
- High traffic and excellent accessibility: passed by 17,000 daily drivers.
- Ideal for QSR, Coffee, or Quick Lube
- Surrounded by national retailers and thriving businesses.
RÉSUMÉ DE L'ANNONCE
Prime Commercial Pad Site – For Sale or Build-to-Suit
Located at 4586 San Juan Ave. in Jacksonville, FL, this 0.3- acre commercial pad site is a prime opportunity for development. Positioned next to a new Avis/Budget car rental currently under construction, the site offers excellent visibility, high traffic counts, and strong commercial potential.
With flexible development options and a prime location, this site is perfect for investors or business owners looking to establish a strong presence in Jacksonville.
Located at 4586 San Juan Ave. in Jacksonville, FL, this 0.3- acre commercial pad site is a prime opportunity for development. Positioned next to a new Avis/Budget car rental currently under construction, the site offers excellent visibility, high traffic counts, and strong commercial potential.
With flexible development options and a prime location, this site is perfect for investors or business owners looking to establish a strong presence in Jacksonville.
FAITS SUR LA PROPRIÉTÉ
| Prix | 482 790 $ CAD | Sous-type de propriété | Terrain commercial |
| Type de vente | Investissement | Utilisation proposée | Commerce de détail |
| Condition de vente | Construction sur mesure | Taille totale du lot | 0,30 AC |
| Nombre de lots | 1 | Nombre d’étages | 1 |
| Type de propriété | Terrain | Zone de développement économique |
Oui
|
| Zonage | CCG-2 - La désignation « communauté commerciale générale » permet une utilisation commerciale, y compris des installations récréatives et des lieux de divertissement. | ||
| Prix | 482 790 $ CAD |
| Type de vente | Investissement |
| Condition de vente | Construction sur mesure |
| Nombre de lots | 1 |
| Type de propriété | Terrain |
| Sous-type de propriété | Terrain commercial |
| Utilisation proposée | Commerce de détail |
| Taille totale du lot | 0,30 AC |
| Nombre d’étages | 1 |
| Zone de développement économique |
Oui |
| Zonage | CCG-2 - La désignation « communauté commerciale générale » permet une utilisation commerciale, y compris des installations récréatives et des lieux de divertissement. |
1 LOT DISPONIBLE
Lot
| Prix | 482 790 $ CAD | Taille du lot | 0,30 AC |
| Prix par AC | 1 609 300,02 $ CAD |
| Prix | 482 790 $ CAD |
| Prix par AC | 1 609 300,02 $ CAD |
| Taille du lot | 0,30 AC |
0.3-acre commercial pad site.
DESCRIPTION
Terrain commercial de 0,3 acre situé à côté d'une nouvelle propriété de location de voitures Avis/Budget (en construction).
1 1
Walk Score®
Très pratique à pied (81)
Impôts fonciers
| Numéro de lot | 093797-0000 | Évaluation des bâtiments | 0 $ CAD |
| Évaluation du terrain | 0 $ CAD | Évaluation totale | 619 727 $ CAD |
Impôts fonciers
Numéro de lot
093797-0000
Évaluation du terrain
0 $ CAD
Évaluation des bâtiments
0 $ CAD
Évaluation totale
619 727 $ CAD
1 de 4
VIDÉOS
VISITE EXTÉRIEURE 3D MATTERPORT
VISITE 3D MATTERPORT
PHOTOS
VUE DEPUIS LA RUE
RUE
CARTE
1 de 1
Présenté par
4586 San Juan Ave - Jacksonville Land
Vous êtes déjà membre? Connectez-vous
Hmm, il semble y avoir eu une erreur lors de l’envoi de votre message. Veuillez réessayer.
Merci! Votre message a été envoyé.
