Se Connecter/S’inscrire
Votre courriel a été envoyé.
460 W 35th St
New York, NY 10001
Bureau Propriété À louer
·
4 937 pi²

Certaines informations ont été traduites automatiquement.
Faits saillants
- Possibilité de louer un immeuble privé réservé avec une signalisation bien en vue
- Proximité des développements de 7 trains et de gares de triage d'Hudson
- Adjacent au nouvel hôtel de 17 étages, 151 clés Four Points by Sheraton
- Flexible Uses for Factory, Garage, Light Industrial, Office, Retail, Medical, Distribution, Parking
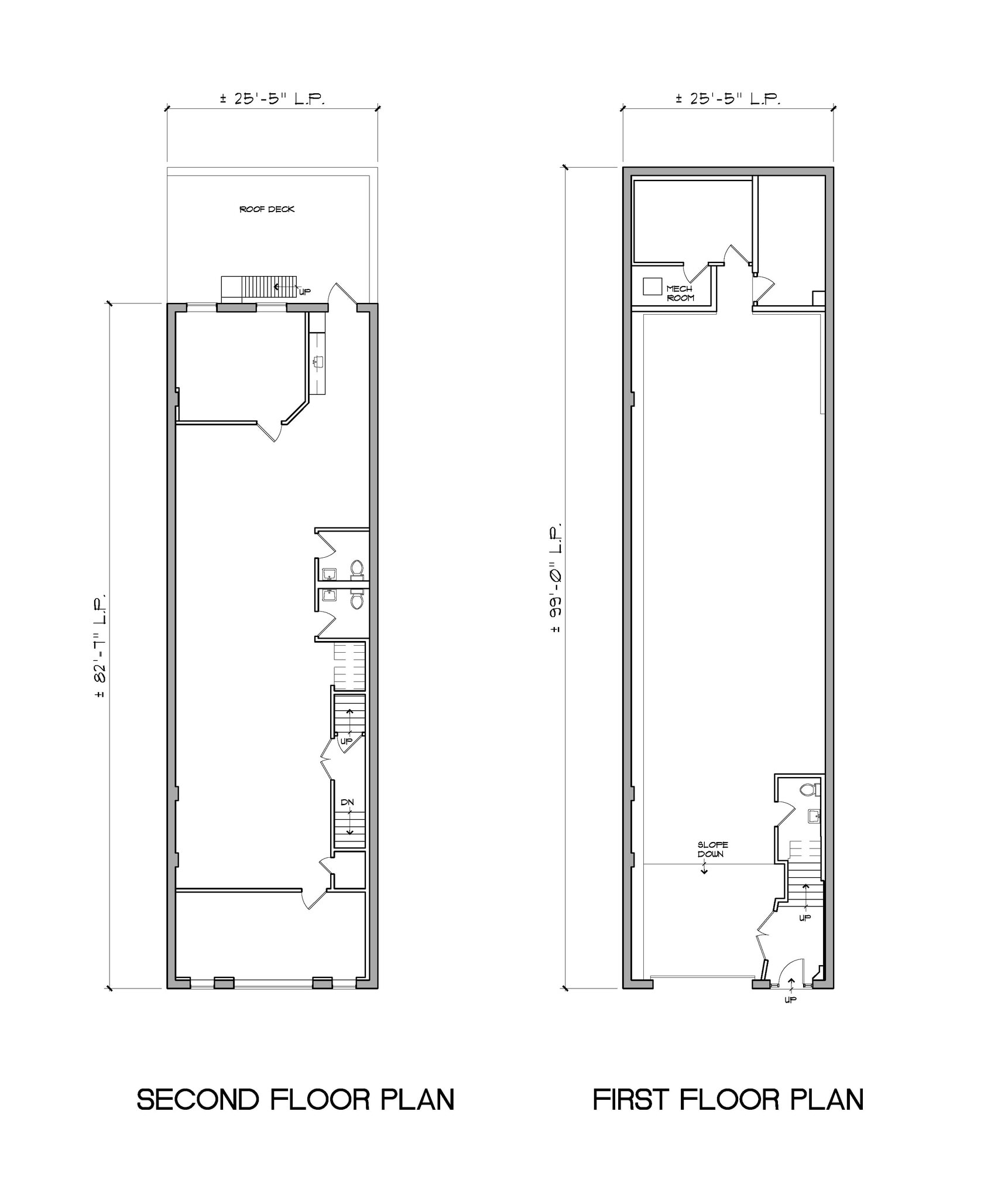
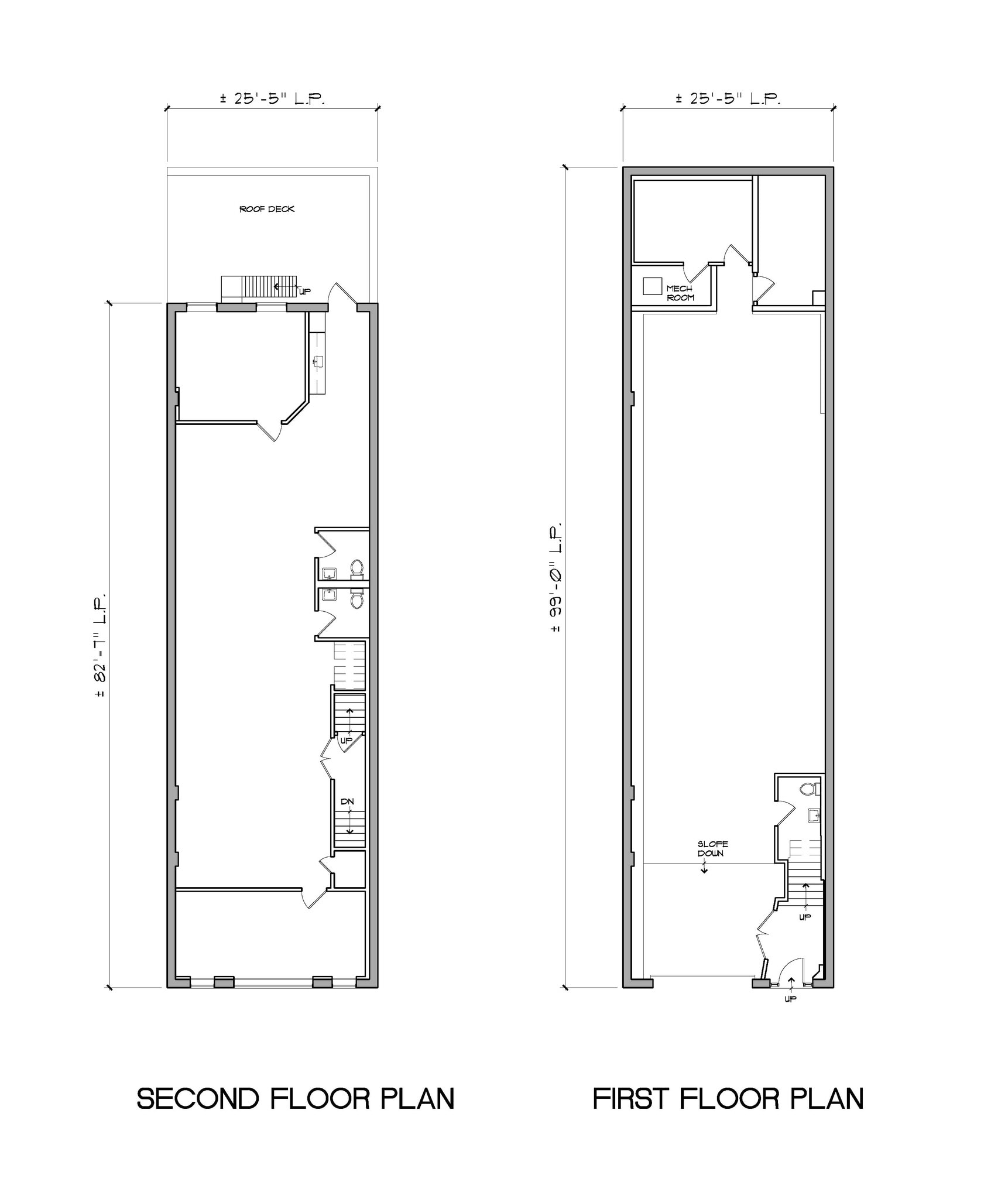
Aperçu de la propriété
Créez votre propre identité dans le district Hudson Yards de Manhattan Espace libre de colonnes avec de lourdes charges de plancher et une baie d'entrée Toutes les utilisations envisagées
- Accès 24 heures
- Terrasse sur le toit
- Climatisation
- Balcon
Faits sur la propriété
Type de bâtiment
Bureau
Année de construction/rénovation
1940/2026
Hauteur du bâtiment
2 étages
Taille du bâtiment
4 937 pi²
Classe d’immeuble
B
Superficie de plancher typique
2 468 pi²
Hauteur du plafond non finie
11’
Stationnement
2 places de stationnement couvert
1 de 2
Vidéos
Visite extérieure 3D Matterport
Visite 3D Matterport
Photos
Vue depuis la rue
Rue
Carte
