Se Connecter/S’inscrire
Votre courriel a été envoyé.
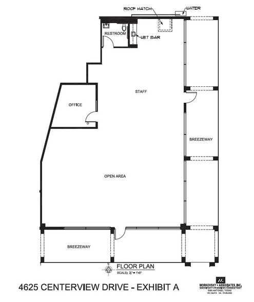
4625 Centerview Dr
San Antonio, TX 78228
Commerce de détail Propriété À louer
·
2 096 pi²


Certaines informations ont été traduites automatiquement.
Faits saillants
- Forte création d'emplois de jour en affaires
- Idéal pour une grande variété d'utilisations commerciales
- Tenant controlled HVAC
- L'intersection éclairée des arrêts d'angle offre une excellente entrée et sortie
- Drive-up convenience
- Part of a PNC Bank building - ground floor, walk-up access
Faits sur la propriété
| Superficie totale disponible | 2 096 pi² | Superficie commerciale brute | 6 464 pi² |
| Type de propriété | Commerce de détail | Année de construction | 1983 |
| Sous-type de propriété | Bien à usage mixte | Ratio de stationnement | 8,04/1 000 pi² |
| Superficie totale disponible | 2 096 pi² |
| Type de propriété | Commerce de détail |
| Sous-type de propriété | Bien à usage mixte |
| Superficie commerciale brute | 6 464 pi² |
| Année de construction | 1983 |
| Ratio de stationnement | 8,04/1 000 pi² |
À propos de la propriété
Excellent accessibility to Medical Center
- Accès 24 heures
- Banque
- Ligne d'autobus
- Visibilité de l'autoroute
- Enseigne sur pylône
- Intersection avec signalisation
- CVCA contrôlé par le locataire
1 de 5
Vidéos
Visite extérieure 3D Matterport
Visite 3D Matterport
Photos
Vue depuis la rue
Rue
Carte
