Se Connecter/S’inscrire
Votre courriel a été envoyé.
4628 Tamiami Trl E Lot • Terrain commercial • 0,48 Acres • 748 280 $ CAD • Naples, FL 34112



Certaines informations ont été traduites automatiquement.
Faits saillants de l'investissement
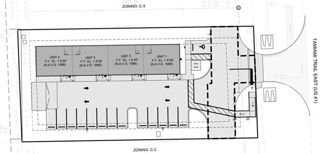
- Approved plans and impact fee credits included
- Prime US 41 East frontage near downtown Naples
- Pylon signage available for enhanced visibility
- Seller is a licensed GC and can build for buyer
- Zoned C-3 with flexible commercial entitlements
Résumé de l'annonce
ÉNORME AMÉLIORATION DES PRIX DE 200 000$ ! ! Ce site de Naples, en Floride, fait face à l'US 41 East et se trouve à proximité du centre-ville de Naples, du centre gouvernemental, de nombreux commerces de détail et des toits résidentiels. Parfait pour une entreprise qui cherche à posséder son propre NOUVEAU bâtiment et à concevoir les éléments intérieurs qui conviennent le mieux à son entreprise. Peut également modifier les plans visant à rétrécir le bâtiment afin d'ajouter un stationnement à des fins médicales ou des concepts de conduite à des fins médicales. Crédits de frais d'impact disponibles sur le site.
Faits sur la propriété
1 Lot disponible
Lot
| Prix | 748 280 $ CAD | Taille du lot | 0,48 AC |
| Prix par AC | 1 558 917,70 $ CAD |
| Prix | 748 280 $ CAD |
| Prix par AC | 1 558 917,70 $ CAD |
| Taille du lot | 0,48 AC |
MAJOR PRICE REDUCTION TO SELL QUICKLY. Shovel-ready 0.48-acre C-3 zoned site on US 41 East in Naples with approved plans, impact fee credits, and pylon signage. Ideal for owner-user or lease; seller is a licensed GC ready to build.
Assez praticable à pied
40/100
Exceptionnellement facile d’accès en voiture
100/100
Transports en commun limités
30/100
Assez praticable en vélo
30/100
Impôts fonciers
| Numéro de lot | 67080600007 | Évaluation des bâtiments | 0 $ CAD |
| Évaluation du terrain | 0 $ CAD | Évaluation totale | 333 888 $ CAD |
Impôts fonciers
Numéro de lot
67080600007
Évaluation du terrain
0 $ CAD
Évaluation des bâtiments
0 $ CAD
Évaluation totale
333 888 $ CAD
1 de 6
Vidéos
Visite extérieure 3D Matterport
Visite 3D Matterport
Photos
Vue depuis la rue
Rue
Carte
Présenté par
4628 Tamiami Trl E
Vous êtes déjà membre? Connectez-vous
Hmm, il semble y avoir eu une erreur lors de l’envoi de votre message. Veuillez réessayer.
Merci! Votre message a été envoyé.

