Votre courriel a été envoyé.
5Ème Avenue / Maison de la Mécanique 47 Rue Louis Blanc 7 728–45 994 pi² d'espace disponible • Bureau • 92400 Courbevoie



Certaines informations ont été traduites automatiquement.
Faits saillants
- Prestations premium
- Emplacement stratégique
- Espaces Divisibles
Tous les espaces disponibles(6)
Afficher les taux de location en
- Espace
- Taille
- Terme
-
Taux de location
- Utilisation de l’espace
- Aménagement
- Disponible
- Honoraires preneur: 15,00% du taux de location annuel
- Entièrement construit comme Bureau standard
- Plafonds finis: 8’2”
- Complètement tapissé
- Lumière naturelle
- Plateaux lumineux
- RIE, auditorium et salles de réunion
- Climatisation
- Dépôt de garantie: 3 mois de taux de location
- Disposition du plan d’étage ouverte en général
- Climatisation centrale
- Plafond suspendu
- Plan ouvert
- Capacité : 700 pers
- Hauteur sous plafond : 2,50 m
- Divisible
- Honoraires preneur: 15,00% du taux de location annuel
- Entièrement construit comme Bureau standard
- Plafonds finis: 8’2”
- Complètement tapissé
- Lumière naturelle
- Plateaux lumineux
- RIE, auditorium et salles de réunion
- Climatisation
- Dépôt de garantie: 3 mois de taux de location
- Disposition du plan d’étage ouverte en général
- Climatisation centrale
- Plafond suspendu
- Plan ouvert
- Capacité : 700 pers
- Hauteur sous plafond : 2,50 m
- Divisible
- Honoraires preneur: 15,00% du taux de location annuel
- Entièrement construit comme Bureau standard
- Plafonds finis: 8’2”
- Complètement tapissé
- Lumière naturelle
- Plateaux lumineux
- RIE, auditorium et salles de réunion
- Climatisation
- Dépôt de garantie: 3 mois de taux de location
- Disposition du plan d’étage ouverte en général
- Climatisation centrale
- Plafond suspendu
- Plan ouvert
- Capacité : 700 pers
- Hauteur sous plafond : 2,50 m
- Divisible
- Honoraires preneur: 15,00% du taux de location annuel
- Entièrement construit comme Bureau standard
- Plafonds finis: 8’2”
- Complètement tapissé
- Lumière naturelle
- Plateaux lumineux
- RIE, auditorium et salles de réunion
- Climatisation
- Dépôt de garantie: 3 mois de taux de location
- Disposition du plan d’étage ouverte en général
- Climatisation centrale
- Plafond suspendu
- Plan ouvert
- Capacité : 700 pers
- Hauteur sous plafond : 2,50 m
- Divisible
- Honoraires preneur: 15,00% du taux de location annuel
- Entièrement construit comme Bureau standard
- Plafonds finis: 8’2”
- Complètement tapissé
- Lumière naturelle
- Plateaux lumineux
- RIE, auditorium et salles de réunion
- Climatisation
- Dépôt de garantie: 3 mois de taux de location
- Disposition du plan d’étage ouverte en général
- Climatisation centrale
- Plafond suspendu
- Plan ouvert
- Capacité : 700 pers
- Hauteur sous plafond : 2,50 m
- Divisible
- Honoraires preneur: 15,00% du taux de location annuel
- Entièrement construit comme Bureau standard
- Plafonds finis: 8’2”
- Complètement tapissé
- Lumière naturelle
- Plateaux lumineux
- RIE, auditorium et salles de réunion
- Climatisation
- Dépôt de garantie: 3 mois de taux de location
- Disposition du plan d’étage ouverte en général
- Climatisation centrale
- Plafond suspendu
- Plan ouvert
- Capacité : 700 pers
- Hauteur sous plafond : 2,50 m
- Divisible
| Espace | Taille | Terme | Taux de location | Utilisation de l’espace | Aménagement | Disponible |
| 1er étage | 7 739 pi² | 3/6/9 | 50,87 $ CAD/HT-HC/pi²/an 4,24 $ CAD/HT-HC/pi²/mois 393 720 $ CAD/HT-HC/an 32 810 $ CAD/HT-HC/mois | Bureau | construction complète | Maintenant |
| 2e étage | 8 428 pi² | 3/6/9 | 50,87 $ CAD/HT-HC/pi²/an 4,24 $ CAD/HT-HC/pi²/mois 428 766 $ CAD/HT-HC/an 35 731 $ CAD/HT-HC/mois | Bureau | construction complète | Maintenant |
| 3e étage | 8 428 pi² | 3/6/9 | 50,87 $ CAD/HT-HC/pi²/an 4,24 $ CAD/HT-HC/pi²/mois 428 766 $ CAD/HT-HC/an 35 731 $ CAD/HT-HC/mois | Bureau | construction complète | Maintenant |
| 4e étage | 8 428 pi² | 3/6/9 | 50,87 $ CAD/HT-HC/pi²/an 4,24 $ CAD/HT-HC/pi²/mois 428 766 $ CAD/HT-HC/an 35 731 $ CAD/HT-HC/mois | Bureau | construction complète | Maintenant |
| 5e étage | 8 417 pi² | 3/6/9 | 50,87 $ CAD/HT-HC/pi²/an 4,24 $ CAD/HT-HC/pi²/mois 428 219 $ CAD/HT-HC/an 35 685 $ CAD/HT-HC/mois | Bureau | construction complète | Maintenant |
| 6e étage | 4 553 pi² | 3/6/9 | 50,87 $ CAD/HT-HC/pi²/an 4,24 $ CAD/HT-HC/pi²/mois 231 632 $ CAD/HT-HC/an 19 303 $ CAD/HT-HC/mois | Bureau | construction complète | Maintenant |
1er étage
| Taille |
| 7 739 pi² |
| Terme |
| 3/6/9 |
|
Taux de location
|
| 50,87 $ CAD/HT-HC/pi²/an 4,24 $ CAD/HT-HC/pi²/mois 393 720 $ CAD/HT-HC/an 32 810 $ CAD/HT-HC/mois |
| Utilisation de l’espace |
| Bureau |
| Aménagement |
| construction complète |
| Disponible |
| Maintenant |
2e étage
| Taille |
| 8 428 pi² |
| Terme |
| 3/6/9 |
|
Taux de location
|
| 50,87 $ CAD/HT-HC/pi²/an 4,24 $ CAD/HT-HC/pi²/mois 428 766 $ CAD/HT-HC/an 35 731 $ CAD/HT-HC/mois |
| Utilisation de l’espace |
| Bureau |
| Aménagement |
| construction complète |
| Disponible |
| Maintenant |
3e étage
| Taille |
| 8 428 pi² |
| Terme |
| 3/6/9 |
|
Taux de location
|
| 50,87 $ CAD/HT-HC/pi²/an 4,24 $ CAD/HT-HC/pi²/mois 428 766 $ CAD/HT-HC/an 35 731 $ CAD/HT-HC/mois |
| Utilisation de l’espace |
| Bureau |
| Aménagement |
| construction complète |
| Disponible |
| Maintenant |
4e étage
| Taille |
| 8 428 pi² |
| Terme |
| 3/6/9 |
|
Taux de location
|
| 50,87 $ CAD/HT-HC/pi²/an 4,24 $ CAD/HT-HC/pi²/mois 428 766 $ CAD/HT-HC/an 35 731 $ CAD/HT-HC/mois |
| Utilisation de l’espace |
| Bureau |
| Aménagement |
| construction complète |
| Disponible |
| Maintenant |
5e étage
| Taille |
| 8 417 pi² |
| Terme |
| 3/6/9 |
|
Taux de location
|
| 50,87 $ CAD/HT-HC/pi²/an 4,24 $ CAD/HT-HC/pi²/mois 428 219 $ CAD/HT-HC/an 35 685 $ CAD/HT-HC/mois |
| Utilisation de l’espace |
| Bureau |
| Aménagement |
| construction complète |
| Disponible |
| Maintenant |
6e étage
| Taille |
| 4 553 pi² |
| Terme |
| 3/6/9 |
|
Taux de location
|
| 50,87 $ CAD/HT-HC/pi²/an 4,24 $ CAD/HT-HC/pi²/mois 231 632 $ CAD/HT-HC/an 19 303 $ CAD/HT-HC/mois |
| Utilisation de l’espace |
| Bureau |
| Aménagement |
| construction complète |
| Disponible |
| Maintenant |
1er étage
| Taille | 7 739 pi² |
| Terme | 3/6/9 |
|
Taux de location
|
50,87 $ CAD/HT-HC/pi²/an |
| Utilisation de l’espace | Bureau |
| Aménagement | construction complète |
| Disponible | Maintenant |
- Honoraires preneur: 15,00% du taux de location annuel
- Dépôt de garantie: 3 mois de taux de location
- Entièrement construit comme Bureau standard
- Disposition du plan d’étage ouverte en général
- Plafonds finis: 8’2”
- Climatisation centrale
- Complètement tapissé
- Plafond suspendu
- Lumière naturelle
- Plan ouvert
- Plateaux lumineux
- Capacité : 700 pers
- RIE, auditorium et salles de réunion
- Hauteur sous plafond : 2,50 m
- Climatisation
- Divisible
2e étage
| Taille | 8 428 pi² |
| Terme | 3/6/9 |
|
Taux de location
|
50,87 $ CAD/HT-HC/pi²/an |
| Utilisation de l’espace | Bureau |
| Aménagement | construction complète |
| Disponible | Maintenant |
- Honoraires preneur: 15,00% du taux de location annuel
- Dépôt de garantie: 3 mois de taux de location
- Entièrement construit comme Bureau standard
- Disposition du plan d’étage ouverte en général
- Plafonds finis: 8’2”
- Climatisation centrale
- Complètement tapissé
- Plafond suspendu
- Lumière naturelle
- Plan ouvert
- Plateaux lumineux
- Capacité : 700 pers
- RIE, auditorium et salles de réunion
- Hauteur sous plafond : 2,50 m
- Climatisation
- Divisible
3e étage
| Taille | 8 428 pi² |
| Terme | 3/6/9 |
|
Taux de location
|
50,87 $ CAD/HT-HC/pi²/an |
| Utilisation de l’espace | Bureau |
| Aménagement | construction complète |
| Disponible | Maintenant |
- Honoraires preneur: 15,00% du taux de location annuel
- Dépôt de garantie: 3 mois de taux de location
- Entièrement construit comme Bureau standard
- Disposition du plan d’étage ouverte en général
- Plafonds finis: 8’2”
- Climatisation centrale
- Complètement tapissé
- Plafond suspendu
- Lumière naturelle
- Plan ouvert
- Plateaux lumineux
- Capacité : 700 pers
- RIE, auditorium et salles de réunion
- Hauteur sous plafond : 2,50 m
- Climatisation
- Divisible
4e étage
| Taille | 8 428 pi² |
| Terme | 3/6/9 |
|
Taux de location
|
50,87 $ CAD/HT-HC/pi²/an |
| Utilisation de l’espace | Bureau |
| Aménagement | construction complète |
| Disponible | Maintenant |
- Honoraires preneur: 15,00% du taux de location annuel
- Dépôt de garantie: 3 mois de taux de location
- Entièrement construit comme Bureau standard
- Disposition du plan d’étage ouverte en général
- Plafonds finis: 8’2”
- Climatisation centrale
- Complètement tapissé
- Plafond suspendu
- Lumière naturelle
- Plan ouvert
- Plateaux lumineux
- Capacité : 700 pers
- RIE, auditorium et salles de réunion
- Hauteur sous plafond : 2,50 m
- Climatisation
- Divisible
5e étage
| Taille | 8 417 pi² |
| Terme | 3/6/9 |
|
Taux de location
|
50,87 $ CAD/HT-HC/pi²/an |
| Utilisation de l’espace | Bureau |
| Aménagement | construction complète |
| Disponible | Maintenant |
- Honoraires preneur: 15,00% du taux de location annuel
- Dépôt de garantie: 3 mois de taux de location
- Entièrement construit comme Bureau standard
- Disposition du plan d’étage ouverte en général
- Plafonds finis: 8’2”
- Climatisation centrale
- Complètement tapissé
- Plafond suspendu
- Lumière naturelle
- Plan ouvert
- Plateaux lumineux
- Capacité : 700 pers
- RIE, auditorium et salles de réunion
- Hauteur sous plafond : 2,50 m
- Climatisation
- Divisible
6e étage
| Taille | 4 553 pi² |
| Terme | 3/6/9 |
|
Taux de location
|
50,87 $ CAD/HT-HC/pi²/an |
| Utilisation de l’espace | Bureau |
| Aménagement | construction complète |
| Disponible | Maintenant |
- Honoraires preneur: 15,00% du taux de location annuel
- Dépôt de garantie: 3 mois de taux de location
- Entièrement construit comme Bureau standard
- Disposition du plan d’étage ouverte en général
- Plafonds finis: 8’2”
- Climatisation centrale
- Complètement tapissé
- Plafond suspendu
- Lumière naturelle
- Plan ouvert
- Plateaux lumineux
- Capacité : 700 pers
- RIE, auditorium et salles de réunion
- Hauteur sous plafond : 2,50 m
- Climatisation
- Divisible
Aperçu de la propriété
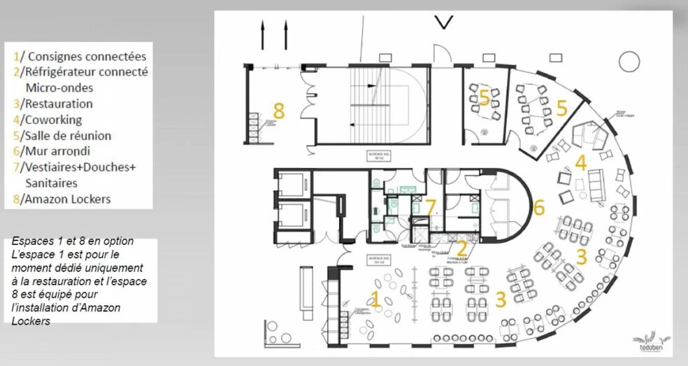
Au sein d’un immeuble tertiaire de haut standing, cet espace à louer offre un environnement de travail lumineux, modulable et adapté aux besoins des entreprises modernes. Les bureaux sont entièrement climatisés, connectés à la fibre optique et accessibles aux personnes à mobilité réduite. L’ensemble des charges comprend l’accès internet, la maintenance technique, le ménage quotidien des parties communes et privatives, ainsi que les consommations d’électricité, de chauffage et de climatisation. Cet espace constitue une solution clé en main pour toute entreprise en quête de confort, de flexibilité et de visibilité. L’immeuble propose un cadre professionnel soigné avec des prestations modernes. Il dispose d’une architecture contemporaine, d’une façade soignée, d’un accès sécurisé avec hôtesse d’accueil et d’un hall d’entrée conçu pour offrir une expérience fluide et professionnelle aux employés comme aux visiteurs. Les utilisateurs profitent également de nombreux services mutualisés : restaurant, service traiteur, jardin paysager, neuf salles de réunion équipées et un auditorium de 207 places avec régie son et vidéo. L’ensemble bénéficie d’un emplacement stratégique, d’une excellente desserte en transports et d’un environnement dynamique, à proximité directe du quartier d’affaires de La Défense.
- Concierge
- Installations de conférences
- Service d'alimentation
- Accessible aux fauteuils roulants
- Réception
- Climatisation
- Internet par fibre optique
Faits sur la propriété
Présenté par
5Ème Avenue / Maison de la Mécanique | 47 Rue Louis Blanc
Hmm, il semble y avoir eu une erreur lors de l’envoi de votre message. Veuillez réessayer.
Merci! Votre message a été envoyé.



