Votre courriel a été envoyé.
Madison Yards Way Madison, WI 53705 18 000–180 000 pi² d'espace disponible • Bureau



Certaines informations ont été traduites automatiquement.
Faits saillants du parc
- Madison Yards est une communauté de bureaux de classe A axée sur l'avenir au service de la culture ouverte, engagée et progressiste de Madison, au Wisconsin.
- Emplacement exceptionnel entouré d'un marché Whole Foods de 50 000 pieds carrés et de 273 appartements de luxe, offrant un équilibre harmonieux entre vie professionnelle et vie privée.
- Les installations sur place comprennent un centre de conditionnement physique avec douches, une salle de conférence et d'événements, un local à vélos intérieur sécurisé et un parking structuré.
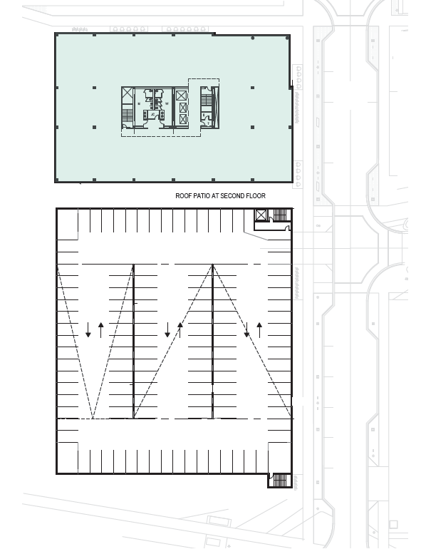
- Plan de bureau ouvert avec jusqu'à 22 500 pieds carrés locables disponibles au deuxième niveau, fenêtres du sol au plafond et vues exceptionnelles.
- Les locataires et les résidents apprécient la place publique du parc à bureaux et l'espace vert central qui offre des événements publics pour la communauté.
- Profitez de divertissements avec des distributeurs automatiques saisonniers, des marchés de producteurs et une salle de spectacle multifonction.
Faits sur le parc
Tous les espaces disponibles(10)
Afficher les taux de location en
- Espace
- Taille
- Terme
- Taux de location
- Utilisation de l’espace
- Aménagement
- Disponible
Block 5 will be the final block to be developed at Madison Yards This premier Class A office and/or medical building will offer structured parking, and it has the potential for rooftop patio areas. The design is entirely flexible at this point, but a 7- to 10-story building is envisioned.
- Convient pour 45 à 144 personnes
- Included in new commercial park!
- Peut être associé à un ou plusieurs espaces supplémentaires pour obtenir jusqu’à 180 000 pi² d’espace adjacent.
Block 5 will be the final block to be developed at Madison Yards This premier Class A office and/or medical building will offer structured parking, and it has the potential for rooftop patio areas. The design is entirely flexible at this point, but a 7- to 10-story building is envisioned.
- Convient pour 45 à 144 personnes
- Peut être associé à un ou plusieurs espaces supplémentaires pour obtenir jusqu’à 180 000 pi² d’espace adjacent.
- Potential for rooftop patios
- +/- 22,500 SF Floors
- Espace en excellent état
- Ample structured parking
- Floor-to-ceiling glass for maximum natural light
Block 5 will be the final block to be developed at Madison Yards This premier Class A office and/or medical building will offer structured parking, and it has the potential for rooftop patio areas. The design is entirely flexible at this point, but a 7- to 10-story building is envisioned.
- Convient pour 45 à 144 personnes
- Included in new commercial park!
- Peut être associé à un ou plusieurs espaces supplémentaires pour obtenir jusqu’à 180 000 pi² d’espace adjacent.
Block 5 will be the final block to be developed at Madison Yards This premier Class A office and/or medical building will offer structured parking, and it has the potential for rooftop patio areas. The design is entirely flexible at this point, but a 7- to 10-story building is envisioned.
- Convient pour 45 à 144 personnes
- Included in new commercial park!
- Peut être associé à un ou plusieurs espaces supplémentaires pour obtenir jusqu’à 180 000 pi² d’espace adjacent.
Block 5 will be the final block to be developed at Madison Yards This premier Class A office and/or medical building will offer structured parking, and it has the potential for rooftop patio areas. The design is entirely flexible at this point, but a 7- to 10-story building is envisioned.
- Convient pour 45 à 144 personnes
- Included in new commercial park!
- Peut être associé à un ou plusieurs espaces supplémentaires pour obtenir jusqu’à 180 000 pi² d’espace adjacent.
Block 5 will be the final block to be developed at Madison Yards This premier Class A office and/or medical building will offer structured parking, and it has the potential for rooftop patio areas. The design is entirely flexible at this point, but a 7- to 10-story building is envisioned.
- Convient pour 45 à 144 personnes
- Included in new commercial park!
- Peut être associé à un ou plusieurs espaces supplémentaires pour obtenir jusqu’à 180 000 pi² d’espace adjacent.
Block 5 will be the final block to be developed at Madison Yards This premier Class A office and/or medical building will offer structured parking, and it has the potential for rooftop patio areas. The design is entirely flexible at this point, but a 7- to 10-story building is envisioned.
- Convient pour 45 à 144 personnes
- Included in new commercial park!
- Peut être associé à un ou plusieurs espaces supplémentaires pour obtenir jusqu’à 180 000 pi² d’espace adjacent.
Block 5 will be the final block to be developed at Madison Yards This premier Class A office and/or medical building will offer structured parking, and it has the potential for rooftop patio areas. The design is entirely flexible at this point, but a 7- to 10-story building is envisioned.
- Convient pour 45 à 144 personnes
- Included in new commercial park!
- Peut être associé à un ou plusieurs espaces supplémentaires pour obtenir jusqu’à 180 000 pi² d’espace adjacent.
Block 5 will be the final block to be developed at Madison Yards This premier Class A office and/or medical building will offer structured parking, and it has the potential for rooftop patio areas. The design is entirely flexible at this point, but a 7- to 10-story building is envisioned.
- Convient pour 45 à 144 personnes
- Included in new commercial park!
- Peut être associé à un ou plusieurs espaces supplémentaires pour obtenir jusqu’à 180 000 pi² d’espace adjacent.
Block 5 will be the final block to be developed at Madison Yards This premier Class A office and/or medical building will offer structured parking, and it has the potential for rooftop patio areas. The design is entirely flexible at this point, but a 7- to 10-story building is envisioned.
- Convient pour 45 à 144 personnes
- Included in new commercial park!
- Peut être associé à un ou plusieurs espaces supplémentaires pour obtenir jusqu’à 180 000 pi² d’espace adjacent.
| Espace | Taille | Terme | Taux de location | Utilisation de l’espace | Aménagement | Disponible |
| 1er étage, ste 1st Floor | 18 000 pi² | Négociable | Sur demande Sur demande Sur demande Sur demande | Bureau | - | À déterminer |
| 2e étage, ste 2nd Floor | 18 000 pi² | Négociable | Sur demande Sur demande Sur demande Sur demande | Bureau | - | À déterminer |
| 3e étage, ste 3rd Floor | 18 000 pi² | Négociable | Sur demande Sur demande Sur demande Sur demande | Bureau | - | À déterminer |
| 4e étage, ste 4th Floor | 18 000 pi² | Négociable | Sur demande Sur demande Sur demande Sur demande | Bureau | - | À déterminer |
| 5e étage, ste 5th Floor | 18 000 pi² | Négociable | Sur demande Sur demande Sur demande Sur demande | Bureau | - | À déterminer |
| 6e étage, ste 6th Floor | 18 000 pi² | Négociable | Sur demande Sur demande Sur demande Sur demande | Bureau | - | À déterminer |
| 7e étage, ste 7th Floor | 18 000 pi² | Négociable | Sur demande Sur demande Sur demande Sur demande | Bureau | - | À déterminer |
| 8e étage, ste 8th Floor | 18 000 pi² | Négociable | Sur demande Sur demande Sur demande Sur demande | Bureau | - | À déterminer |
| 9e étage, ste 9th Floor | 18 000 pi² | Négociable | Sur demande Sur demande Sur demande Sur demande | Bureau | - | À déterminer |
| 10e étage, ste 10th Floor | 18 000 pi² | Négociable | Sur demande Sur demande Sur demande Sur demande | Bureau | - | À déterminer |
4730 Sheboygan Ave - 1er étage - ste 1st Floor
4730 Sheboygan Ave - 2e étage - ste 2nd Floor
4730 Sheboygan Ave - 3e étage - ste 3rd Floor
4730 Sheboygan Ave - 4e étage - ste 4th Floor
4730 Sheboygan Ave - 5e étage - ste 5th Floor
4730 Sheboygan Ave - 6e étage - ste 6th Floor
4730 Sheboygan Ave - 7e étage - ste 7th Floor
4730 Sheboygan Ave - 8e étage - ste 8th Floor
4730 Sheboygan Ave - 9e étage - ste 9th Floor
4730 Sheboygan Ave - 10e étage - ste 10th Floor
4730 Sheboygan Ave - 1er étage - ste 1st Floor
| Taille | 18 000 pi² |
| Terme | Négociable |
| Taux de location | Sur demande |
| Utilisation de l’espace | Bureau |
| Aménagement | - |
| Disponible | À déterminer |
Block 5 will be the final block to be developed at Madison Yards This premier Class A office and/or medical building will offer structured parking, and it has the potential for rooftop patio areas. The design is entirely flexible at this point, but a 7- to 10-story building is envisioned.
- Convient pour 45 à 144 personnes
- Peut être associé à un ou plusieurs espaces supplémentaires pour obtenir jusqu’à 180 000 pi² d’espace adjacent.
- Included in new commercial park!
4730 Sheboygan Ave - 2e étage - ste 2nd Floor
| Taille | 18 000 pi² |
| Terme | Négociable |
| Taux de location | Sur demande |
| Utilisation de l’espace | Bureau |
| Aménagement | - |
| Disponible | À déterminer |
Block 5 will be the final block to be developed at Madison Yards This premier Class A office and/or medical building will offer structured parking, and it has the potential for rooftop patio areas. The design is entirely flexible at this point, but a 7- to 10-story building is envisioned.
- Convient pour 45 à 144 personnes
- Espace en excellent état
- Peut être associé à un ou plusieurs espaces supplémentaires pour obtenir jusqu’à 180 000 pi² d’espace adjacent.
- Ample structured parking
- Potential for rooftop patios
- Floor-to-ceiling glass for maximum natural light
- +/- 22,500 SF Floors
4730 Sheboygan Ave - 3e étage - ste 3rd Floor
| Taille | 18 000 pi² |
| Terme | Négociable |
| Taux de location | Sur demande |
| Utilisation de l’espace | Bureau |
| Aménagement | - |
| Disponible | À déterminer |
Block 5 will be the final block to be developed at Madison Yards This premier Class A office and/or medical building will offer structured parking, and it has the potential for rooftop patio areas. The design is entirely flexible at this point, but a 7- to 10-story building is envisioned.
- Convient pour 45 à 144 personnes
- Peut être associé à un ou plusieurs espaces supplémentaires pour obtenir jusqu’à 180 000 pi² d’espace adjacent.
- Included in new commercial park!
4730 Sheboygan Ave - 4e étage - ste 4th Floor
| Taille | 18 000 pi² |
| Terme | Négociable |
| Taux de location | Sur demande |
| Utilisation de l’espace | Bureau |
| Aménagement | - |
| Disponible | À déterminer |
Block 5 will be the final block to be developed at Madison Yards This premier Class A office and/or medical building will offer structured parking, and it has the potential for rooftop patio areas. The design is entirely flexible at this point, but a 7- to 10-story building is envisioned.
- Convient pour 45 à 144 personnes
- Peut être associé à un ou plusieurs espaces supplémentaires pour obtenir jusqu’à 180 000 pi² d’espace adjacent.
- Included in new commercial park!
4730 Sheboygan Ave - 5e étage - ste 5th Floor
| Taille | 18 000 pi² |
| Terme | Négociable |
| Taux de location | Sur demande |
| Utilisation de l’espace | Bureau |
| Aménagement | - |
| Disponible | À déterminer |
Block 5 will be the final block to be developed at Madison Yards This premier Class A office and/or medical building will offer structured parking, and it has the potential for rooftop patio areas. The design is entirely flexible at this point, but a 7- to 10-story building is envisioned.
- Convient pour 45 à 144 personnes
- Peut être associé à un ou plusieurs espaces supplémentaires pour obtenir jusqu’à 180 000 pi² d’espace adjacent.
- Included in new commercial park!
4730 Sheboygan Ave - 6e étage - ste 6th Floor
| Taille | 18 000 pi² |
| Terme | Négociable |
| Taux de location | Sur demande |
| Utilisation de l’espace | Bureau |
| Aménagement | - |
| Disponible | À déterminer |
Block 5 will be the final block to be developed at Madison Yards This premier Class A office and/or medical building will offer structured parking, and it has the potential for rooftop patio areas. The design is entirely flexible at this point, but a 7- to 10-story building is envisioned.
- Convient pour 45 à 144 personnes
- Peut être associé à un ou plusieurs espaces supplémentaires pour obtenir jusqu’à 180 000 pi² d’espace adjacent.
- Included in new commercial park!
4730 Sheboygan Ave - 7e étage - ste 7th Floor
| Taille | 18 000 pi² |
| Terme | Négociable |
| Taux de location | Sur demande |
| Utilisation de l’espace | Bureau |
| Aménagement | - |
| Disponible | À déterminer |
Block 5 will be the final block to be developed at Madison Yards This premier Class A office and/or medical building will offer structured parking, and it has the potential for rooftop patio areas. The design is entirely flexible at this point, but a 7- to 10-story building is envisioned.
- Convient pour 45 à 144 personnes
- Peut être associé à un ou plusieurs espaces supplémentaires pour obtenir jusqu’à 180 000 pi² d’espace adjacent.
- Included in new commercial park!
4730 Sheboygan Ave - 8e étage - ste 8th Floor
| Taille | 18 000 pi² |
| Terme | Négociable |
| Taux de location | Sur demande |
| Utilisation de l’espace | Bureau |
| Aménagement | - |
| Disponible | À déterminer |
Block 5 will be the final block to be developed at Madison Yards This premier Class A office and/or medical building will offer structured parking, and it has the potential for rooftop patio areas. The design is entirely flexible at this point, but a 7- to 10-story building is envisioned.
- Convient pour 45 à 144 personnes
- Peut être associé à un ou plusieurs espaces supplémentaires pour obtenir jusqu’à 180 000 pi² d’espace adjacent.
- Included in new commercial park!
4730 Sheboygan Ave - 9e étage - ste 9th Floor
| Taille | 18 000 pi² |
| Terme | Négociable |
| Taux de location | Sur demande |
| Utilisation de l’espace | Bureau |
| Aménagement | - |
| Disponible | À déterminer |
Block 5 will be the final block to be developed at Madison Yards This premier Class A office and/or medical building will offer structured parking, and it has the potential for rooftop patio areas. The design is entirely flexible at this point, but a 7- to 10-story building is envisioned.
- Convient pour 45 à 144 personnes
- Peut être associé à un ou plusieurs espaces supplémentaires pour obtenir jusqu’à 180 000 pi² d’espace adjacent.
- Included in new commercial park!
4730 Sheboygan Ave - 10e étage - ste 10th Floor
| Taille | 18 000 pi² |
| Terme | Négociable |
| Taux de location | Sur demande |
| Utilisation de l’espace | Bureau |
| Aménagement | - |
| Disponible | À déterminer |
Block 5 will be the final block to be developed at Madison Yards This premier Class A office and/or medical building will offer structured parking, and it has the potential for rooftop patio areas. The design is entirely flexible at this point, but a 7- to 10-story building is envisioned.
- Convient pour 45 à 144 personnes
- Peut être associé à un ou plusieurs espaces supplémentaires pour obtenir jusqu’à 180 000 pi² d’espace adjacent.
- Included in new commercial park!
Plan de site
Sélectionner des locataires à cette propriété
- Étage
- Nom du locataire
- Secteur
- 3ᵉ
- Credit Union National Association
- Services
Aperçu du parc
Présentation de Madison Yards à Hill Farms, un développement à usage mixte de premier plan de 21 acres situé à l'angle sud-ouest de l'avenue University et du chemin Segoe. Une place verte centrale piétonnière avec commerces, restaurants, hôtel haut de gamme, salle de sport et divertissement entoure ce bureau de classe A et ce parc médical. Ce campus axé sur l'avenir est centré sur l'équilibre travail-vie personnelle, avec une pelouse d'un acre et un espace de rassemblement spacieux avec des sièges confortables et de délicieux restaurants, servant d'espace dynamique pour des expériences amusantes et de la musique en direct. Le campus de bureaux de haute qualité et éconergétique est parfaitement équipé d'un grand parking pour offrir une accessibilité et une commodité sans faille. Les espaces flexibles sont parfaits pour une variété d'entreprises, y compris les entreprises en démarrage en croissance et les grandes entreprises à la recherche de leur nouveau siège emblématique. La suite de deuxième étage du 4703 Madison Yards Way offre jusqu'à 20 500 pieds carrés d'espace avec une divisibilité minimale de 5 000 pieds carrés. Ne manquez pas l'occasion de profiter de tout ce que Madison Yards offre, des marchés fermiers en été au patinage sur glace en hiver. Le 4703 Madison Yard Way est la destination idéale pour que votre entreprise prospère.
- Restaurant
- Terrasse sur le toit
Présenté par
Madison Yards Way | Madison, WI 53705
Hmm, il semble y avoir eu une erreur lors de l’envoi de votre message. Veuillez réessayer.
Merci! Votre message a été envoyé.


