Se Connecter/S’inscrire
Votre courriel a été envoyé.
4735 Turner Rd SE 27 000 pi² Industriel Immeuble Salem, OR 97317 6 972 621 $ CAD (258,25 $ CAD/pi²) 5,54% Taux de capitalisation



Certaines informations ont été traduites automatiquement.
RÉSUMÉ DE L'ANNONCE
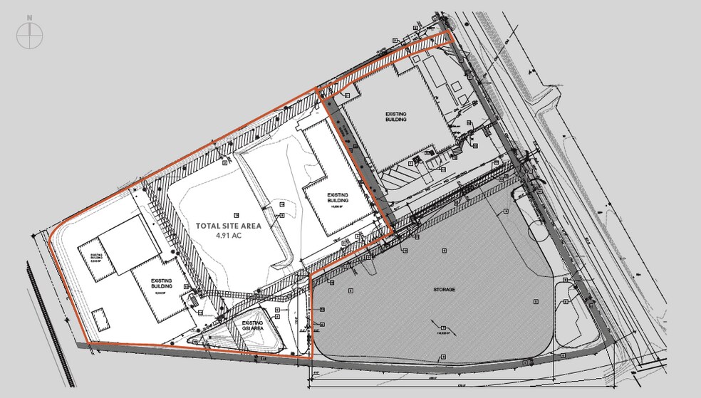
In 2006 Sequential Pacific Biodiesel invested $15 million in construction of a state-of-the-art Biofuel Plant. The plant was the first commercial Biodiesel plant in the Pacific Northwest.
In 2024 Sequential merged with Mahoney Environmental and became a division of Neste. In addition to the Biofuel Plant, Mahoney Environmental also operates their fuel truck yard, maintenance warehouse, and shop at this location.
In 2024 Sequential merged with Mahoney Environmental and became a division of Neste. In addition to the Biofuel Plant, Mahoney Environmental also operates their fuel truck yard, maintenance warehouse, and shop at this location.
FAITS SUR LA PROPRIÉTÉ
| Prix | 6 972 621 $ CAD | Aire du bâtiment louable | 27 000 pi² |
| Prix par pi² | 258,25 $ CAD | Nombre d’étages | 1 |
| Type de vente | Investissement pour loyer hypernet | Année de construction | 2006 |
| Taux de capitalisation | 5,54% | Location | Unique |
| Type de propriété | Industriel | Ratio de stationnement | 0,67/1 000 pi² |
| Sous-type de propriété | Centre de distribution | Effacer hauteur du plafond | 24’ |
| Classe d’immeuble | C | Nbre d’entrées dans les portes/au niveau du sol | 5 |
| Taille du lot | 4,19 AC | ||
| Zonage | IG | ||
| Prix | 6 972 621 $ CAD |
| Prix par pi² | 258,25 $ CAD |
| Type de vente | Investissement pour loyer hypernet |
| Taux de capitalisation | 5,54% |
| Type de propriété | Industriel |
| Sous-type de propriété | Centre de distribution |
| Classe d’immeuble | C |
| Taille du lot | 4,19 AC |
| Aire du bâtiment louable | 27 000 pi² |
| Nombre d’étages | 1 |
| Année de construction | 2006 |
| Location | Unique |
| Ratio de stationnement | 0,67/1 000 pi² |
| Effacer hauteur du plafond | 24’ |
| Nbre d’entrées dans les portes/au niveau du sol | 5 |
| Zonage | IG |
Impôts fonciers
| Numéro de lot | 349675 | Évaluation des bâtiments | 5 677 836 $ CAD |
| Évaluation du terrain | 0 $ CAD | Évaluation totale | 5 677 836 $ CAD |
Impôts fonciers
Numéro de lot
349675
Évaluation du terrain
0 $ CAD
Évaluation des bâtiments
5 677 836 $ CAD
Évaluation totale
5 677 836 $ CAD
1 de 4
VIDÉOS
VISITE EXTÉRIEURE 3D MATTERPORT
VISITE 3D MATTERPORT
PHOTOS
VUE DEPUIS LA RUE
RUE
CARTE
Présenté par
4735 Turner Rd SE
Vous êtes déjà membre? Connectez-vous
Hmm, il semble y avoir eu une erreur lors de l’envoi de votre message. Veuillez réessayer.
Merci! Votre message a été envoyé.

