Votre courriel a été envoyé.
La Quinta Medical Center 47647 Caleo Bay Dr 1 768–9 582 pi² d'espace disponible • Bureau/Médical • La Quinta, CA 92253



Certaines informations ont été traduites automatiquement.
Faits saillants
- Édifice médical de classe A de 2 étages
- Propriété institutionnelle Gestion professionnelle
- Généreuses indemnités TI
- Stationnement en surface avec décrochages couverts
- Proximité des commerces de détail Façade de la rue Washington
Tous les espaces disponibles(3)
Afficher les taux de location en
- Espace
- Taille
- Terme
- Taux de location
- Utilisation de l’espace
- Aménagement
- Disponible
Suite 100 • Space Available: 5,085 RSF • Lease Rate: $2.50/SF • Lease Type: MG • Suite Description: Previous Imaging Center. MRI. X-Ray. CT-Scan. Ultrasound/Bone Density. Scan Rooms. Waiting/Reception. Breakroom. Nurses’ Station. 3 In-Suite Restrooms. 3 Patient Dressing Rooms. 2 Storage Closets. IT Closet. 2 Doctor’s Office. Reading Room. Floor Plan: https://medwestrealty.com/wp-content/uploads/2022/01/Suite-100.png Virtual Tour: https://my.matterport.com/show/?m=mKuyw8B9hd8
- Entièrement construit comme Espace médical standard
- Aire de réception
Suite 150 • Space Available: 2,729 RSF • Lease Rate: $2.50/SF • Lease Type: FSG • Suite Description: 3 Offices. Exam Room. 3 In-Suite Restroom. Reception. Floor Plan: https://medwestrealty.com/wp-content/uploads/2022/01/Suite-150-1.png Virtual Tour: https://matterport.com/discover/space/NSefb3oPAJK
- Entièrement construit comme Espace de soins de santé
- Espace en excellent état
- Salle de bains privée
- 3 bureaux privés
- Aire de réception
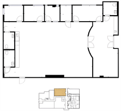
Suite 230 • Space Available: 1,768 RSF • Lease Rate: $2.50/SF • Lease Type: FSG • Suite Description: 4 Exam Rooms. Private Office. In-Suite Restroom. Waiting Room. Reception/Admin. Breakroom, and 2 Storage Rooms. Floor Plan: https://medwestrealty.com/wp-content/uploads/2022/01/Suite-230-scaled.png Virtual Tour: https://my.matterport.com/show/?m=LddHMNiyPvb Available 5/1/2026
- Le taux comprend les services publics, les services de bâtiment et les dépenses immobilières.
| Espace | Taille | Terme | Taux de location | Utilisation de l’espace | Aménagement | Disponible |
| 1er étage, ste 100 | 5 085 pi² | Négociable | Sur demande Sur demande Sur demande Sur demande | Bureau/Médical | construction complète | Maintenant |
| 1er étage, ste 150 | 2 729 pi² | Négociable | Sur demande Sur demande Sur demande Sur demande | Bureau/Médical | construction complète | Maintenant |
| 2e étage, ste 230 | 1 768 pi² | Négociable | 41,33 $ CAD/pi²/an 3,44 $ CAD/pi²/mois 73 063 $ CAD/an 6 089 $ CAD/mois | Bureau/Médical | - | 2026-05-01 |
1er étage, ste 100
| Taille |
| 5 085 pi² |
| Terme |
| Négociable |
| Taux de location |
| Sur demande Sur demande Sur demande Sur demande |
| Utilisation de l’espace |
| Bureau/Médical |
| Aménagement |
| construction complète |
| Disponible |
| Maintenant |
1er étage, ste 150
| Taille |
| 2 729 pi² |
| Terme |
| Négociable |
| Taux de location |
| Sur demande Sur demande Sur demande Sur demande |
| Utilisation de l’espace |
| Bureau/Médical |
| Aménagement |
| construction complète |
| Disponible |
| Maintenant |
2e étage, ste 230
| Taille |
| 1 768 pi² |
| Terme |
| Négociable |
| Taux de location |
| 41,33 $ CAD/pi²/an 3,44 $ CAD/pi²/mois 73 063 $ CAD/an 6 089 $ CAD/mois |
| Utilisation de l’espace |
| Bureau/Médical |
| Aménagement |
| - |
| Disponible |
| 2026-05-01 |
1er étage, ste 100
| Taille | 5 085 pi² |
| Terme | Négociable |
| Taux de location | Sur demande |
| Utilisation de l’espace | Bureau/Médical |
| Aménagement | construction complète |
| Disponible | Maintenant |
Suite 100 • Space Available: 5,085 RSF • Lease Rate: $2.50/SF • Lease Type: MG • Suite Description: Previous Imaging Center. MRI. X-Ray. CT-Scan. Ultrasound/Bone Density. Scan Rooms. Waiting/Reception. Breakroom. Nurses’ Station. 3 In-Suite Restrooms. 3 Patient Dressing Rooms. 2 Storage Closets. IT Closet. 2 Doctor’s Office. Reading Room. Floor Plan: https://medwestrealty.com/wp-content/uploads/2022/01/Suite-100.png Virtual Tour: https://my.matterport.com/show/?m=mKuyw8B9hd8
- Entièrement construit comme Espace médical standard
- Aire de réception
1er étage, ste 150
| Taille | 2 729 pi² |
| Terme | Négociable |
| Taux de location | Sur demande |
| Utilisation de l’espace | Bureau/Médical |
| Aménagement | construction complète |
| Disponible | Maintenant |
Suite 150 • Space Available: 2,729 RSF • Lease Rate: $2.50/SF • Lease Type: FSG • Suite Description: 3 Offices. Exam Room. 3 In-Suite Restroom. Reception. Floor Plan: https://medwestrealty.com/wp-content/uploads/2022/01/Suite-150-1.png Virtual Tour: https://matterport.com/discover/space/NSefb3oPAJK
- Entièrement construit comme Espace de soins de santé
- 3 bureaux privés
- Espace en excellent état
- Aire de réception
- Salle de bains privée
2e étage, ste 230
| Taille | 1 768 pi² |
| Terme | Négociable |
| Taux de location | 41,33 $ CAD/pi²/an |
| Utilisation de l’espace | Bureau/Médical |
| Aménagement | - |
| Disponible | 2026-05-01 |
Suite 230 • Space Available: 1,768 RSF • Lease Rate: $2.50/SF • Lease Type: FSG • Suite Description: 4 Exam Rooms. Private Office. In-Suite Restroom. Waiting Room. Reception/Admin. Breakroom, and 2 Storage Rooms. Floor Plan: https://medwestrealty.com/wp-content/uploads/2022/01/Suite-230-scaled.png Virtual Tour: https://my.matterport.com/show/?m=LddHMNiyPvb Available 5/1/2026
- Le taux comprend les services publics, les services de bâtiment et les dépenses immobilières.
Aperçu de la propriété
Centre médical La Quinta 47647 Baie Caleo, La Quinta, CA 92253 ---------------------------- Le Centre médical La Quinta est un immeuble de bureaux médicaux de deux étages de 41 600 pieds carrés, idéalement situé au cœur de La Quinta. Le site se trouve à proximité de l'autoroute 111 et de plusieurs des principaux détaillants de la région. Cet établissement médical à haute image dispose de deux suites disponibles, y compris un centre d'imagerie prêt à l'emploi avec des panneaux de signalisation sur les monuments. L'immeuble est dédié aux professionnels de la santé, avec un fort mélange de locataires, et dessert une base de patients importante de La Quinta, India et Coachella. Caractéristiques de la propriété : EMPLACEMENT ET ACCESSIBILITÉ PROÉMINENTS • Façade de la rue Washington • Proximité de l'autoroute 111 • Commodités de vente au détail voisines EMPLACEMENT IDÉAL DU MARCHÉ ET DU SITE • Capacité pratique de servir plus de 226 800 patients en 15 minutes de route STATIONNEMENT ABONDANT • Stationnement en surface avec stalles couvertes • Rapport de stationnement de 5,74/1 000 FAITS SAILLANTS • Propriété institutionnelle • Gestion professionnelle • Indemnités TI généreuses • Signalisation du monument disponible ------------------------ 2 suites disponibles : ------------------------ Pièce 100 • Espace disponible : 5 085 RSF • Taux de location : 2,50 $/SF • Type de bail : MG • Description de la suite : Centre d'imagerie précédent : salles d'IRM, radiographie, tomodensitométrie, échographie/analyse de la densité osseuse. Aattente et réception. Salle de réunion. Poste d'infirmières. 3 toilettes dans la suite. 3 vestiaires pour patients. 2 placards de rangement. Garde informatique et 2 cabinets de médecin/salle de lecture. Plan d'étage : https://medicalofficeproperty.com/wp-content/uploads/2022/01/La-Quinta-Suite-100.pdf Visite virtuelle : https://my.matterport.com/show/?m=mKuyw8B9hd8 ------------------------ Bureau 150 • Espace disponible : 2 729 RF • Taux de location : 2,50 $/SF • Type de bail : MG • Description de la suite : 3 bureaux. Salle d'examen. 3 toilettes dans la suite. Réception. Plan d'étage : https://medicalofficeproperty.com/wp-content/uploads/2022/01/STE150-2729RSF-LaQuintaMedicalCenter.pdf Visite virtuelle : https://matterport.com/discover/space/NSefb3oPAJK ------------------------ PLUS DE DÉTAILS : https://medwestrealty.com/property/la-quinta-medical-center/ TÉLÉCHARGEZ LA BROCHURE : https://medwestrealty.com/wp-content/uploads/2022/01/La-Quinta-Medical-Center_LB9_WL.pdf
- Accès 24 heures
- Bio-tech/Laboratoire
- Ligne d'autobus
- Affichage
- Certifié Energy Star
- Espace d'entreposage
- Réception
- Affichage sur monument
- Climatisation
Faits sur la propriété
Présenté par
La Quinta Medical Center | 47647 Caleo Bay Dr
Hmm, il semble y avoir eu une erreur lors de l’envoi de votre message. Veuillez réessayer.
Merci! Votre message a été envoyé.






