Se Connecter/S’inscrire
Votre courriel a été envoyé.
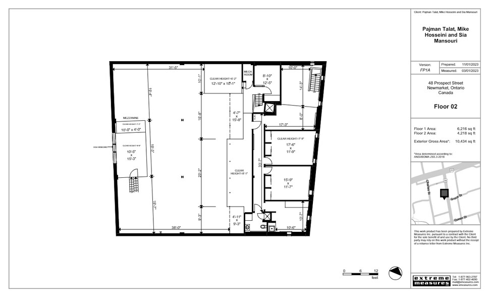
48 Prospect St 10 434 pi² 46% Loué Industriel Immeuble Newmarket, ON L3Y 3T3 2 690 000 $ CAD (257,81 $ CAD/pi²)



Certaines informations ont été traduites automatiquement.
Résumé de l'annonce
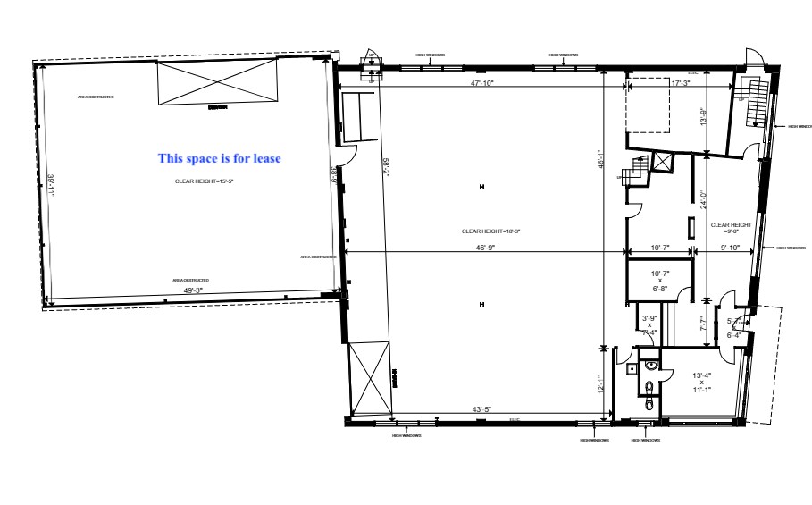
Cet espace exceptionnel de 10 434 pi² offre un rare mélange de fonctionnalité, de flexibilité et d’efficacité, idéal pour un large éventail d’utilisateurs industriels. Avec une hauteur libre de 18 pieds, l’unité offre une capacité verticale généreuse pour le rayonnage, l’équipement ou l’entreposage. Le service électrique mis à niveau permet des opérations industrielles légères à moyennes, tandis que deux portes de chargement de type entrée directe (drive-in) assurent une logistique fluide et un bon flux opérationnel.
Une aire de bureaux dédiée permet un usage administratif et la réception de la clientèle, avec une séparation claire de l’aire d’entrepôt. L’aménagement est ouvert et adaptable, convenant à la fabrication, à l’entreposage, à l’assemblage et à la distribution.
Un composant résidentiel additionnel au-dessus des bureaux offre une utilisation flexible, soit comme espace de bureaux supplémentaire, soit comme logement. La liste complète des usages permis est disponible; il y a également un volet résidentiel au-dessus des bureaux qui peut servir à la fois de bureaux additionnels et de logement. Les études environnementales de phase 1 et 2 ont été complétées et le dossier est conforme pour un financement hypothécaire. Le vendeur pourrait considérer une prise de retour de vendeur (VTB). Plan d’étage annexé. Environ 8 espaces de stationnement à l’arrière.
Une aire de bureaux dédiée permet un usage administratif et la réception de la clientèle, avec une séparation claire de l’aire d’entrepôt. L’aménagement est ouvert et adaptable, convenant à la fabrication, à l’entreposage, à l’assemblage et à la distribution.
Un composant résidentiel additionnel au-dessus des bureaux offre une utilisation flexible, soit comme espace de bureaux supplémentaire, soit comme logement. La liste complète des usages permis est disponible; il y a également un volet résidentiel au-dessus des bureaux qui peut servir à la fois de bureaux additionnels et de logement. Les études environnementales de phase 1 et 2 ont été complétées et le dossier est conforme pour un financement hypothécaire. Le vendeur pourrait considérer une prise de retour de vendeur (VTB). Plan d’étage annexé. Environ 8 espaces de stationnement à l’arrière.
Faits sur la propriété
| Prix | 2 690 000 $ CAD | Aire du bâtiment louable | 10 434 pi² |
| Prix par pi² | 257,81 $ CAD | Nombre d’étages | 2 |
| Type de vente | Investissement | Année de construction | 1956 |
| Type de propriété | Industriel | Ratio de stationnement | 0,77/1 000 pi² |
| Sous-type de propriété | Entrepôt | Effacer hauteur du plafond | 18’ |
| Classe d’immeuble | C | Nbre d’entrées dans les portes/au niveau du sol | 2 |
| Taille du lot | 0,22 AC | ||
| Zonage | Mu1 - Bâtiment autonome, 6216 pi², hauteur de plafond de 19 pi, comprend deux bureaux, 2 salles de bain, deux portes de garage. Idéal pour l'entreposage libre-service, la menuiserie. | ||
| Prix | 2 690 000 $ CAD |
| Prix par pi² | 257,81 $ CAD |
| Type de vente | Investissement |
| Type de propriété | Industriel |
| Sous-type de propriété | Entrepôt |
| Classe d’immeuble | C |
| Taille du lot | 0,22 AC |
| Aire du bâtiment louable | 10 434 pi² |
| Nombre d’étages | 2 |
| Année de construction | 1956 |
| Ratio de stationnement | 0,77/1 000 pi² |
| Effacer hauteur du plafond | 18’ |
| Nbre d’entrées dans les portes/au niveau du sol | 2 |
| Zonage | Mu1 - Bâtiment autonome, 6216 pi², hauteur de plafond de 19 pi, comprend deux bureaux, 2 salles de bain, deux portes de garage. Idéal pour l'entreposage libre-service, la menuiserie. |
Services publics
- Éclairage - Fluorescent
- Gaz - Naturel
- Eau - Ville
- Égout - Ville
- Chauffage - Électricité
Disponibilité des espaces
- Espace
- Taille
- Utilisation de l’espace
- Aménagement
- Disponible
49 x 39 avec un plafond de 15,5 pieds dispose d'une entrée de garage. Conditions flexibles, pas d'automobile.
| Espace | Taille | Utilisation de l’espace | Aménagement | Disponible |
| 1er Ét. - B | 5 676 pi² | Industriel | construction complète | Maintenant |
1er Ét. - B
| Taille |
| 5 676 pi² |
| Utilisation de l’espace |
| Industriel |
| Aménagement |
| construction complète |
| Disponible |
| Maintenant |
1er Ét. - B
| Taille | 5 676 pi² |
| Utilisation de l’espace | Industriel |
| Aménagement | construction complète |
| Disponible | Maintenant |
49 x 39 avec un plafond de 15,5 pieds dispose d'une entrée de garage. Conditions flexibles, pas d'automobile.
1 1
Moyennement practicable à pied
60/100
Exceptionnellement facile d'accès en voiture
90/100
Bons transports en commun
60/100
Moyennement praticable en vélo
60/100
1 de 18
Vidéos
Visite extérieure 3D Matterport
Visite 3D Matterport
Photos
Vue depuis la rue
Rue
Carte
1 de 1
Présenté par
48 Prospect St
Vous êtes déjà membre? Connectez-vous
Hmm, il semble y avoir eu une erreur lors de l’envoi de votre message. Veuillez réessayer.
Merci! Votre message a été envoyé.
