Votre courriel a été envoyé.
Leslie Professional Centre 4800 Leslie St 799 pi² d'espace disponible • Médical • Toronto, ON M2J 2K9



Certaines informations ont été traduites automatiquement.
FAITS SAILLANTS
- Beaucoup de lumière naturelle
- Accès aux transports en commun et aux autoroutes
- Stationnement Abondant
TOUS LES ESPACES DISPONIBLES(1)
Afficher les taux de location en
- ESPACE
- TAILLE
- TERME
- TAUX DE LOCATION
- UTILISATION DE L’ESPACE
- ÉTAT
- DISPONIBLE
Le Centre Médical 4800 Leslie est un immeuble médical très fréquenté et de grande renommée, composé de 4 étages, idéalement situé à moins d’un pâté de maisons de l’Hôpital Général de North York à Toronto. À quelques minutes des avenues Sheppard et Leslie, le bâtiment se trouve au cœur d’un quartier résidentiel densément peuplé, avec un accès direct et pratique aux transports en commun et à la station de métro Sheppard/Leslie. L’immeuble abrite une gamme complète de professionnels médicaux et dentaires, ainsi que des services de soutien complémentaires tels qu’une pharmacie, de l’imagerie diagnostique et un laboratoire. Un grand stationnement de surface gratuit est disponible pour les patients et les locataires. Une plaza située en face du bâtiment offre plusieurs restaurants proposant des aliments frais.
- Le taux de location ne comprend pas les services publics, les services de bâtiment ou les dépenses immobilières.
- Disposition intensive du bureau
- Salle de bains privée
- Beaucoup de lumière naturelle
- Fort achalandage piétonnier en journée
- Entièrement construit comme Espace médical standard
- Air central et chauffage
- Détecteur de fumée
- Bureaux privés
| Espace | Taille | Terme | Taux de location | Utilisation de l’espace | État | Disponible |
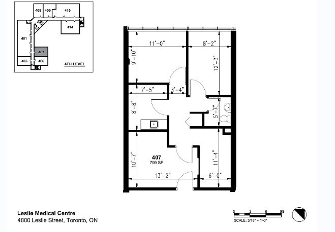
| 4e étage, ste 407 | 799 pi² | 5 ans | Sur demande Sur demande Sur demande Sur demande | Médical | construction complète | 30 jours |
4e étage, ste 407
| Taille |
| 799 pi² |
| Terme |
| 5 ans |
| Taux de location |
| Sur demande Sur demande Sur demande Sur demande |
| Utilisation de l’espace |
| Médical |
| État |
| construction complète |
| Disponible |
| 30 jours |
4e étage, ste 407
| Taille | 799 pi² |
| Terme | 5 ans |
| Taux de location | Sur demande |
| Utilisation de l’espace | Médical |
| État | construction complète |
| Disponible | 30 jours |
Le Centre Médical 4800 Leslie est un immeuble médical très fréquenté et de grande renommée, composé de 4 étages, idéalement situé à moins d’un pâté de maisons de l’Hôpital Général de North York à Toronto. À quelques minutes des avenues Sheppard et Leslie, le bâtiment se trouve au cœur d’un quartier résidentiel densément peuplé, avec un accès direct et pratique aux transports en commun et à la station de métro Sheppard/Leslie. L’immeuble abrite une gamme complète de professionnels médicaux et dentaires, ainsi que des services de soutien complémentaires tels qu’une pharmacie, de l’imagerie diagnostique et un laboratoire. Un grand stationnement de surface gratuit est disponible pour les patients et les locataires. Une plaza située en face du bâtiment offre plusieurs restaurants proposant des aliments frais.
- Le taux de location ne comprend pas les services publics, les services de bâtiment ou les dépenses immobilières.
- Entièrement construit comme Espace médical standard
- Disposition intensive du bureau
- Air central et chauffage
- Salle de bains privée
- Détecteur de fumée
- Beaucoup de lumière naturelle
- Bureaux privés
- Fort achalandage piétonnier en journée
APERÇU DE LA PROPRIÉTÉ
Le Centre Médical 4800 Leslie est un immeuble médical très fréquenté et de grande renommée, comptant 4 étages, idéalement situé à moins d’un pâté de maisons de l’Hôpital Général de North York à Toronto. À quelques minutes de l’avenue Sheppard et de la rue Leslie, ce bâtiment se trouve au cœur d’un quartier résidentiel densément peuplé, offrant un accès direct pratique aux transports en commun et à la station de métro Sheppard/Leslie.
- Ligne d'autobus
FAITS SUR LA PROPRIÉTÉ
SÉLECTIONNER DES LOCATAIRES
- ÉTAGE
- NOM DU LOCATAIRE
- SECTEUR
- 1ᵉʳ
- Art Coffee
- Hébergement et services alimentaires
- 3ᵉ
- Compass medical clinic
- -
- 4ᵉ
- Complex Infections Clinic
- -
- 3ᵉ
- Dr Fahima Osman General Surgeon
- -
- 4ᵉ
- Dr H Baghdadlian Internal Medicine
- -
- 2ᵉ
- Dr. Jairaj Govan, Pediatrics
- -
- 1ᵉʳ
- HiTek Medical Imaging
- Soins de santé et assistance sociale
- 1ᵉʳ
- LifeLabs
- Soins de santé et assistance sociale
- 2ᵉ
- LifeMark
- Soins de santé et assistance sociale
- 1ᵉʳ
- Sleep for Dentistry
- Soins de santé et assistance sociale
Présenté par
Entreprise non fournie
Leslie Professional Centre | 4800 Leslie St
Hmm, il semble y avoir eu une erreur lors de l’envoi de votre message. Veuillez réessayer.
Merci! Votre message a été envoyé.



