Votre courriel a été envoyé.
Addison/Keller Springs, Ltd. 4801-4849 Keller Springs Rd 1 925–9 031 pi² d'espace disponible • Flex • Addison, TX 75001



Certaines informations ont été traduites automatiquement.
Faits saillants
- Excellent emplacement d'Addison près de Bush Turnpike et Dallas North Tollway.
- Grande visibilité depuis le chemin Addison et les sources Keller.
- Magnifique attrait en voiture avec façade extérieure mise à jour.
- Situé à ½ mille à l'ouest de Dallas North Tollway.
- Chargement arrière au niveau du niveau de la pente.
- Tarifs concurrentiels.
Caractéristiques
Tous les espaces disponibles(4)
Afficher les taux de location en
- Espace
- Taille
- Terme
- Taux de location
- Utilisation de l’espace
- Aménagement
- Disponible
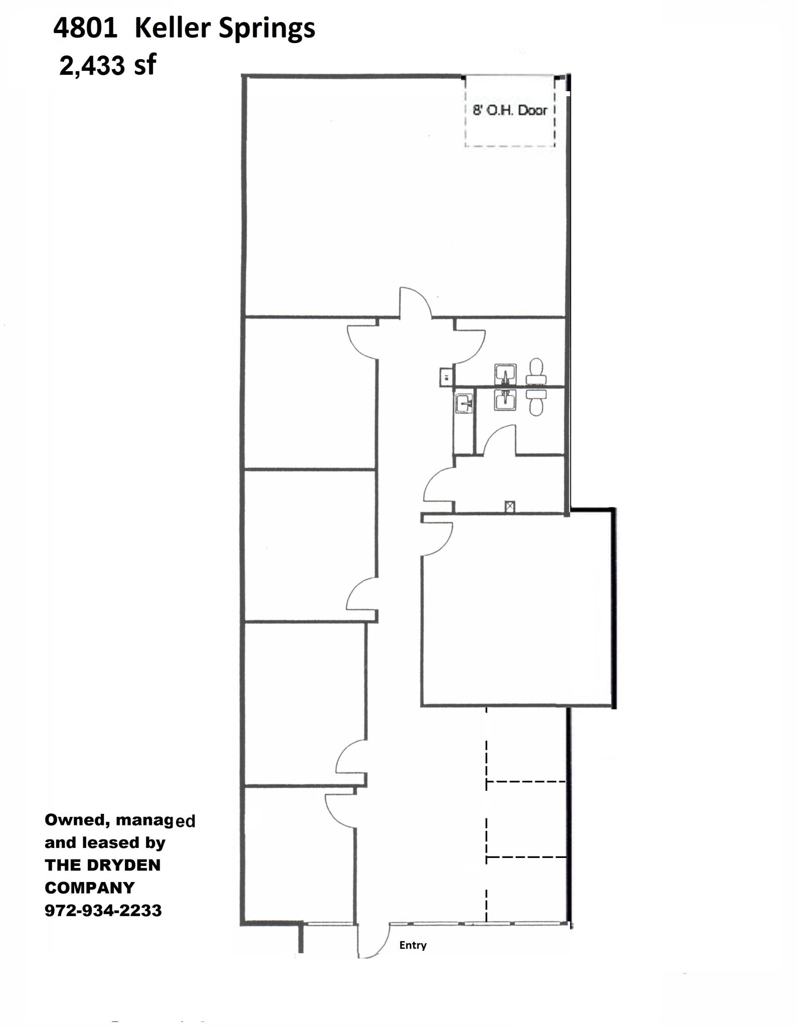
Reception, open area, 4 offices, conference room, restrooms, break area, warehouse with grade level loading.
- Le taux de location ne comprend pas les services publics, les services de bâtiment ou les dépenses immobilières.
- Espace en excellent état
- Comprend 1 700 pi² d’espace de bureau dédié
- 1 accès plain-pied
Recep, 4 offices, break, Restrooms, storage, warehouse with grade level loading. See floor plan
- Le taux de location ne comprend pas les services publics, les services de bâtiment ou les dépenses immobilières.
- 1 accès plain-pied
- Comprend 1 425 pi² d’espace de bureau dédié
100% Airconditioned and drop ceiling with rear grade level overhead door. Reception, 4 offices, break, restrooms, large open area with rear loading. This unit faces Keller Springs.
- Le taux de location ne comprend pas les services publics, les services de bâtiment ou les dépenses immobilières.
- 1 accès plain-pied
- Comprend 1 340 pi² d’espace de bureau dédié
Open front area, restroom, large airconditioned and drop ceiling back area with rear grade level overhear door. This area is approx 62% of the unit. See floor plan. Facing Keller Springs - great visibility!
- Le taux de location ne comprend pas les services publics, les services de bâtiment ou les dépenses immobilières.
- 1 accès plain-pied
- Salle de bains privée
- Comprend 750 pi² d’espace de bureau dédié
- Climatisation centrale
| Espace | Taille | Terme | Taux de location | Utilisation de l’espace | Aménagement | Disponible |
| 1er étage - 4801 | 2 433 pi² | 3-5 ans | 17,89 $ CAD/pi²/an 1,49 $ CAD/pi²/mois 43 538 $ CAD/an 3 628 $ CAD/mois | Flex | construction partielle | Maintenant |
| 1er étage - 4805 | 1 925 pi² | 3-5 ans | 17,21 $ CAD/pi²/an 1,43 $ CAD/pi²/mois 33 123 $ CAD/an 2 760 $ CAD/mois | Flex | - | Maintenant |
| 1er étage - 4821A | 2 679 pi² | 3-5 ans | 17,21 $ CAD/pi²/an 1,43 $ CAD/pi²/mois 46 097 $ CAD/an 3 841 $ CAD/mois | Flex | construction complète | Maintenant |
| 1er étage - 4827 | 1 994 pi² | 3-5 ans | 17,21 $ CAD/pi²/an 1,43 $ CAD/pi²/mois 34 310 $ CAD/an 2 859 $ CAD/mois | Flex | construction complète | Maintenant |
1er étage - 4801
| Taille |
| 2 433 pi² |
| Terme |
| 3-5 ans |
| Taux de location |
| 17,89 $ CAD/pi²/an 1,49 $ CAD/pi²/mois 43 538 $ CAD/an 3 628 $ CAD/mois |
| Utilisation de l’espace |
| Flex |
| Aménagement |
| construction partielle |
| Disponible |
| Maintenant |
1er étage - 4805
| Taille |
| 1 925 pi² |
| Terme |
| 3-5 ans |
| Taux de location |
| 17,21 $ CAD/pi²/an 1,43 $ CAD/pi²/mois 33 123 $ CAD/an 2 760 $ CAD/mois |
| Utilisation de l’espace |
| Flex |
| Aménagement |
| - |
| Disponible |
| Maintenant |
1er étage - 4821A
| Taille |
| 2 679 pi² |
| Terme |
| 3-5 ans |
| Taux de location |
| 17,21 $ CAD/pi²/an 1,43 $ CAD/pi²/mois 46 097 $ CAD/an 3 841 $ CAD/mois |
| Utilisation de l’espace |
| Flex |
| Aménagement |
| construction complète |
| Disponible |
| Maintenant |
1er étage - 4827
| Taille |
| 1 994 pi² |
| Terme |
| 3-5 ans |
| Taux de location |
| 17,21 $ CAD/pi²/an 1,43 $ CAD/pi²/mois 34 310 $ CAD/an 2 859 $ CAD/mois |
| Utilisation de l’espace |
| Flex |
| Aménagement |
| construction complète |
| Disponible |
| Maintenant |
1er étage - 4801
| Taille | 2 433 pi² |
| Terme | 3-5 ans |
| Taux de location | 17,89 $ CAD/pi²/an |
| Utilisation de l’espace | Flex |
| Aménagement | construction partielle |
| Disponible | Maintenant |
Reception, open area, 4 offices, conference room, restrooms, break area, warehouse with grade level loading.
- Le taux de location ne comprend pas les services publics, les services de bâtiment ou les dépenses immobilières.
- Comprend 1 700 pi² d’espace de bureau dédié
- Espace en excellent état
- 1 accès plain-pied
1er étage - 4805
| Taille | 1 925 pi² |
| Terme | 3-5 ans |
| Taux de location | 17,21 $ CAD/pi²/an |
| Utilisation de l’espace | Flex |
| Aménagement | - |
| Disponible | Maintenant |
Recep, 4 offices, break, Restrooms, storage, warehouse with grade level loading. See floor plan
- Le taux de location ne comprend pas les services publics, les services de bâtiment ou les dépenses immobilières.
- Comprend 1 425 pi² d’espace de bureau dédié
- 1 accès plain-pied
1er étage - 4821A
| Taille | 2 679 pi² |
| Terme | 3-5 ans |
| Taux de location | 17,21 $ CAD/pi²/an |
| Utilisation de l’espace | Flex |
| Aménagement | construction complète |
| Disponible | Maintenant |
100% Airconditioned and drop ceiling with rear grade level overhead door. Reception, 4 offices, break, restrooms, large open area with rear loading. This unit faces Keller Springs.
- Le taux de location ne comprend pas les services publics, les services de bâtiment ou les dépenses immobilières.
- Comprend 1 340 pi² d’espace de bureau dédié
- 1 accès plain-pied
1er étage - 4827
| Taille | 1 994 pi² |
| Terme | 3-5 ans |
| Taux de location | 17,21 $ CAD/pi²/an |
| Utilisation de l’espace | Flex |
| Aménagement | construction complète |
| Disponible | Maintenant |
Open front area, restroom, large airconditioned and drop ceiling back area with rear grade level overhear door. This area is approx 62% of the unit. See floor plan. Facing Keller Springs - great visibility!
- Le taux de location ne comprend pas les services publics, les services de bâtiment ou les dépenses immobilières.
- Comprend 750 pi² d’espace de bureau dédié
- 1 accès plain-pied
- Climatisation centrale
- Salle de bains privée
Aperçu de la propriété
Cet espace flexible à étages unique est situé à Addison, au Texas. Le plancher typique de ce bâtiment totalise 53 284 pc. Le zonage de cette propriété est DP. Excellente propriété située à l'angle du chemin Addison et de Keller Springs, en bordure de l'aéroport d'Addison. Accès facile à Dallas North Tollway.
Faits sur la propriété
Présenté par
Addison/Keller Springs, Ltd. | 4801-4849 Keller Springs Rd
Hmm, il semble y avoir eu une erreur lors de l’envoi de votre message. Veuillez réessayer.
Merci! Votre message a été envoyé.








