Se Connecter/S’inscrire
Votre courriel a été envoyé.
Buckner Medical 4801 S Buckner Blvd 28 443 pi² 44% Loué Bureau Immeuble Dallas, TX 75227 7 660 800 $ CAD (269,34 $ CAD/pi²)



Certaines informations ont été traduites automatiquement.
Résumé de l'annonce
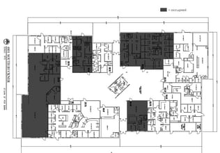
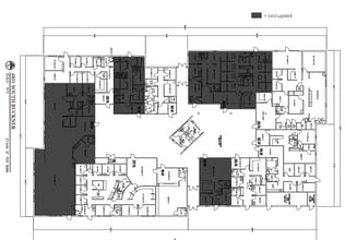
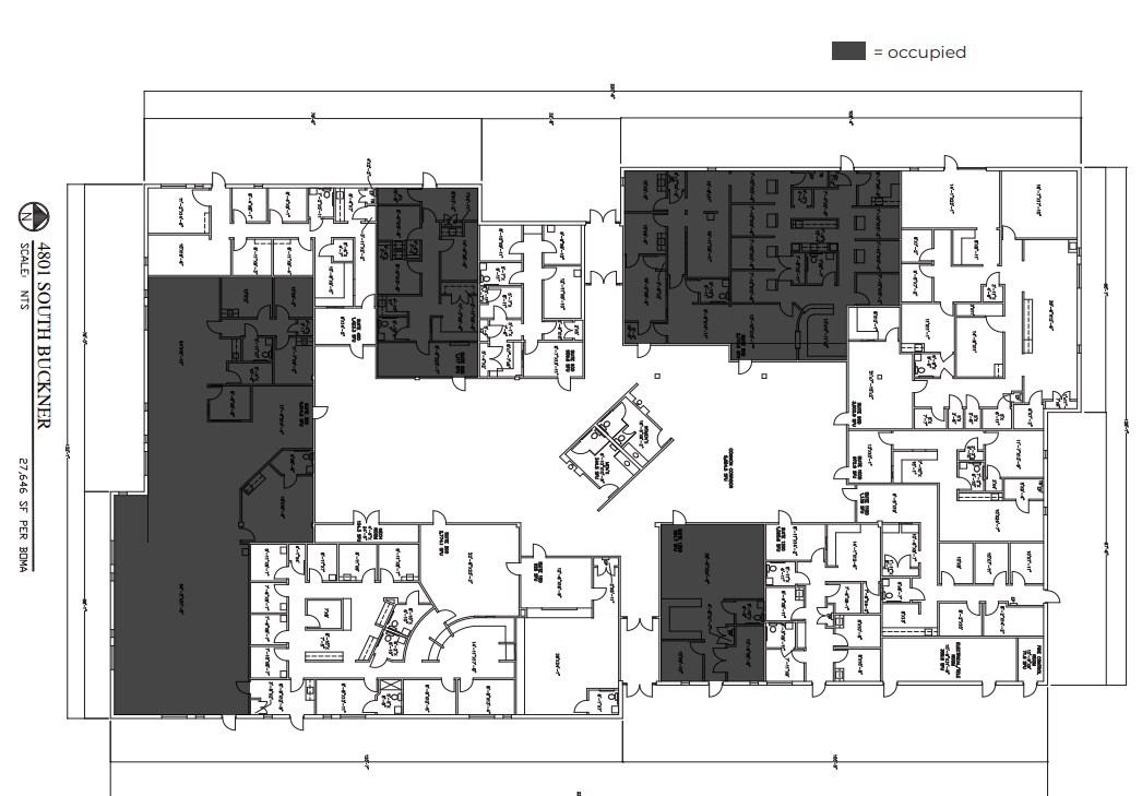
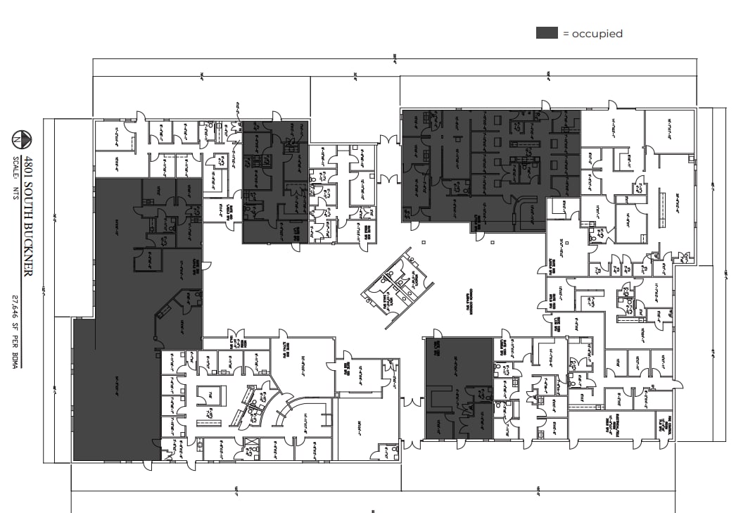
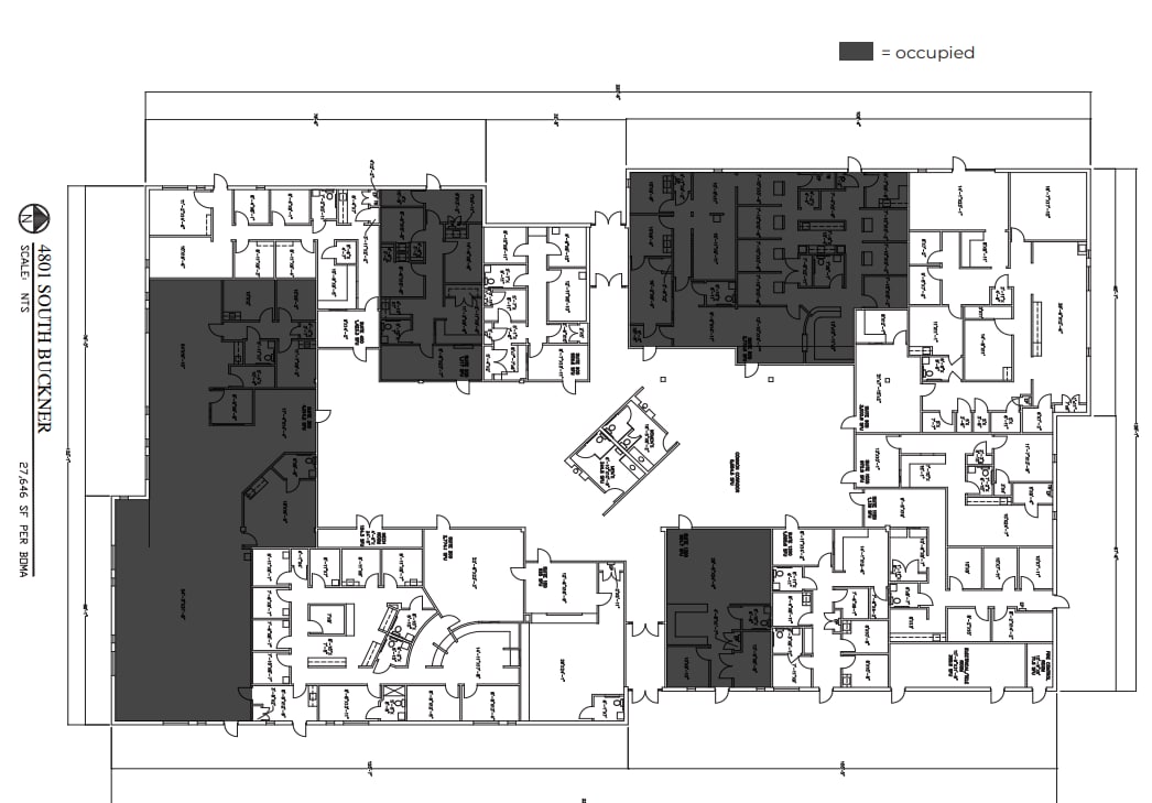
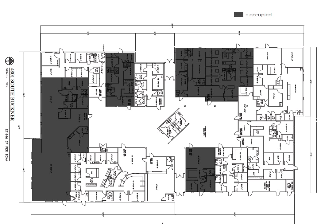
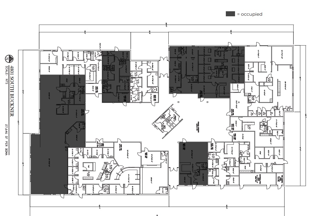
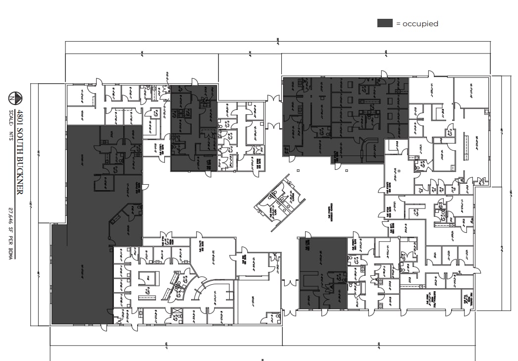
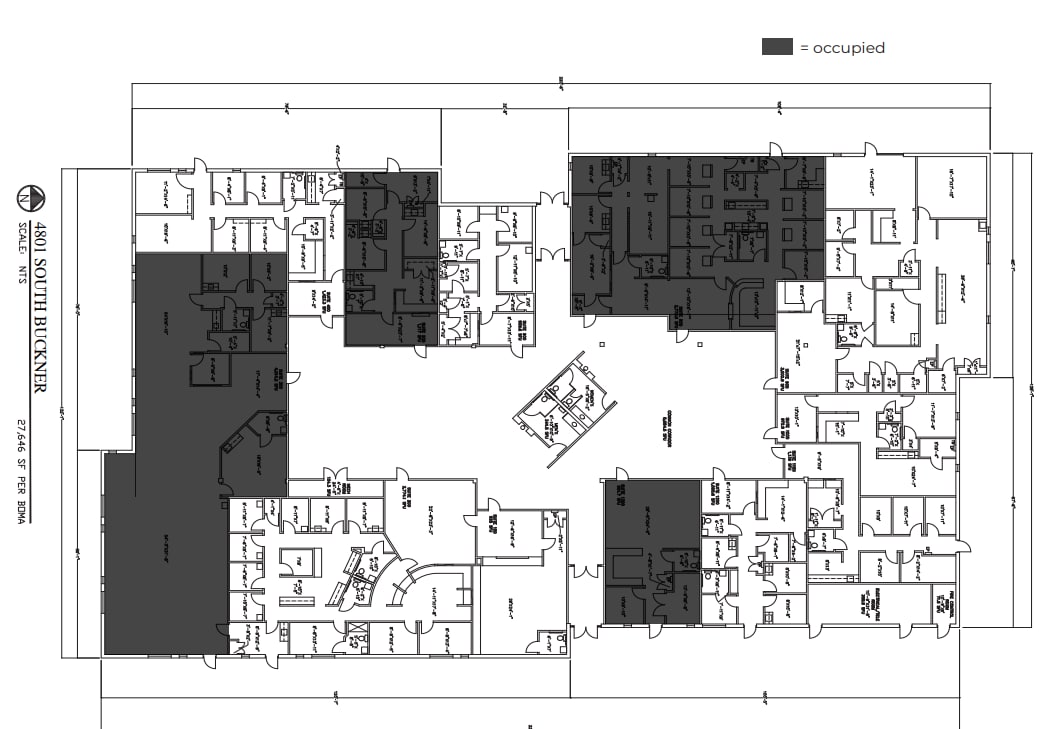
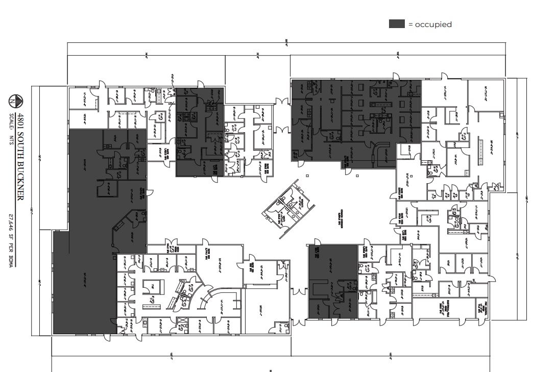
Buckner Medical Center is a ±28,443-square-foot, second-generation Class B medical office building situated on approximately three acres in Dallas, Texas. Conveniently located south of I-30 along Loop 12/Buckner Boulevard, the property offers excellent accessibility, visibility, and exposure within a highly trafficked corridor.
The building provides flexible suite options ranging from ±1,177 to ±7,979 square feet, accommodating a variety of medical practices and healthcare providers. The property recently received new exterior paint, enhancing its professional appearance and overall condition. With MC-1 zoning, adaptable floor plans, and a location within an Opportunity Zone offering potential tax advantages to owners, Buckner Medical Center presents an ideal opportunity for an owner-user or investor seeking a well-positioned, income-producing medical asset in the Dallas market.
The building provides flexible suite options ranging from ±1,177 to ±7,979 square feet, accommodating a variety of medical practices and healthcare providers. The property recently received new exterior paint, enhancing its professional appearance and overall condition. With MC-1 zoning, adaptable floor plans, and a location within an Opportunity Zone offering potential tax advantages to owners, Buckner Medical Center presents an ideal opportunity for an owner-user or investor seeking a well-positioned, income-producing medical asset in the Dallas market.
Faits sur la propriété
Type de vente
Investissement ou propriétaire utilisateur
Type de propriété
Bureau
Sous-type de propriété
Médical
Taille du bâtiment
28 443 pi²
Classe d’immeuble
B
Année de construction
2003
Prix
7 660 800 $ CAD
Prix par pi²
269,34 $ CAD
Pourcentage loué
44%
Location
Multiples
Hauteur du bâtiment
1 étage
Superficie de plancher typique
28 443 pi²
Coefficient d’occupation des sols de l’immeuble
0,22
Taille du lot
3,00 AC
Zone de développement économique
Oui
Zonage
MC-1
Stationnement
144 places (5,06 places par 1 000 pi² loué)
Commodités
- Atrium
- Chauffage central
- Lumière naturelle
Disponibilité des espaces
- Espace
- Taille
- Utilisation de l’espace
- Aménagement
- Disponible
| Espace | Taille | Utilisation de l’espace | Aménagement | Disponible |
| 1er Ét.-ste 100 | 1 201 pi² | Médical | - | Maintenant |
| 1er Ét.-ste 1000 | 1 258 pi² | Médical | - | Maintenant |
| 1er Ét.-ste 1100 | 1 474 pi² | Médical | - | Maintenant |
| 1er Ét.-ste 1200 | 1 363 pi² | Médical | - | Maintenant |
| 1er Ét.-ste 200 | 3 591 pi² | Médical | - | Maintenant |
| 1er Ét.-ste 400 | 1 842 pi² | Médical | - | Maintenant |
| 1er Ét.-ste 600 | 1 177 pi² | Médical | - | Maintenant |
| 1er Ét.-ste 900 | 3 884 pi² | Médical | - | Maintenant |
1er Ét.-ste 100
| Taille |
| 1 201 pi² |
| Utilisation de l’espace |
| Médical |
| Aménagement |
| - |
| Disponible |
| Maintenant |
1er Ét.-ste 1000
| Taille |
| 1 258 pi² |
| Utilisation de l’espace |
| Médical |
| Aménagement |
| - |
| Disponible |
| Maintenant |
1er Ét.-ste 1100
| Taille |
| 1 474 pi² |
| Utilisation de l’espace |
| Médical |
| Aménagement |
| - |
| Disponible |
| Maintenant |
1er Ét.-ste 1200
| Taille |
| 1 363 pi² |
| Utilisation de l’espace |
| Médical |
| Aménagement |
| - |
| Disponible |
| Maintenant |
1er Ét.-ste 200
| Taille |
| 3 591 pi² |
| Utilisation de l’espace |
| Médical |
| Aménagement |
| - |
| Disponible |
| Maintenant |
1er Ét.-ste 400
| Taille |
| 1 842 pi² |
| Utilisation de l’espace |
| Médical |
| Aménagement |
| - |
| Disponible |
| Maintenant |
1er Ét.-ste 600
| Taille |
| 1 177 pi² |
| Utilisation de l’espace |
| Médical |
| Aménagement |
| - |
| Disponible |
| Maintenant |
1er Ét.-ste 900
| Taille |
| 3 884 pi² |
| Utilisation de l’espace |
| Médical |
| Aménagement |
| - |
| Disponible |
| Maintenant |
1 de 1
Vidéos
Visite extérieure 3D Matterport
Visite 3D Matterport
Photos
Vue depuis la rue
Rue
Carte
1er Ét.-ste 100
| Taille | 1 201 pi² |
| Utilisation de l’espace | Médical |
| Aménagement | - |
| Disponible | Maintenant |
1 de 1
Vidéos
Visite extérieure 3D Matterport
Visite 3D Matterport
Photos
Vue depuis la rue
Rue
Carte
1er Ét.-ste 1000
| Taille | 1 258 pi² |
| Utilisation de l’espace | Médical |
| Aménagement | - |
| Disponible | Maintenant |
1 de 1
Vidéos
Visite extérieure 3D Matterport
Visite 3D Matterport
Photos
Vue depuis la rue
Rue
Carte
1er Ét.-ste 1100
| Taille | 1 474 pi² |
| Utilisation de l’espace | Médical |
| Aménagement | - |
| Disponible | Maintenant |
1 de 1
Vidéos
Visite extérieure 3D Matterport
Visite 3D Matterport
Photos
Vue depuis la rue
Rue
Carte
1er Ét.-ste 1200
| Taille | 1 363 pi² |
| Utilisation de l’espace | Médical |
| Aménagement | - |
| Disponible | Maintenant |
1 de 1
Vidéos
Visite extérieure 3D Matterport
Visite 3D Matterport
Photos
Vue depuis la rue
Rue
Carte
1er Ét.-ste 200
| Taille | 3 591 pi² |
| Utilisation de l’espace | Médical |
| Aménagement | - |
| Disponible | Maintenant |
1 de 1
Vidéos
Visite extérieure 3D Matterport
Visite 3D Matterport
Photos
Vue depuis la rue
Rue
Carte
1er Ét.-ste 400
| Taille | 1 842 pi² |
| Utilisation de l’espace | Médical |
| Aménagement | - |
| Disponible | Maintenant |
1 de 1
Vidéos
Visite extérieure 3D Matterport
Visite 3D Matterport
Photos
Vue depuis la rue
Rue
Carte
1er Ét.-ste 600
| Taille | 1 177 pi² |
| Utilisation de l’espace | Médical |
| Aménagement | - |
| Disponible | Maintenant |
1 de 1
Vidéos
Visite extérieure 3D Matterport
Visite 3D Matterport
Photos
Vue depuis la rue
Rue
Carte
1er Ét.-ste 900
| Taille | 3 884 pi² |
| Utilisation de l’espace | Médical |
| Aménagement | - |
| Disponible | Maintenant |
1 1
Assez praticable à pied
40/100
Exceptionnellement facile d’accès en voiture
100/100
Transports en commun relativement accessibles
40/100
Assez praticable en vélo
30/100
Impôts fonciers
| Numéro de lot | 006127000X01A0000 | Évaluation des bâtiments | 8 134 949 $ CAD |
| Évaluation du terrain | 893 851 $ CAD | Évaluation totale | 9 028 800 $ CAD |
Impôts fonciers
Numéro de lot
006127000X01A0000
Évaluation du terrain
893 851 $ CAD
Évaluation des bâtiments
8 134 949 $ CAD
Évaluation totale
9 028 800 $ CAD
1 de 4
Vidéos
Visite extérieure 3D Matterport
Visite 3D Matterport
Photos
Vue depuis la rue
Rue
Carte
1 de 1
Présenté par
Buckner Medical | 4801 S Buckner Blvd
Vous êtes déjà membre? Connectez-vous
Hmm, il semble y avoir eu une erreur lors de l’envoi de votre message. Veuillez réessayer.
Merci! Votre message a été envoyé.
















