Se Connecter/S’inscrire
Votre courriel a été envoyé.
4819 Broadway St
Addison, TX 75001
Bureau Propriété À vendre


Certaines informations ont été traduites automatiquement.
Faits saillants de l'investissement
- Excellent emplacement
Résumé de l'annonce
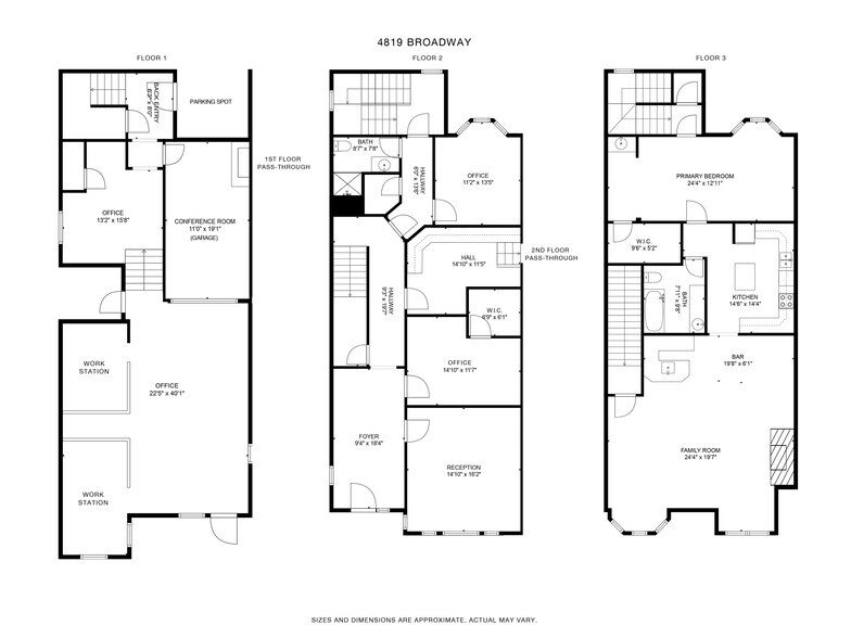
Ces deux propriétés distinctives offrent un charme d'antan combiné à un emplacement privilégié au cœur du nord de Dallas. Les deux unités sont disponibles à la vente ou à la location, ensemble ou séparément, avec la possibilité d'accueillir un ou plusieurs locataires. La première propriété, située au 4819 Broadway, offre 4 100 pieds carrés sur trois étages. Les premier et deuxième étages comprennent 4 bureaux, 2 postes de travail, une salle de conférence, des toilettes et une aire de réception, tandis que le troisième étage offre des espaces de vie facultatifs ou des espaces de bureaux supplémentaires. Le prix de cette unité est de 1 576 923$. La deuxième propriété, située au 4821 Broadway, offre une superficie de 3 148 pieds carrés sur deux étages. Le premier étage comprend une grande salle d'entrée/principale, 2 bureaux, 2 toilettes et une salle de galerie, tandis que le deuxième étage offre la possibilité d'un espace résidentiel ou de bureau. Le prix de cette propriété est de 1 210 784$. Les deux propriétés sont rehaussées d'antiquités européennes importées, y compris des vestibules, des cheminées, des barres, des portes d'entrée et des cadres de portes, complétant ainsi leur style architectural. Avec des pièces éclairées et une orientation sud, ces propriétés offrent une atmosphère unique et accueillante.
Faits sur la propriété
Type de vente
Propriétaire utilisateur
Type de propriété
Bureau
Sous-type de propriété
Taille du bâtiment
4 100 pi²
Classe d’immeuble
B
Année de construction
1985
Prix
2 636 425 $ CAD
Prix par pi²
643,03 $ CAD
Location
Unique
Hauteur du bâtiment
3 étages
Superficie de plancher typique
1 367 pi²
Coefficient d’occupation des sols de l’immeuble
1,57
Taille du lot
0,06 AC
Zonage
Z236 - Élaboration prévue
Commodités
- Climatisation
Impôts fonciers
| Numéro de lot | 10004650000100000 | Évaluation des bâtiments | 928 140 $ CAD |
| Évaluation du terrain | 50 824 $ CAD | Évaluation totale | 978 964 $ CAD |
Impôts fonciers
Numéro de lot
10004650000100000
Évaluation du terrain
50 824 $ CAD
Évaluation des bâtiments
928 140 $ CAD
Évaluation totale
978 964 $ CAD
1 de 26
Vidéos
Visite extérieure 3D Matterport
Visite 3D Matterport
Photos
Vue depuis la rue
Rue
Carte
