Votre courriel a été envoyé.
Building I 4820 Southpoint Dr 1 073–6 205 pi² d'espace disponible • Bureau • Fredericksburg, VA 22407



Certaines informations ont été traduites automatiquement.
Faits saillants
- Un poste vacant - actuellement un bureau de gestion immobilière
- 1 750 pc avec des finitions très attrayantes et une belle ligne de fenêtre.
- L'intérieur dispose d'une aire réceptionniste, d'une salle de conférence, d'une salle de pause et de 5 bureaux privés
- Beaucoup de détaillants dans la zone commerciale immédiate, y compris Chipotle, Super Walmart, McDonalds, bureau DMV et cinéma
Tous les espaces disponibles(3)
Afficher les taux de location en
- Espace
- Taille
- Terme
- Taux de location
- Utilisation de l’espace
- Aménagement
- Disponible
Four (4) private offices, reception, bathroom and storage. Can be combined with Suite 104 to total 2,566 SF.
- Le taux de location ne comprend pas les services publics, les services de bâtiment ou les dépenses immobilières.
Two (2) large open spaces to be used for cubicles or conference room, three (3) private offices, kitchenette, bathroom and storage. Can be combined with Suite 102 to total 2,566 SF.
- Le taux de location ne comprend pas les services publics, les services de bâtiment ou les dépenses immobilières.
Two (2) private offices, large open space to be used for cubicles or conference room, bathroom and storage.
- Le taux de location ne comprend pas les services publics, les services de bâtiment ou les dépenses immobilières.
- Disposition du plan d’étage ouverte
- Entièrement construit comme Bureau standard
| Espace | Taille | Terme | Taux de location | Utilisation de l’espace | Aménagement | Disponible |
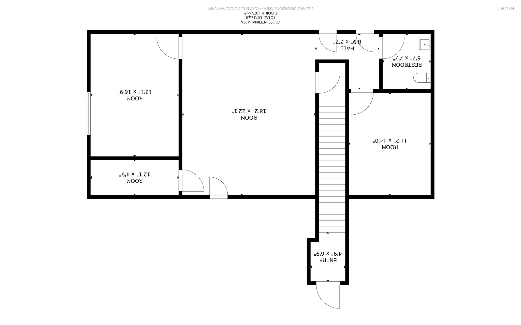
| 2e étage, ste 102 | 1 080 à 2 566 pi² | Négociable | 17,77 $ CAD/pi²/an 1,48 $ CAD/pi²/mois 45 598 $ CAD/an 3 800 $ CAD/mois | Bureau | - | Maintenant |
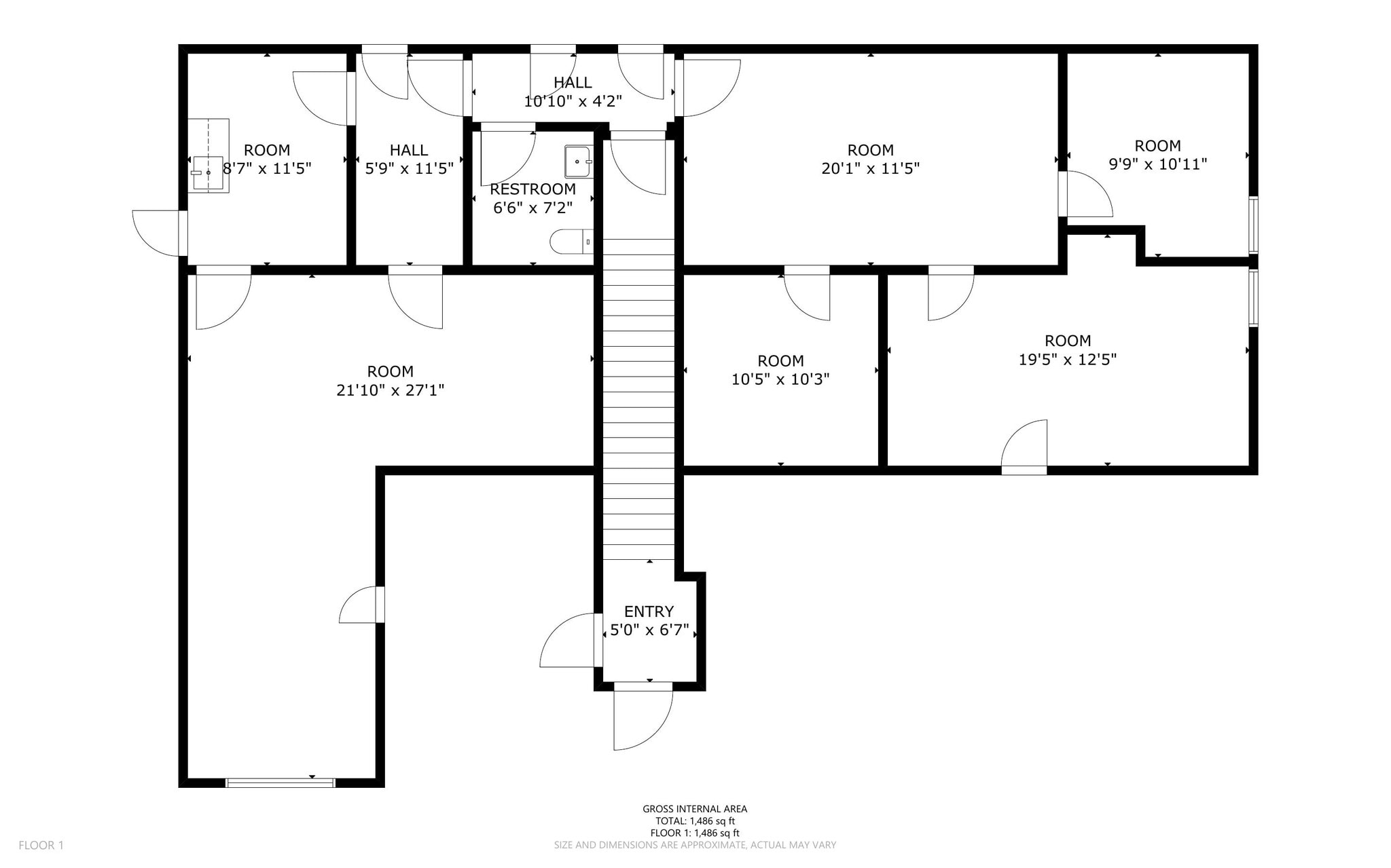
| 2e étage, ste 104 | 1 486 à 2 566 pi² | Négociable | 17,77 $ CAD/pi²/an 1,48 $ CAD/pi²/mois 45 598 $ CAD/an 3 800 $ CAD/mois | Bureau | - | Maintenant |
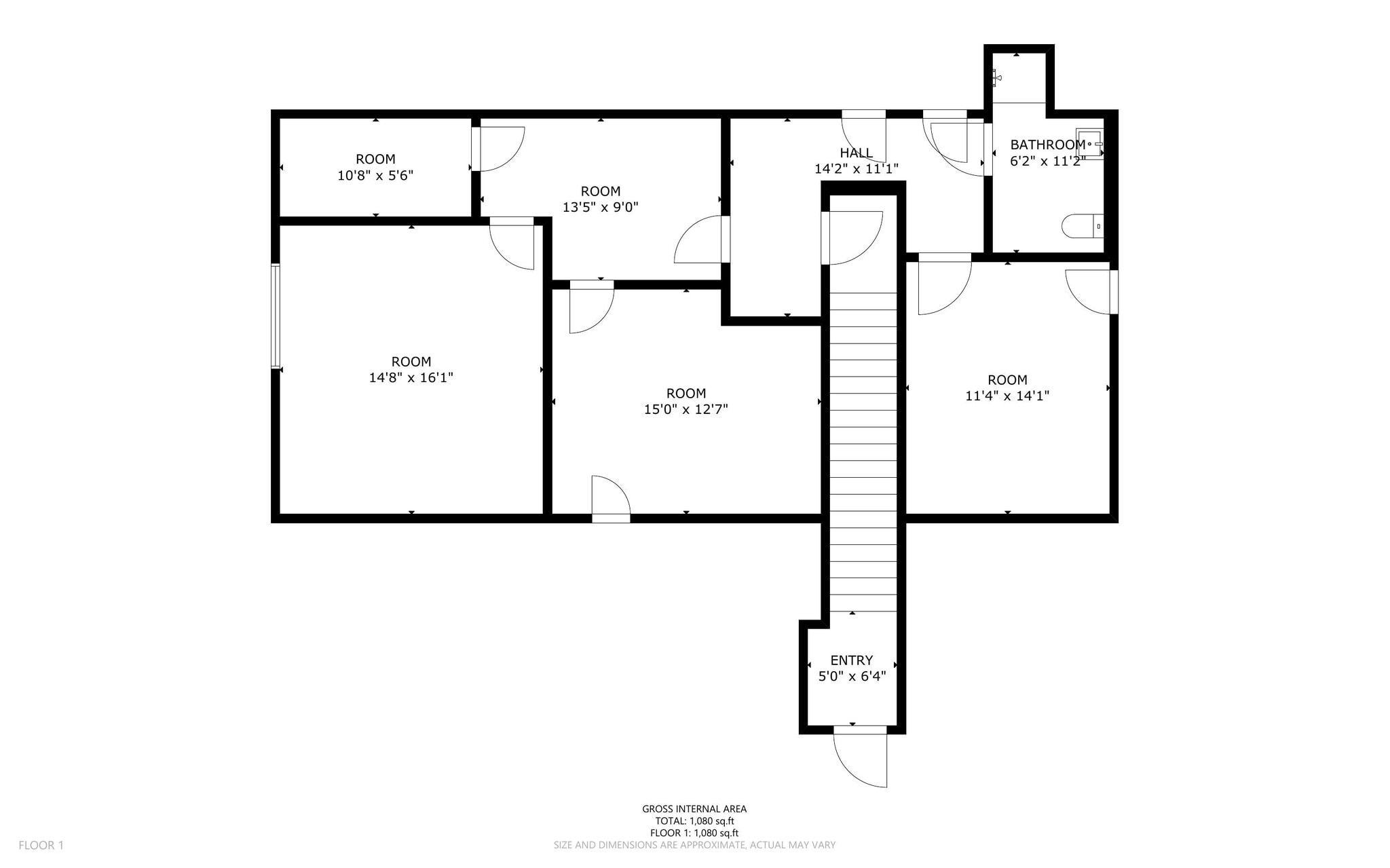
| 2e étage, ste 202 | 1 073 pi² | Négociable | 17,77 $ CAD/pi²/an 1,48 $ CAD/pi²/mois 19 067 $ CAD/an 1 589 $ CAD/mois | Bureau | construction complète | 30 jours |
2e étage, ste 102
| Taille |
| 1 080 à 2 566 pi² |
| Terme |
| Négociable |
| Taux de location |
| 17,77 $ CAD/pi²/an 1,48 $ CAD/pi²/mois 45 598 $ CAD/an 3 800 $ CAD/mois |
| Utilisation de l’espace |
| Bureau |
| Aménagement |
| - |
| Disponible |
| Maintenant |
2e étage, ste 104
| Taille |
| 1 486 à 2 566 pi² |
| Terme |
| Négociable |
| Taux de location |
| 17,77 $ CAD/pi²/an 1,48 $ CAD/pi²/mois 45 598 $ CAD/an 3 800 $ CAD/mois |
| Utilisation de l’espace |
| Bureau |
| Aménagement |
| - |
| Disponible |
| Maintenant |
2e étage, ste 202
| Taille |
| 1 073 pi² |
| Terme |
| Négociable |
| Taux de location |
| 17,77 $ CAD/pi²/an 1,48 $ CAD/pi²/mois 19 067 $ CAD/an 1 589 $ CAD/mois |
| Utilisation de l’espace |
| Bureau |
| Aménagement |
| construction complète |
| Disponible |
| 30 jours |
2e étage, ste 102
| Taille | 1 080 à 2 566 pi² |
| Terme | Négociable |
| Taux de location | 17,77 $ CAD/pi²/an |
| Utilisation de l’espace | Bureau |
| Aménagement | - |
| Disponible | Maintenant |
Four (4) private offices, reception, bathroom and storage. Can be combined with Suite 104 to total 2,566 SF.
- Le taux de location ne comprend pas les services publics, les services de bâtiment ou les dépenses immobilières.
2e étage, ste 104
| Taille | 1 486 à 2 566 pi² |
| Terme | Négociable |
| Taux de location | 17,77 $ CAD/pi²/an |
| Utilisation de l’espace | Bureau |
| Aménagement | - |
| Disponible | Maintenant |
Two (2) large open spaces to be used for cubicles or conference room, three (3) private offices, kitchenette, bathroom and storage. Can be combined with Suite 102 to total 2,566 SF.
- Le taux de location ne comprend pas les services publics, les services de bâtiment ou les dépenses immobilières.
2e étage, ste 202
| Taille | 1 073 pi² |
| Terme | Négociable |
| Taux de location | 17,77 $ CAD/pi²/an |
| Utilisation de l’espace | Bureau |
| Aménagement | construction complète |
| Disponible | 30 jours |
Two (2) private offices, large open space to be used for cubicles or conference room, bathroom and storage.
- Le taux de location ne comprend pas les services publics, les services de bâtiment ou les dépenses immobilières.
- Entièrement construit comme Bureau standard
- Disposition du plan d’étage ouverte
Aperçu de la propriété
L'un des emplacements à la croissance la plus rapide en Virginie, cet immeuble de bureaux de 15 000 pieds carrés et plus est entièrement loué et situé parmi une énorme croissance non seulement de nouveaux développements résidentiels mais commerciaux, y compris la nouvelle clinique VA, qui s'étendra sur 60 acres et sera une installation de quatre étages de 450 000 pieds carrés, à quelques minutes du parc Thompson Office.
Faits sur la propriété
Présenté par
Building I | 4820 Southpoint Dr
Hmm, il semble y avoir eu une erreur lors de l’envoi de votre message. Veuillez réessayer.
Merci! Votre message a été envoyé.






