Votre courriel a été envoyé.
Certaines informations ont été traduites automatiquement.
Faits saillants de l'investissement
- Clear Height of 14'
- Four 14' x 12' Garage Doors
- Land Area: 1.55 Acres
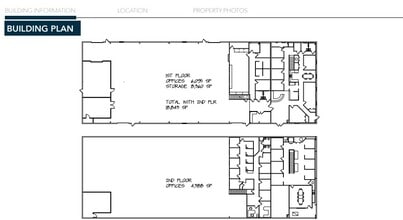
- Buildout consists of 10,843 SF office & 8,360 Warehouse
Résumé de l'annonce
Faits sur la propriété
| Type de vente | Propriétaire utilisateur | Nombre d’étages | 2 |
| Type de propriété | Industriel | Année de construction | 1989 |
| Sous-type de propriété | Manufacture | Ratio de stationnement | 1,43/1 000 pi² |
| Classe d’immeuble | B | Effacer hauteur du plafond | 20’ |
| Taille du lot | 1,55 AC | Nbre d’entrées dans les portes/au niveau du sol | 4 |
| Aire du bâtiment louable | 18 843 pi² | ||
| Zonage | IP - Industrial Park | ||
| Type de vente | Propriétaire utilisateur |
| Type de propriété | Industriel |
| Sous-type de propriété | Manufacture |
| Classe d’immeuble | B |
| Taille du lot | 1,55 AC |
| Aire du bâtiment louable | 18 843 pi² |
| Nombre d’étages | 2 |
| Année de construction | 1989 |
| Ratio de stationnement | 1,43/1 000 pi² |
| Effacer hauteur du plafond | 20’ |
| Nbre d’entrées dans les portes/au niveau du sol | 4 |
| Zonage | IP - Industrial Park |
Commodités
- Affichage
Disponibilité des espaces
- Espace
- Taille
- Utilisation de l’espace
- Aménagement
- Disponible
» Clear Height: 24’ » Roof Age: 2018 » Construction Type: Masonry Block » Land Area: 1.55 Acres » Four (4) 14’ x 12’ Garage Doors » Buildout consists of 10,843 SF Office and 8,360 SF Warehouse » Built in 2004
» Clear Height: 24’ » Roof Age: 2018 » Construction Type: Masonry Block » Land Area: 1.55 Acres » Four (4) 14’ x 12’ Garage Doors » Buildout consists of 10,843 SF Office and 8,360 SF Warehouse » Built in 2004
| Espace | Taille | Utilisation de l’espace | Aménagement | Disponible |
| 1er étage | 14 455 pi² | Industriel | - | 30 jours |
| 2e étage | 4 388 pi² | Industriel | - | 30 jours |
1er étage
| Taille |
| 14 455 pi² |
| Utilisation de l’espace |
| Industriel |
| Aménagement |
| - |
| Disponible |
| 30 jours |
2e étage
| Taille |
| 4 388 pi² |
| Utilisation de l’espace |
| Industriel |
| Aménagement |
| - |
| Disponible |
| 30 jours |
1er étage
| Taille | 14 455 pi² |
| Utilisation de l’espace | Industriel |
| Aménagement | - |
| Disponible | 30 jours |
» Clear Height: 24’ » Roof Age: 2018 » Construction Type: Masonry Block » Land Area: 1.55 Acres » Four (4) 14’ x 12’ Garage Doors » Buildout consists of 10,843 SF Office and 8,360 SF Warehouse » Built in 2004
2e étage
| Taille | 4 388 pi² |
| Utilisation de l’espace | Industriel |
| Aménagement | - |
| Disponible | 30 jours |
» Clear Height: 24’ » Roof Age: 2018 » Construction Type: Masonry Block » Land Area: 1.55 Acres » Four (4) 14’ x 12’ Garage Doors » Buildout consists of 10,843 SF Office and 8,360 SF Warehouse » Built in 2004
Impôts fonciers
| Numéro de lot | 25-36-15-00-00508.0-0000.00 | Évaluation des bâtiments | 0 $ CAD (2025) |
| Évaluation du terrain | 0 $ CAD (2025) | Évaluation totale | 1 596 417 $ CAD (2025) |
Impôts fonciers
Présenté par
485 Gus Hipp Blvd
Hmm, il semble y avoir eu une erreur lors de l’envoi de votre message. Veuillez réessayer.
Merci! Votre message a été envoyé.









