Se Connecter/S’inscrire
Votre courriel a été envoyé.
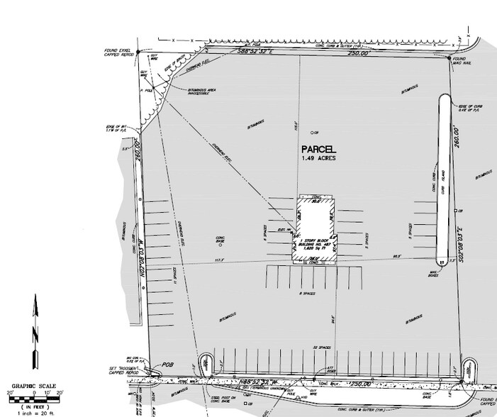
487 28th St SE
Grand Rapids, MI 49548
Commerce de détail Propriété À vendre


Certaines informations ont été traduites automatiquement.
Résumé de l'annonce
1,632 SF building on 1.49 acres for sale on busy 28th Street SE retail corridor near Madison Ave SE.
Neighboring retailers include McDonald's, Checkers, Taco Bell, Tuffy Tire and Courtesy Chrysler Dodge Jeep Ram.
Neighboring retailers include McDonald's, Checkers, Taco Bell, Tuffy Tire and Courtesy Chrysler Dodge Jeep Ram.
Faits sur la propriété Sous contrat
Type de vente
Investissement
Type de propriété
Commerce de détail
Sous-type de propriété
Immeuble de commerce
Taille du bâtiment
1 632 pi²
Classe d’immeuble
C
Année de construction
1965
Prix
1 500 664 $ CAD
Prix par pi²
919,52 $ CAD
Location
Unique
Hauteur du bâtiment
1 étage
Coefficient d’occupation des sols de l’immeuble
0,03
Taille du lot
1,49 AC
Zonage
MON-C - Commercial
Impôts fonciers
| Numéro de lot | 41-18-07-453-049 | Évaluation des bâtiments | 0 $ CAD |
| Évaluation du terrain | 0 $ CAD | Évaluation totale | 469 777 $ CAD |
Impôts fonciers
Numéro de lot
41-18-07-453-049
Évaluation du terrain
0 $ CAD
Évaluation des bâtiments
0 $ CAD
Évaluation totale
469 777 $ CAD
1 de 3
Vidéos
Visite extérieure 3D Matterport
Visite 3D Matterport
Photos
Vue depuis la rue
Rue
Carte
