Votre courriel a été envoyé.
Built-to-Suit Medical Building 489 E Main St 31 250 pi² d'espace disponible • Bureau/Médical • Jefferson Valley, NY 10535



Certaines informations ont été traduites automatiquement.
Disponibilité de l’espace (1)
Afficher les taux de location en
- Espace
- Taille
- Terme
- Taux de location
- Type de loyer
| Espace | Taille | Terme | Taux de location | Type de loyer | ||
| 1er étage | 31 250 pi² | Négociable | Sur demande Sur demande Sur demande Sur demande | À déterminer |
1er étage
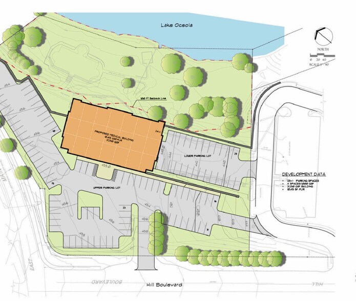
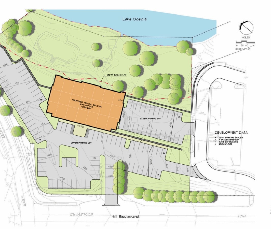
Rare medical office leasing opportunity in the heart of Jefferson Valley. Situated on approximately 2.5 acres just moments from Route 6, Route 6N, and the Taconic State Parkway, this highly accessible site offers exceptional visibility and connectivity within one of Northern Westchester’s primary commercial corridors. The project will deliver just over 30,000 gross square feet of modern medical office space and is being offered for lease on a build-to-suit basis, allowing future tenants to customize layout, infrastructure, and finishes to meet their specific operational needs. Ideal for medical practices, outpatient services, specialty providers, and healthcare groups seeking a strategically located facility with strong surrounding demographics and convenient regional access. A rare opportunity to secure purpose-built medical space in a supply-constrained market. For more information on lease terms, build-to-suit options, and delivery timelines, please inquire.
- 31,250 SF proposed medical office building
- To be built-to-suit as per tenants specifications
- 2.5 acre lot
- 125 on-site parking spaces
- Direct access to Rte 6, Rte 6N, Taconic
Types de loyers
Le type et le montant du loyer que le locataire (preneur) est tenu de payer au propriétaire (bailleur) sur la durée du bail sont négociés avant la signature du bail par les deux parties. Le type de loyer varie selon les services fournis. Par exemple, le prix d’un loyer hypernet est habituellement inférieur à celui d’un bail à service complet puisque le locataire est tenu d’assumer des dépenses additionnelles par rapport au loyer de base. Contactez le courtier inscripteur pour tout connaître sur les frais connexes et additionnels associés à chaque type de loyer.
1. Service complet: Un taux de location qui comprend des services standards liés à l’immeuble fournis par le propriétaire dans le cadre d’une location annuelle de base.
2. Loyer supernet: Le locataire paie seulement deux des frais de l’immeuble. Le propriétaire et le locataire déterminent ces frais spécifiques avant la signature du bail.
3. Loyer hypernet: Un bail en vertu duquel le locataire est responsable de tous les frais liés à sa part proportionnelle d’occupation de l’immeuble.
4. Brut modifié: Le loyer brut modifié désigne un type général de taux de location dans lequel le locataire est habituellement responsable de sa part proportionnelle d’un ou de plusieurs frais. C’est le propriétaire qui paie les frais restants. Considérez les structures tarifaires courantes suivantes applicables aux loyers bruts modifiés: 4. Plus les services: Un type de bail brut modifié suivant lequel le locataire est responsable de sa part proportionnelle des coûts des services publics, en plus du loyer. 4. Plus le nettoyage: Un type de bail brut modifié suivant lequel le locataire est responsable de sa part proportionnelle des coûts de nettoyage, en plus du loyer. 4. Plus l'électricité: Un type de bail brut modifié suivant lequel le locataire est responsable de sa part proportionnelle des coûts d’électricité, en plus du loyer. 4. Plus l’électricité et le nettoyage: Un type de bail brut modifié dans lequel le locataire est responsable de sa part proportionnelle des coûts d’électricité et de nettoyage, en plus du loyer. 4. Plus les services publics et le nettoyage: Un type de bail brut modifié dans lequel le locataire est responsable de sa part proportionnelle des coûts des services publics et de nettoyage, en plus du loyer. 4. Bail industriel brut: Un type de bail brut modifié dans lequel le locataire paie un ou plusieurs des frais, en plus du loyer. Le propriétaire et le locataire déterminent ces frais spécifiques avant la signature du bail.
5. L’électricité est à la charge du locataire: Le propriétaire paie pour tous les services et le locataire est responsable de sa propre utilisation de l’éclairage et des prises électriques dans l’espace qu’il occupe.
6. Négociable ou sur demande: Cette option est utilisée lorsque le contact de location ne précise pas le type de loyer ou de service.
7. À déterminer: À déterminer ; utilisé pour les immeubles dont le type de services ou de loyer n’est pas connu, souvent quand l’immeuble n’est pas encore construit.
Plan de site
Sélectionner des locataires à Built-to-Suit Medical Building
- Locataire
- Description
- Emplacements US
- Portée
- Jefferson Valley Manor
- Hébergement et services alimentaires
- 1
- -
| Locataire | Description | Emplacements US | Portée |
| Jefferson Valley Manor | Hébergement et services alimentaires | 1 | - |
Faits sur la propriété
| Superficie totale disponible | 31 250 pi² | Année de construction | 1970 |
| Type de propriété | Commerce de détail | Ratio de stationnement | 6,82/1 000 pi² |
| Sous-type de propriété | Immeuble de commerce | État de la construction | En cours de rénovation |
| Superficie commerciale brute | 31 250 pi² |
| Superficie totale disponible | 31 250 pi² |
| Type de propriété | Commerce de détail |
| Sous-type de propriété | Immeuble de commerce |
| Superficie commerciale brute | 31 250 pi² |
| Année de construction | 1970 |
| Ratio de stationnement | 6,82/1 000 pi² |
| État de la construction | En cours de rénovation |
À propos de la propriété
The Klein Lefkowitz Commercial Team at Houlihan Lawrence Commercial is pleased to present a rare medical office leasing opportunity at 489 E Main Street in Jefferson Valley, New York. Situated on approximately 2.5 acres within one of Northern Westchester's established healthcare corridors, this proposed development will deliver just over 31,000 gross square feet of modern, purpose built medical office space designed to meet the evolving needs of today's healthcare providers. The project is being offered on a build to suit basis, providing future tenants with the ability to fully customize floor plans, mechanical and IT infrastructure, and interior finishes to align with their specific clinical and operational requirements. With 125 on site parking spaces and direct access to Route 6, Route 6N, and proximity to the Taconic State Parkway, the property offers the accessibility and visibility that healthcare tenants and their patients require. The development is well suited for a wide range of healthcare related tenants, including medical office and specialty practices, primary care facilities, ambulatory and outpatient service providers, physical therapy and rehabilitation centers, diagnostic and imaging operations, urgent care and walk in clinics, laboratory and testing facilities, behavioral health and wellness practices, and pharmacy and complementary healthcare retail uses. Modern healthcare development trends emphasize centralized medical campuses and outpatient care hubs where patients can access multiple services in a single location. The proposed project at 489 E Main Street is designed to serve as exactly that type of environment, improving patient access, reducing travel time, encouraging collaboration among providers, and expanding outpatient healthcare infrastructure in a supply constrained submarket.
- Climatisation
Principaux détaillants à proximité
Présenté par
Built-to-Suit Medical Building | 489 E Main St
Hmm, il semble y avoir eu une erreur lors de l’envoi de votre message. Veuillez réessayer.
Merci! Votre message a été envoyé.



