Se Connecter/S’inscrire
Votre courriel a été envoyé.
4900 Fashion Square Mall
Saginaw, MI 48604
Sears (Former) · Commerce de détail Propriété À vendre


Certaines informations ont été traduites automatiquement.
Faits saillants de l'investissement
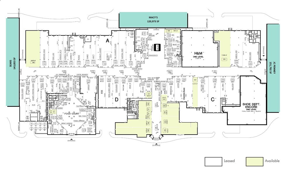
- Grande visibilité
- Les autres principaux points d'ancrage du centre commercial sont Macy's et JCpenny, et est entouré d'une salle de cinéma AMC.
Résumé de l'annonce
Le Fashion Square Mall de Saginaw dispose d'un total de 796 018 pi2 d'espace, dont 16 612 pi2 d'espace pour les centres automobiles. Les autres principaux présentateurs du centre commercial sont Macy's et JCpenny's, et est entouré d'une salle de cinéma AMC, Kohl's, Cabela's, Meijer et de centres commerciaux, y compris des magasins tels que
T.J. Maxx, Lowe's, Target et Five ci-dessous
T.J. Maxx, Lowe's, Target et Five ci-dessous
Faits sur la propriété
Type de vente
Investissement ou propriétaire utilisateur
Conditions de vente
Type de propriété
Commerce de détail
Sous-type de propriété
Grand magasin
Taille du bâtiment
188 772 pi²
Classe d’immeuble
C
Année de construction
1972
Pourcentage loué
100%
Hauteur du bâtiment
1 étage
Coefficient d’occupation des sols de l’immeuble
0,22
Taille du lot
19,88 AC
Zonage
B-3
Stationnement
381 places (1,43 places par 1 000 pi² loué)
Impôts fonciers
| Numéro de lot | 23-12-4-02-2002-000 | Évaluation des bâtiments | 0 $ CAD |
| Évaluation du terrain | 0 $ CAD | Évaluation totale | 3 867 361 $ CAD |
Impôts fonciers
Numéro de lot
23-12-4-02-2002-000
Évaluation du terrain
0 $ CAD
Évaluation des bâtiments
0 $ CAD
Évaluation totale
3 867 361 $ CAD
1 de 3
Vidéos
Visite extérieure 3D Matterport
Visite 3D Matterport
Photos
Vue depuis la rue
Rue
Carte
