Votre courriel a été envoyé.
4920 E Florida Ave Lot • Terrain commercial • 1,99 Acres • 3 196 310 $ CAD • Hemet, CA 92544



Certaines informations ont été traduites automatiquement.
Faits saillants de l'investissement
- Located along Florida Avenue (Highway 74), a major east-west thoroughfare.
- Surrounded by established retail, residential neighborhoods, and community amenities.
- CUP-approved plans for an express car wash and drive-thru restaurants
- High-traffic location with strong visibility and easy access.
- Zoning: C-2, supporting a wide range of commercial uses.
Résumé de l'annonce
Faits sur la propriété
1 Lot disponible
Lot
| Prix | 3 196 310 $ CAD | Taille du lot | 1,99 AC |
| Prix par AC | 1 602 401,43 $ CAD |
| Prix | 3 196 310 $ CAD |
| Prix par AC | 1 602 401,43 $ CAD |
| Taille du lot | 1,99 AC |
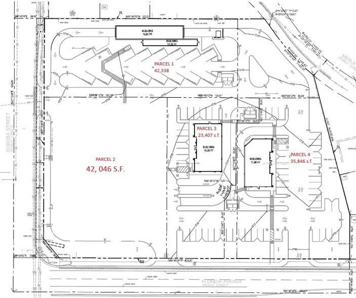
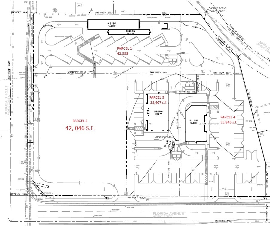
Corner Development site at signlized intersection of Florida Ave.(Hwy 74) and Soboba Ave.
Description
4920 E Florida Avenue at Soboba Street in Hemet, California, is a prime commercial development site located at a busy signalized intersection along Florida Avenue (Highway 74). The property spans approximately 1.99 acres and is zoned C-2, allowing for a variety of commercial uses. It comes with approvals for an express car wash and CUP-approved plans for restaurants with drive-thru service, making it an attractive opportunity for retail or service-oriented development. Positioned in a high-traffic corridor with excellent visibility and accessibility, the site benefits from strong surrounding demographics and proximity to established retail and residential areas.
Impôts fonciers
| Numéros de lot | Évaluation des bâtiments | 0 $ CAD | |
| Évaluation du terrain | 2 543 058 $ CAD | Évaluation totale | 2 543 058 $ CAD |
Impôts fonciers
Présenté par
BMI Realty, Inc.
4920 E Florida Ave
Hmm, il semble y avoir eu une erreur lors de l’envoi de votre message. Veuillez réessayer.
Merci! Votre message a été envoyé.
