Se Connecter/S’inscrire
Votre courriel a été envoyé.
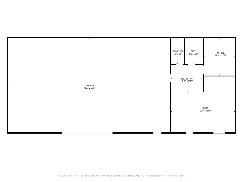
494 GA Highway 247 S 2 940 pi² Commerce de détail Immeuble Bonaire, GA 31005 896 610 $ CAD (304,97 $ CAD/pi²)



Certaines informations ont été traduites automatiquement.
FAITS SAILLANTS DE L'INVESTISSEMENT
- Located on GA Hwy 247 with strong traffic exposure.
- Flexible C2 zoning supports multiple business types.
- Available immediately following tenant liquidation.
- Near Robins Air Force Base, a major employment center.
- Ideal layout for retail, office, or service use.
RÉSUMÉ DE L'ANNONCE
Positioned directly on GA Highway 247 with commanding road frontage and high visibility, this freestanding commercial building in Bonaire, Georgia is now available for lease and for sale. The property offers a versatile layout ideal for a wide range of business uses—from retail and office to service-oriented operations and light manufacturing. Its C2 zoning supports flexible occupancy types, making it a strategic choice for entrepreneurs and established operators alike.
The site benefits from exceptional traffic counts and proximity to Robins Air Force Base, one of the region’s largest employment hubs, driving consistent footfall and consumer demand. The building’s current use as an auto parts store underscores its suitability for high-volume retail, while its adaptable interior allows for easy reconfiguration to suit tenant needs.
Whether you're launching a new concept or expanding an existing footprint, this property offers the visibility, access, and flexibility to support long-term success.
The site benefits from exceptional traffic counts and proximity to Robins Air Force Base, one of the region’s largest employment hubs, driving consistent footfall and consumer demand. The building’s current use as an auto parts store underscores its suitability for high-volume retail, while its adaptable interior allows for easy reconfiguration to suit tenant needs.
Whether you're launching a new concept or expanding an existing footprint, this property offers the visibility, access, and flexibility to support long-term success.
FAITS SUR LA PROPRIÉTÉ
Type de vente
Investissement ou propriétaire utilisateur
Condition de vente
Option du bail
Type de propriété
Commerce de détail
Sous-type de propriété
Taille du bâtiment
2 940 pi²
Classe d’immeuble
C
Année de construction
1986
Prix
896 610 $ CAD
Prix par pi²
304,97 $ CAD
Location
Unique
Hauteur du bâtiment
1 étage
Coefficient d’occupation des sols de l’immeuble
0,15
Taille du lot
0,45 AC
Zonage
C2 - Commercial
Stationnement
20 places (6,8 places par 1 000 pi² loué)
COMMODITÉS
- Système de sécurité
- Intersection avec signalisation
- Accessible aux fauteuils roulants
- Espace d'entreposage
- Climatisation
- Détecteur de fumée
PRINCIPAUX DÉTAILLANTS À PROXIMITÉ
Fifth Third Bank
Impôts fonciers
| Numéro de lot | 00125C068000 | Évaluation des bâtiments | 63 382 $ CAD |
| Évaluation du terrain | 110 058 $ CAD | Évaluation totale | 173 440 $ CAD |
Impôts fonciers
Numéro de lot
00125C068000
Évaluation du terrain
110 058 $ CAD
Évaluation des bâtiments
63 382 $ CAD
Évaluation totale
173 440 $ CAD
1 de 14
VIDÉOS
VISITE EXTÉRIEURE 3D MATTERPORT
VISITE 3D MATTERPORT
PHOTOS
VUE DEPUIS LA RUE
RUE
CARTE
Présenté par
494 GA Highway 247 S
Vous êtes déjà membre? Connectez-vous
Hmm, il semble y avoir eu une erreur lors de l’envoi de votre message. Veuillez réessayer.
Merci! Votre message a été envoyé.
