Votre courriel a été envoyé.
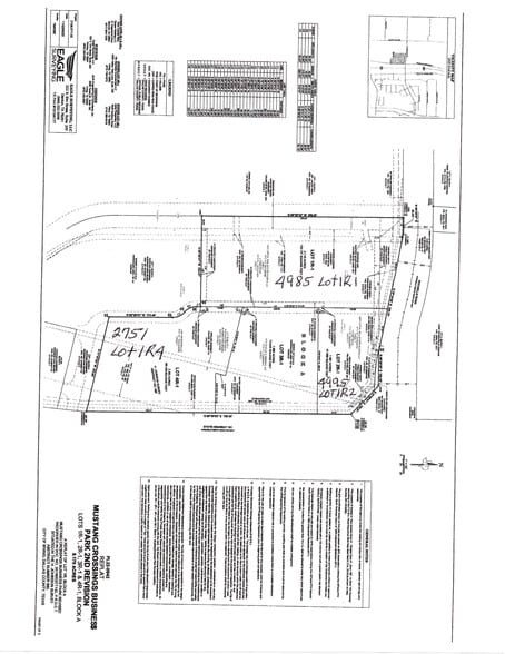
4985-4995 W Rochelle Rd - Mustang Crossing Lots • Terrain commercial • 1,08-3,12 Acre • 1 734 525 $-4 301 622 $ CAD par lot • Irving, TX 75062



Certaines informations ont été traduites automatiquement.
FAITS SAILLANTS DE L'INVESTISSEMENT
- Land Location - 2 minutes from the Airport!
RÉSUMÉ DE L'ANNONCE
FAITS SUR LA PROPRIÉTÉ
3 LOTS DISPONIBLES
Lot 4995
| Prix | 1 734 525 $ CAD | Taille du lot | 1,08 AC |
| Prix par AC | 1 606 041,63 $ CAD |
| Prix | 1 734 525 $ CAD |
| Prix par AC | 1 606 041,63 $ CAD |
| Taille du lot | 1,08 AC |
Lots can be purchased together or separately Lots can be purchased together or separately ZONING - PD - S-P-2 IN THE C - C DISTRICT allows a large variety of buildings such as Gas Station with Mini-Mart, Restaurant, Retail Strip Center, Warehouse.
Lot 4985
| Prix | 4 301 622 $ CAD | Taille du lot | 3,12 AC |
| Prix par AC | 1 378 724,97 $ CAD |
| Prix | 4 301 622 $ CAD |
| Prix par AC | 1 378 724,97 $ CAD |
| Taille du lot | 3,12 AC |
Lots can be purchased together or separately Lots can be purchased together or separately ZONING -PD-S-P-2 IN THE C - C DISTRICT allows a large variety of buildings such as Warehouses, Gas Station with Mini-Mart, Hotels with Mod, Retail Strip Center.
Lot 2751
| Prix | 1 748 401 $ CAD | Taille du lot | 2,26 AC |
| Prix par AC | 773 628,83 $ CAD |
| Prix | 1 748 401 $ CAD |
| Prix par AC | 773 628,83 $ CAD |
| Taille du lot | 2,26 AC |
Lots can be purchased together or separately Lots can be purchased together or separately ZONING-PD-S-P-2 IN THE C - C DISTRICT allows a large variety of buildings such as Warehouses, Gas Station with Mini-Mart, Hotels with Mod, Retail Strip Center.
DESCRIPTION
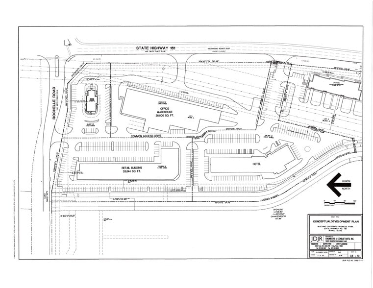
MUSTANG CROSSING BUSINESS PARK 2ND, LOTS 1R1, 1R2, 1R4 ZONAGE - PD - S-P-2 DANS LE DISTRICT C - C. EXCELLENTE OPPORTUNITÉ pour établir votre nouvel emplacement commercial dans la ville d'Irving, à quelques minutes de l'aéroport DFW. Les deux terrains sont situés dans un quartier d'affaires à fort volume, comprenant des entrepôts, une station-service avec dépanneur, des restaurants de restauration rapide, des hôtels, des immeubles de bureaux et des bâtiments industriels, générant un flux important de trafic commercial local et de voyageurs quotidiens. L'emplacement de l'enseigne augmentera la visibilité de votre entreprise avec un accès direct à l'autoroute 161 (PGBT). Le zonage S-P-2 dans le district C - C permet une grande variété de bâtiments sur ce terrain, tels que des restaurants ou des établissements de restauration rapide avec service au volant, des dépanneurs, des commerces de détail, des entrepôts avec espace de bureau. Une firme d'ingénierie locale d'Irving a déjà élaboré des plans conceptuels pour ce lot. Les possibilités sont infinies avec la ville d'Irving.
Impôts fonciers
| Numéros de lot | Évaluation des bâtiments | 0 $ CAD | |
| Évaluation du terrain | 2 500 626 $ CAD | Évaluation totale | 2 500 626 $ CAD |
Impôts fonciers
Présenté par
4985-4995 W Rochelle Rd - Mustang Crossing
Hmm, il semble y avoir eu une erreur lors de l’envoi de votre message. Veuillez réessayer.
Merci! Votre message a été envoyé.
