Se Connecter/S’inscrire
Votre courriel a été envoyé.
499 Botany Rd - ALBA Unité de condo • Commerce de détail • 1 011 pi² • Zetland, NSW 2017



Certaines informations ont été traduites automatiquement.
Faits saillants de l'investissement
- Prime Zetland location surrounded by high-density residential and commercial developments.
- Modern, well-maintained interior with flexible fit-out options.
- Excellent accessibility with nearby public transport and ample local amenities.
Résumé de l'annonce
Positioned within the heart of a vibrant residential and commercial environment, the shop benefits from continuous foot traffic and easy connection to local amenities. The location is supported by strong public transport links and is surrounded by cafés, supermarkets, and community facilities, offering convenience for both customers and staff. The property also includes one secure car space and a storage cage, adding to its practicality for day-to-day operations.
1 Unité disponible
- Unité
- Taille de l’unité
- Utilisation du condo
- Prix
- Revenu net d’exploitation
| Type de vente | Investissement | ID/Numéro de lot | CP/SP92073 |
| Type de vente | Investissement |
| ID/Numéro de lot | CP/SP92073 |
Description
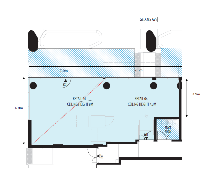
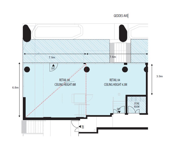
The property boasts an impressive 8-meter ceiling height and a wide shop front, providing exceptional visibility and a sense of spaciousness that allows for creative fit-outs and vertical displays. The modern interior is well-maintained and move-in ready, while still offering flexibility for customization to suit your business needs. Internal Space: 94 sqm of versatile floor space and External Area: 32 sqm of additional outdoor space.
Notes sur la vente
This premium retail property in the heart of Zetland offers a rare opportunity to secure a high-exposure space in one of Sydney’s most dynamic urban precincts. Featuring approximately 94 m² of internal space and an additional 32 m² of external area, this property is ideal for a wide range of businesses, including boutique retail, beauty salons, specialty stores, wellness centers, or service-based operations.
Additional conveniences include one dedicated car space, a secure storage cage, and proximity to public transport, ensuring easy access for both staff and customers. Surrounded by thriving residential and commercial developments, this location guarantees strong foot traffic and a diverse customer base. With its strategic positioning, generous floor area, and contemporary features, this property represents an outstanding opportunity for owner-occupiers or investors seeking long-term value in a high-demand market.
Additional conveniences include one dedicated car space, a secure storage cage, and proximity to public transport, ensuring easy access for both staff and customers. Surrounded by thriving residential and commercial developments, this location guarantees strong foot traffic and a diverse customer base. With its strategic positioning, generous floor area, and contemporary features, this property represents an outstanding opportunity for owner-occupiers or investors seeking long-term value in a high-demand market.
| Unité | Taille de l’unité | Utilisation du condo | Prix | Revenu net d’exploitation |
| Unité 4 | 1 011 pi² | Commerce de détail | Sur demande | - |
Unité 4
| Taille de l’unité |
| 1 011 pi² |
| Utilisation du condo |
| Commerce de détail |
| Prix |
| Sur demande |
| Revenu net d’exploitation |
| - |
1 de 1
Vidéos
Visite extérieure 3D Matterport
Visite 3D Matterport
Photos
Vue depuis la rue
Rue
Carte
Unité 4
| Taille de l’unité | 1 011 pi² |
| Utilisation du condo | Commerce de détail |
| Prix | Sur demande |
| Revenu net d’exploitation | - |
| Type de vente | Investissement |
| ID/Numéro de lot | CP/SP92073 |
| Description | |
| The property boasts an impressive 8-meter ceiling height and a wide shop front, providing exceptional visibility and a sense of spaciousness that allows for creative fit-outs and vertical displays. The modern interior is well-maintained and move-in ready, while still offering flexibility for customization to suit your business needs. Internal Space: 94 sqm of versatile floor space and External Area: 32 sqm of additional outdoor space.</li></ul> | |
| Notes sur la vente | |
| This premium retail property in the heart of Zetland offers a rare opportunity to secure a high-exposure space in one of Sydney’s most dynamic urban precincts. Featuring approximately 94 m² of internal space and an additional 32 m² of external area, this property is ideal for a wide range of businesses, including boutique retail, beauty salons, specialty stores, wellness centers, or service-based operations.<br> <br> Additional conveniences include one dedicated car space, a secure storage cage, and proximity to public transport, ensuring easy access for both staff and customers. Surrounded by thriving residential and commercial developments, this location guarantees strong foot traffic and a diverse customer base. With its strategic positioning, generous floor area, and contemporary features, this property represents an outstanding opportunity for owner-occupiers or investors seeking long-term value in a high-demand market.</li></ul> |
Faits sur la propriété
Les caractéristiques suivantes s'appliquent à l'ensemble du bâtiment. Les détails relatifs aux unités de copropriété individuelles peuvent varier et figurent dans les informations concernant les unités ci-dessus.
| Taille totale du bâtiment | 14 015 pi² | Classe d’immeuble | B |
| Type de propriété | Immeuble residentiel (Condo) | Planchers | 14 |
| Sous-type de propriété | Appartement | Superficie de plancher typique | 1 001 pi² |
| Taille totale du bâtiment | 14 015 pi² |
| Type de propriété | Immeuble residentiel (Condo) |
| Sous-type de propriété | Appartement |
| Classe d’immeuble | B |
| Planchers | 14 |
| Superficie de plancher typique | 1 001 pi² |
1 1
1 de 4
Vidéos
Visite extérieure 3D Matterport
Visite 3D Matterport
Photos
Vue depuis la rue
Rue
Carte
1 de 1
Présenté par
499 Botany Rd - ALBA
Vous êtes déjà membre? Connectez-vous
Hmm, il semble y avoir eu une erreur lors de l’envoi de votre message. Veuillez réessayer.
Merci! Votre message a été envoyé.

