Votre courriel a été envoyé.
Garden View Professional Center 499 N El Camino Real 4 668–8 630 pi² d'espace disponible • Bureau/Médical • Encinitas, CA 92024



Certaines informations ont été traduites automatiquement.
Tous les espaces disponibles(1)
Afficher les taux de location en
- Espace
- Taille
- Terme
- Taux de location
- Utilisation de l’espace
- Aménagement
- Disponible
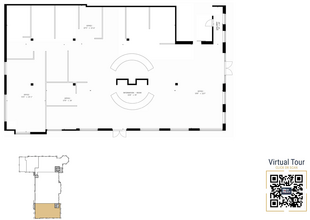
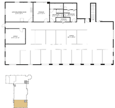
Suite A100 • Space Available: 4,668 SF - 8,630 SF • Lease Rate: Call for details • Lease Type: Call for details • Suite Description: - Large medical office suite available with over 4,000 RSF on the first floor allowing patients and staff to simply drive up, park, and walk directly into the suite. Suite is connected via internal staircase and private elevator. - Suite can be demised as Landlord would create a vestibule separating the two floors. - Expansive window lines provide abundant natural light throughout both floors, creating an efficient, comfortable environment for multi-provider practices, specialty care, or wellness services. - Prominent building-top signage and a monument sign opportunity on high-traffic El Camino Real deliver outstanding exposure and branding for your practice. r connections to the rest of the property. Floor Plan: https://medwestrealty.com/wp-content/uploads/2026/01/MW-499-N-El-Camino-Real-SP1-1st-and-2nd-floor.png Virtual Tour: https://my.matterport.com/show/?m=nTcvjRT3Vh6
- Entièrement construit comme Espace médical standard
- Disposition du plan d’étage ouverte en général
| Espace | Taille | Terme | Taux de location | Utilisation de l’espace | Aménagement | Disponible |
| 1er étage, ste A100 | 4 668 à 8 630 pi² | Négociable | Sur demande Sur demande Sur demande Sur demande | Bureau/Médical | construction complète | Maintenant |
1er étage, ste A100
| Taille |
| 4 668 à 8 630 pi² |
| Terme |
| Négociable |
| Taux de location |
| Sur demande Sur demande Sur demande Sur demande |
| Utilisation de l’espace |
| Bureau/Médical |
| Aménagement |
| construction complète |
| Disponible |
| Maintenant |
1er étage, ste A100
| Taille | 4 668 à 8 630 pi² |
| Terme | Négociable |
| Taux de location | Sur demande |
| Utilisation de l’espace | Bureau/Médical |
| Aménagement | construction complète |
| Disponible | Maintenant |
Suite A100 • Space Available: 4,668 SF - 8,630 SF • Lease Rate: Call for details • Lease Type: Call for details • Suite Description: - Large medical office suite available with over 4,000 RSF on the first floor allowing patients and staff to simply drive up, park, and walk directly into the suite. Suite is connected via internal staircase and private elevator. - Suite can be demised as Landlord would create a vestibule separating the two floors. - Expansive window lines provide abundant natural light throughout both floors, creating an efficient, comfortable environment for multi-provider practices, specialty care, or wellness services. - Prominent building-top signage and a monument sign opportunity on high-traffic El Camino Real deliver outstanding exposure and branding for your practice. r connections to the rest of the property. Floor Plan: https://medwestrealty.com/wp-content/uploads/2026/01/MW-499-N-El-Camino-Real-SP1-1st-and-2nd-floor.png Virtual Tour: https://my.matterport.com/show/?m=nTcvjRT3Vh6
- Entièrement construit comme Espace médical standard
- Disposition du plan d’étage ouverte en général
Aperçu de la propriété
Garden View Professional Center is a highly visible, two-story medical and professional office building totaling ±34,000 SF along Encinitas’ main commercial corridor. The property offers strong corner exposure at El Camino Real and Garden View Road, providing excellent signage opportunities and easy access for patients and clients. The building features a Mediterranean architectural style, abundant surface parking, and suites designed to accommodate a wide range of medical and office users. Positioned within minutes of major retail amenities, residential communities, and regional thoroughfares, this location delivers high visibility, strong daily traffic counts, and a robust patient draw. The property sits in the heart of North County San Diego’s medical and commercial hub, making it ideal for established providers and growing practices. ------------------------ Property Features: PROMINENT LOCATION & VISIBILITY • Corner exposure at El Camino Real and Garden View Road • Excellent signage opportunities IDEAL MARKET & ACCESSIBILITY • The proximity to major throughfares enables this location to conveniently serve: • 317,000 patients within a 15 minute drive time • 160,770 patients within a 5 mile radius BUILDING HIGHLIGHTS • Strong tenant base including LabCorp, Rady’s and Simon Med Imaging • Office/medical building ideal for medical or professional tenants • Ample parking supporting both tenant and visitors • Strong road frontage/visibility along N. El Camino Real a key north-south arterial thoroughfare through Encinitas that connects to Interstate 5 • Available signage opportunities • Close proximity to Scripps Memorial Hospital Encinitas and other healthcare services
- Ligne d'autobus
- Affichage
- Bureaux partitionnés
Faits sur la propriété
Sélectionner des locataires
- Étage
- Nom du locataire
- Secteur
- 1ᵉʳ
- AAA
- Transport et entreposage
- 1ᵉʳ
- Children's Primary Care Medical Group, Inc.
- Soins de santé et assistance sociale
- 2ᵉ
- Dental Office of James Lawson
- Soins de santé et assistance sociale
- 1ᵉʳ
- LabCorp
- Soins de santé et assistance sociale
- 2ᵉ
- OasisMD Lifestyle Healthcare
- Soins de santé et assistance sociale
- 1ᵉʳ
- SimonMed Imaging
- Soins de santé et assistance sociale
Présenté par
Garden View Professional Center | 499 N El Camino Real
Hmm, il semble y avoir eu une erreur lors de l’envoi de votre message. Veuillez réessayer.
Merci! Votre message a été envoyé.




