Votre courriel a été envoyé.
5 Industrial Rd 9 190 pi² Industriel Immeuble St Marys, ON N4X 1G2 1 595 000 $ CAD (173,56 $ CAD/pi²)


Certaines informations ont été traduites automatiquement.
Faits saillants de l'investissement
- Un rapport sur l'environnement propre
- plusieurs bureaux privés
- s. Permis de zonage pour une grande variété d'utilisations, y compris la réparation automobile
Résumé de l'annonce
le chargement, une zone d'entreposage ou d'atelier à portée dégagée ;
de multiples bureaux privés. Permis de zonage pour un
une grande variété d'utilisations, y compris la réparation automobile ;
atelier des entrepreneurs et atelier d'usinage
Faits sur la propriété Sous contrat
| Prix | 1 595 000 $ CAD | Aire du bâtiment louable | 9 190 pi² |
| Prix par pi² | 173,56 $ CAD | Nombre d’étages | 1 |
| Type de vente | Investissement | Année de construction | 1978 |
| Type de propriété | Industriel | Location | Unique |
| Sous-type de propriété | Showroom | Effacer hauteur du plafond | 16’ |
| Classe d’immeuble | C | Nbre de quais à portes élevées/de chargement | 1 |
| Taille du lot | 0,50 AC | Nbre d’entrées dans les portes/au niveau du sol | 1 |
| Zonage | M1 - Industrielles | ||
| Prix | 1 595 000 $ CAD |
| Prix par pi² | 173,56 $ CAD |
| Type de vente | Investissement |
| Type de propriété | Industriel |
| Sous-type de propriété | Showroom |
| Classe d’immeuble | C |
| Taille du lot | 0,50 AC |
| Aire du bâtiment louable | 9 190 pi² |
| Nombre d’étages | 1 |
| Année de construction | 1978 |
| Location | Unique |
| Effacer hauteur du plafond | 16’ |
| Nbre de quais à portes élevées/de chargement | 1 |
| Nbre d’entrées dans les portes/au niveau du sol | 1 |
| Zonage | M1 - Industrielles |
Services publics
- Éclairage
- Gaz
- Eau
- Égout
- Chauffage
Disponibilité des espaces
- Espace
- Taille
- Utilisation de l’espace
- Aménagement
- Disponible
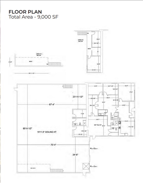
This industrial space offers 9,190 SF of functional layout, including a large warehouse area, private offices, and mezzanine storage. The property is equipped with one 8’ x 9’ dock-level door and one 14’ x 12’ drive-in door, supporting diverse loading requirements. Ceiling heights of approximately 15’11.5” allow for efficient racking and storage solutions. Located just minutes from Highway 7, the site provides convenient access to Stratford, London, Woodstock, and Waterloo Region. Ample on-site parking and flexible zoning make it suitable for a variety of industrial and service-oriented tenants.
| Espace | Taille | Utilisation de l’espace | Aménagement | Disponible |
| 1er étage | 9 190 pi² | Industriel | construction partielle | 30 jours |
1er étage
| Taille |
| 9 190 pi² |
| Utilisation de l’espace |
| Industriel |
| Aménagement |
| construction partielle |
| Disponible |
| 30 jours |
1er étage
| Taille | 9 190 pi² |
| Utilisation de l’espace | Industriel |
| Aménagement | construction partielle |
| Disponible | 30 jours |
This industrial space offers 9,190 SF of functional layout, including a large warehouse area, private offices, and mezzanine storage. The property is equipped with one 8’ x 9’ dock-level door and one 14’ x 12’ drive-in door, supporting diverse loading requirements. Ceiling heights of approximately 15’11.5” allow for efficient racking and storage solutions. Located just minutes from Highway 7, the site provides convenient access to Stratford, London, Woodstock, and Waterloo Region. Ample on-site parking and flexible zoning make it suitable for a variety of industrial and service-oriented tenants.
Présenté par
5 Industrial Rd
Hmm, il semble y avoir eu une erreur lors de l’envoi de votre message. Veuillez réessayer.
Merci! Votre message a été envoyé.


