Votre courriel a été envoyé.
Lot 2 - PERMITTED & APPROVED 50 Angelina Ave 13 000–26 400 pi² d'espace disponible • Industriel • McKees Rocks, PA 15136



Certaines informations ont été traduites automatiquement.
Faits saillants
- Situé dans la ZONE D'OPPORTUNITÉ fédérale. 5 minutes en voiture du centre-ville de Pittsburgh et de l'Interstate 79.
Caractéristiques
Tous les espaces disponibles(1)
Afficher les taux de location en
- Espace
- Taille
- Terme
- Taux de location
- Utilisation de l’espace
- Aménagement
- Disponible
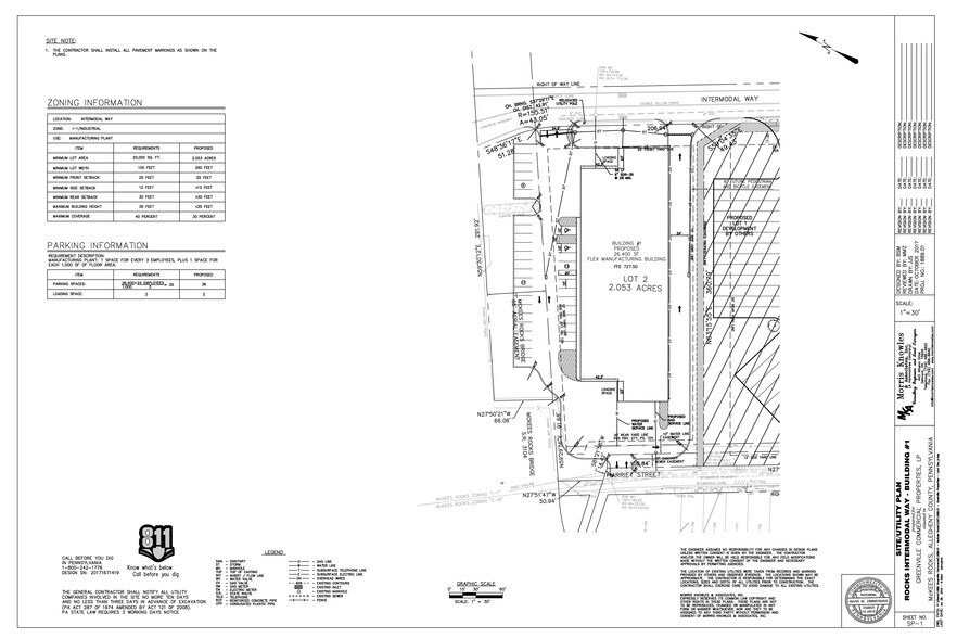
Proposed building is permitted and approved. However, final building footprint and lot can be altered (size & layout) to accommodate user. Proposed grading designed for 2 drive-in doors but can be converted to 2 loading docks. Open floor plans (clear-span with no interior columns) enables interior fit-out to meet tenant's requirements (see drawings for heights & dimensions).
- Le taux de location ne comprend pas les services publics, les services de bâtiment ou les dépenses immobilières.
- Espace en excellent état
- 2 accès plain-pied
| Espace | Taille | Terme | Taux de location | Utilisation de l’espace | Aménagement | Disponible |
| 1er étage | 13 000 à 26 400 pi² | 10 ans | 20,01 $ CAD/pi²/an 1,67 $ CAD/pi²/mois 528 226 $ CAD/an 44 019 $ CAD/mois | Industriel | selon spécifications | Maintenant |
1er étage
| Taille |
| 13 000 à 26 400 pi² |
| Terme |
| 10 ans |
| Taux de location |
| 20,01 $ CAD/pi²/an 1,67 $ CAD/pi²/mois 528 226 $ CAD/an 44 019 $ CAD/mois |
| Utilisation de l’espace |
| Industriel |
| Aménagement |
| selon spécifications |
| Disponible |
| Maintenant |
1er étage
| Taille | 13 000 à 26 400 pi² |
| Terme | 10 ans |
| Taux de location | 20,01 $ CAD/pi²/an |
| Utilisation de l’espace | Industriel |
| Aménagement | selon spécifications |
| Disponible | Maintenant |
Proposed building is permitted and approved. However, final building footprint and lot can be altered (size & layout) to accommodate user. Proposed grading designed for 2 drive-in doors but can be converted to 2 loading docks. Open floor plans (clear-span with no interior columns) enables interior fit-out to meet tenant's requirements (see drawings for heights & dimensions).
- Le taux de location ne comprend pas les services publics, les services de bâtiment ou les dépenses immobilières.
- 2 accès plain-pied
- Espace en excellent état
Aperçu de la propriété
Le développement est situé entre le pont McKees Rocks et la nouvelle station de ravitaillement commercial et dépanneur Speedway et fait partie d'un plus grand parc industriel de 40 acres (The Rocks Intermodal Park) actuellement en sous-développement. Accès à la route 51 (avenue Island) par une nouvelle intersection éclairée de l'avenue Angelina (chemin public) et un accès direct supplémentaire, qui sera bientôt construit, à la route State 51 (rue West Carson). Bonne visibilité à partir de la route 65 de State Truck (pont McKees Rocks), qui a été désignée corridor prioritaire #1 Urban Freight Priority Corridor dans l'ouest de la Pennsylvanie par PennDoT. Accès à plus de 100 000 résidents dans un rayon de 3 milles. Site plat et écologique situé à l'extérieur de la zone inondée de 100 ans avec de nouvelles conduites publiques d'eau et d'égout et des capacités d'électricité et de gaz pratiquement illimitées, y compris la haute pression. Le zonage flexible I-1 permet la plupart des utilisations « de plein droit », y compris la vente au détail, la vente en gros, le bureau et la fabrication. Multi-étages également permis. Le transport en commun est disponible à seulement un pâté de maisons ; l'arrêt d'autobus de l'avenue Island (SR 51) est desservi par plusieurs lignes d'autobus. Le plan du site et la gestion des eaux pluviales ont déjà été approuvés, mais la taille et la configuration de l'immeuble peuvent être modifiées pour répondre aux besoins des utilisateurs finaux. Il faudra environ 150 jours à partir de l'exécution du bail pour construire et être prêt pour l'occupation. Les modifications importantes apportées à la conception ajouteraient environ 60 jours au délai, car le conseil d'arrondissement devrait réapprouver le projet.
Faits sur l’installation entrepôt
Présenté par
Lot 2 - PERMITTED & APPROVED | 50 Angelina Ave
Hmm, il semble y avoir eu une erreur lors de l’envoi de votre message. Veuillez réessayer.
Merci! Votre message a été envoyé.



