Votre courriel a été envoyé.
Certaines informations ont été traduites automatiquement.
Caractéristiques
Tous les espaces disponibles(1)
Afficher les taux de location en
- Espace
- Taille
- Terme
- Taux de location
- Utilisation de l’espace
- État
- Disponible
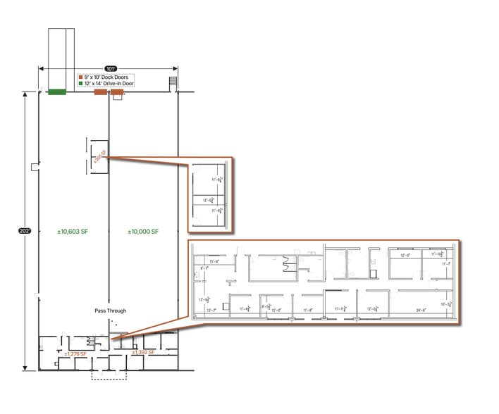
Discover a highly functional industrial/warehouse opportunity in one of Upstate South Carolina’s most active industrial corridors. This flexible space offers efficient layout options, modern infrastructure, and easy access to I-85 & I-385, providing seamless connectivity to Greenville, Spartanburg, Anderson, and the broader Southeast distribution network. Ideal space for manufacturing, distribution, or service-based operations, the property is surrounded by strong industrial neighbors (Augusta Grove Business Park, SCTAC, Michelin, etc.) and benefits from the region’s skilled workforce. Move-in-ready site in a strategic location makes this an exceptional choice for growing companies seeking a competitive edge in the Upstate. SUITE 514 DETAILS: ±20,603 SF Industrial Flex Space | ±2,973 SF Office Space | 2 Dock Doors (9’x10’) | 1 Drive-in Door (12’14’) | 19’2” Clear Ceiling Heights | LED Lighting | ESFR Sprinklers | Lighted Parking Lot | Dedicated Parking Spaces | Contact broker for lease rate
- Le taux de location ne comprend pas les services publics, les services de bâtiment ou les dépenses immobilières.
- 1 accès plain-pied
- Comprend 2 973 pi² d’espace de bureau dédié
- 2 quais de chargement
| Espace | Taille | Terme | Taux de location | Utilisation de l’espace | État | Disponible |
| RDC - 514 | 20 603 pi² | Négociable | Sur demande Sur demande Sur demande Sur demande | Industriel | - | Maintenant |
RDC - 514
| Taille |
| 20 603 pi² |
| Terme |
| Négociable |
| Taux de location |
| Sur demande Sur demande Sur demande Sur demande |
| Utilisation de l’espace |
| Industriel |
| État |
| - |
| Disponible |
| Maintenant |
RDC - 514
| Taille | 20 603 pi² |
| Terme | Négociable |
| Taux de location | Sur demande |
| Utilisation de l’espace | Industriel |
| État | - |
| Disponible | Maintenant |
Discover a highly functional industrial/warehouse opportunity in one of Upstate South Carolina’s most active industrial corridors. This flexible space offers efficient layout options, modern infrastructure, and easy access to I-85 & I-385, providing seamless connectivity to Greenville, Spartanburg, Anderson, and the broader Southeast distribution network. Ideal space for manufacturing, distribution, or service-based operations, the property is surrounded by strong industrial neighbors (Augusta Grove Business Park, SCTAC, Michelin, etc.) and benefits from the region’s skilled workforce. Move-in-ready site in a strategic location makes this an exceptional choice for growing companies seeking a competitive edge in the Upstate. SUITE 514 DETAILS: ±20,603 SF Industrial Flex Space | ±2,973 SF Office Space | 2 Dock Doors (9’x10’) | 1 Drive-in Door (12’14’) | 19’2” Clear Ceiling Heights | LED Lighting | ESFR Sprinklers | Lighted Parking Lot | Dedicated Parking Spaces | Contact broker for lease rate
- Le taux de location ne comprend pas les services publics, les services de bâtiment ou les dépenses immobilières.
- Comprend 2 973 pi² d’espace de bureau dédié
- 1 accès plain-pied
- 2 quais de chargement
Aperçu de la propriété
71 809 SF Industrial/Flex Building | Plafond clair de 20 pi | Espacement des colonnes de 50 pi x 50 pi | Gicleurs ESFR | Stationnement éclairé avec espaces de stationnement réservés | Situé dans le parc d'affaires Augusta Grove | Situé à 0,4 mille du chemin Augusta (US-25), ±1,5 milles de la I-185 (sortie 7), ±4 milles de l'I-85 et ±8 milles de l'I-385
Faits sur l’installation distribution
Présenté par
500-514 Matrix Pky
Hmm, il semble y avoir eu une erreur lors de l’envoi de votre message. Veuillez réessayer.
Merci! Votre message a été envoyé.






