Votre courriel a été envoyé.
500-530 S Hewitt St - Barker Block Unité de condo • Bureau • 1 720 pi² • À vendre 1 910 745 $ CAD • Los Angeles, CA 90013



Certaines informations ont été traduites automatiquement.
Résumé de l'annonce
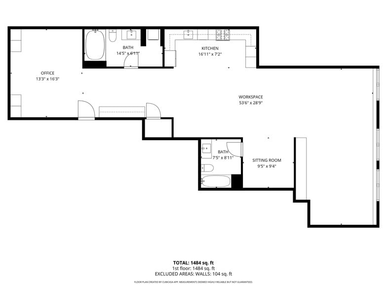
Rare Penthouse live/work loft at Barker Block in the Arts District with stunning DTLA views. With 16 ft high windows with unobstructed city views, this unit provides an unparalleled living experience and could also be utilized as a unique work space. Custom built-in cabinets & bookshelves, hardwood floors throughout, a unique mirrored wall, century-old wood posts & beams and heavy timber ceilings reaching approx 21 ft. The central piece of this space is the open gourmet kitchen w/ SS appliances & Caesarstone countertops, large pantry, and comes with plenty of storage. There are also 2 large bathrooms, one with a built-in washer/ dryer unit. Since this space is a L-shaped floor plan, many lay-outs are possible. Adding a mezzanine is one of those possibilities as well and could create additional live/work space. The building features 24/7 security and front desk, free common area wifi, outdoor lounge with firepit, a stunning resort-style rooftop heated pool with spa and BBQ areas. The fitness center can also be found on the rooftop and provides a working out experience with the best DTLA views! The unit comes with 2 coverage parking spaces as well as a storage unit. Lastly the location provides one of the (if not the) best experiences of living in the Arts District. Across from Urth Caffe, the Arts District Park & the LA Cleantech Incubator. It is a short distance to SCIArc, Little Tokyo, Goldline, DASH bus, Zinc Cafe, Urban Radish, Verve cafe, local dog park and more. Close to public transit and freeways. It's the best of two worlds colliding in a very stylish penthouse unit. Come see for yourself.
1 Unité disponible
Unité 533
| Taille de l’unité | 1 720 pi² | Type de vente | Propriétaire utilisateur |
| Prix | 1 910 745 $ CAD | Nbre d’espaces de stationnement | 2 |
| Prix par pi² | 1 110,90 $ CAD | ID/Numéro de lot | 5163-028-093 |
| Utilisation du condo | Bureau |
| Taille de l’unité | 1 720 pi² |
| Prix | 1 910 745 $ CAD |
| Prix par pi² | 1 110,90 $ CAD |
| Utilisation du condo | Bureau |
| Type de vente | Propriétaire utilisateur |
| Nbre d’espaces de stationnement | 2 |
| ID/Numéro de lot | 5163-028-093 |
Description
Rare Penthouse live/work loft at Barker Block in the Arts District with stunning DTLA views. With 16 ft high windows with unobstructed city views, this unit provides an unparalleled living experience and could also be utilized as a unique work space. Custom built-in cabinets & bookshelves, hardwood floors throughout, a unique mirrored wall, century-old wood posts & beams and heavy timber ceilings reaching approx 21 ft.
The central piece of this space is the open gourmet kitchen w/ SS appliances & Caesarstone countertops, large pantry, and comes with plenty of storage. There are also 2 large bathrooms, one with a built-in washer/ dryer unit. Since this space is a L-shaped floor plan, many lay-outs are possible. Adding a mezzanine is one of those possibilities as well and could create additional live/work space.
The building features 24/7 security and front desk, free common area wifi, outdoor lounge with firepit, a stunning resort-style rooftop heated pool with spa and BBQ areas. The fitness center can also be found on the rooftop and provides a working out experience with the best DTLA views! The unit comes with 2 coverage parking spaces as well as a storage unit.
Lastly the location provides one of the (if not the) best experiences of living in the Arts District. Across from Urth Caffe, the Arts District Park & the LA Cleantech Incubator. It is a short distance to SCIArc, Little Tokyo, Goldline, DASH bus, Zinc Cafe, Urban Radish, Verve cafe, local dog park and more. Close to public transit and freeways. It's the best of two worlds colliding in a very stylish penthouse unit. Come see for yourself.
Interior Photo
Interior Photo
Interior Photo
Interior Photo
Interior Photo
Interior Photo
Interior Photo
Interior Photo
Interior Photo
Interior Photo
Interior Photo
Interior Photo
Interior Photo
Interior Photo
Interior Photo
Interior Photo
Interior Photo
Interior Photo
Interior Photo
Interior Photo
Interior Photo
Interior Photo
Interior Photo
Interior Photo
Interior Photo
Interior Photo
Interior Photo
Interior Photo
Interior Photo
Interior Photo
Interior Photo
Interior Photo
Interior Photo
Interior Photo
Interior Photo
Interior Photo
Interior Photo
Interior Photo
Interior Photo
Interior Photo
Interior Photo
all_floors_530_south_hewitt_street_533_los_angeles_with_dim
Faits sur la propriété
| Taille totale du bâtiment | 320 834 pi² | Superficie de plancher typique | 92 842 pi² |
| Type de propriété | Immeuble residentiel (Condo) | Année de construction | 1966 |
| Sous-type de propriété | Appartement | Taille du lot | 2,26 AC |
| Classe d’immeuble | A | Ratio de stationnement | 0,18/1 000 pi² |
| Planchers | 5 | Zone de développement économique |
Oui
|
| Zonage | M3, Los Angeles - Industriel lourd | ||
| Taille totale du bâtiment | 320 834 pi² |
| Type de propriété | Immeuble residentiel (Condo) |
| Sous-type de propriété | Appartement |
| Classe d’immeuble | A |
| Planchers | 5 |
| Superficie de plancher typique | 92 842 pi² |
| Année de construction | 1966 |
| Taille du lot | 2,26 AC |
| Ratio de stationnement | 0,18/1 000 pi² |
| Zone de développement économique |
Oui |
| Zonage | M3, Los Angeles - Industriel lourd |
Commodités
Commodités du site
- Centre de conditionnement physique
- Piscine
- Gestionnaire d'immeuble sur place
- Spa
- Cabane
- Portier
- Grill
- Terrasse sur le toit
- Ascenseur
- Solarium
Unité renseignements sur le mélange
| Description | Nombre d’unités | Loyer moyen/mois | pi² |
|---|---|---|---|
| 1+1 | 297 | - | - |
Renseignements importants sur le locataire Cliquez ici pour accéder à
| LOCATAIRE | pi² Occupé | DATE DE FIN DE BAIL |
|---|---|---|
| LA Snow |
-
|
Jan 0000
|
Présenté par
500-530 S Hewitt St - Barker Block
Hmm, il semble y avoir eu une erreur lors de l’envoi de votre message. Veuillez réessayer.
Merci! Votre message a été envoyé.


