Votre courriel a été envoyé.
Madison Place 500 Montgomery St 1 138–45 430 pi² d'espace disponible • Bureau • 4 étoiles • Alexandria, VA 22314



Certaines informations ont été traduites automatiquement.
Faits saillants
- Bank, Sheraton All-Suites Hotel, navette vers le métro et l'aéroport
Tous les espaces disponibles(7)
Afficher les taux de location en
- Espace
- Taille
- Terme
- Taux de location
- Utilisation de l’espace
- État
- Disponible
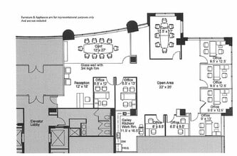
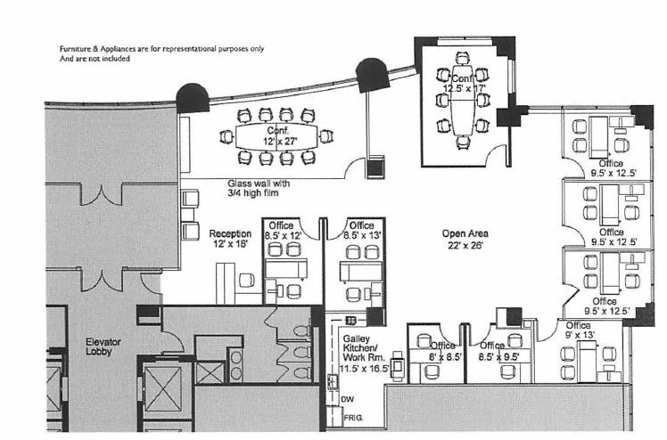
Suite 200 offers a combination of open area and private offices.
- Le taux comprend les services publics, les services de bâtiment et les dépenses immobilières.
- Clé en main
- Aire de réception
- Système de sécurité
- Lumière naturelle
- Plan ouvert
- 8 bureaux privés
- Climatisation centrale
- Accès aux ascenseurs
- Espace en coin
- Douches
- Le taux comprend les services publics, les services de bâtiment et les dépenses immobilières.
- Disposition intensive du bureau
- Entièrement construit comme Bureau standard
- Le taux comprend les services publics, les services de bâtiment et les dépenses immobilières.
- Le taux comprend les services publics, les services de bâtiment et les dépenses immobilières.
- Le taux comprend les services publics, les services de bâtiment et les dépenses immobilières.
- 8 bureaux privés
- Climatisation centrale
- Salle d’impression/Photocopie
- Entièrement construit comme Bureau juridique
- 2 salles de conférence
- Aire de réception
- Espace en coin
Shell Space, Elevator Lobby Exposure
- Le taux comprend les services publics, les services de bâtiment et les dépenses immobilières.
- Accès aux ascenseurs
- Disposition intensive du bureau
Full floor opportunity.
- Le taux comprend les services publics, les services de bâtiment et les dépenses immobilières.
- Disposition du plan d’étage ouverte en général
- Entièrement construit comme Bureau standard
| Espace | Taille | Terme | Taux de location | Utilisation de l’espace | État | Disponible |
| 2e étage, ste 200 | 6 879 pi² | Négociable | Sur demande Sur demande Sur demande Sur demande | Bureau | construction complète | 30 jours |
| 2e étage, ste 215 | 2 747 pi² | Négociable | 58,36 $ CAD/pi²/an 4,86 $ CAD/pi²/mois 160 305 $ CAD/an 13 359 $ CAD/mois | Bureau | construction complète | Maintenant |
| 3e étage, ste 300 | 7 219 pi² | Négociable | 58,36 $ CAD/pi²/an 4,86 $ CAD/pi²/mois 421 274 $ CAD/an 35 106 $ CAD/mois | Bureau | - | 2026-10-01 |
| 5e étage, ste 500 | 5 595 pi² | Négociable | 58,36 $ CAD/pi²/an 4,86 $ CAD/pi²/mois 326 504 $ CAD/an 27 209 $ CAD/mois | Bureau | - | 2026-10-01 |
| 5e étage, ste 575 | 3 326 pi² | Négociable | Sur demande Sur demande Sur demande Sur demande | Bureau | construction complète | Maintenant |
| 6e étage, ste 600 | 1 138 à 5 039 pi² | Négociable | 58,36 $ CAD/pi²/an 4,86 $ CAD/pi²/mois 294 058 $ CAD/an 24 505 $ CAD/mois | Bureau | espace cloisonné | Maintenant |
| 7e étage, ste 700 | 4 000 à 14 625 pi² | Négociable | 59,73 $ CAD/pi²/an 4,98 $ CAD/pi²/mois 873 543 $ CAD/an 72 795 $ CAD/mois | Bureau | construction complète | Maintenant |
2e étage, ste 200
| Taille |
| 6 879 pi² |
| Terme |
| Négociable |
| Taux de location |
| Sur demande Sur demande Sur demande Sur demande |
| Utilisation de l’espace |
| Bureau |
| État |
| construction complète |
| Disponible |
| 30 jours |
2e étage, ste 215
| Taille |
| 2 747 pi² |
| Terme |
| Négociable |
| Taux de location |
| 58,36 $ CAD/pi²/an 4,86 $ CAD/pi²/mois 160 305 $ CAD/an 13 359 $ CAD/mois |
| Utilisation de l’espace |
| Bureau |
| État |
| construction complète |
| Disponible |
| Maintenant |
3e étage, ste 300
| Taille |
| 7 219 pi² |
| Terme |
| Négociable |
| Taux de location |
| 58,36 $ CAD/pi²/an 4,86 $ CAD/pi²/mois 421 274 $ CAD/an 35 106 $ CAD/mois |
| Utilisation de l’espace |
| Bureau |
| État |
| - |
| Disponible |
| 2026-10-01 |
5e étage, ste 500
| Taille |
| 5 595 pi² |
| Terme |
| Négociable |
| Taux de location |
| 58,36 $ CAD/pi²/an 4,86 $ CAD/pi²/mois 326 504 $ CAD/an 27 209 $ CAD/mois |
| Utilisation de l’espace |
| Bureau |
| État |
| - |
| Disponible |
| 2026-10-01 |
5e étage, ste 575
| Taille |
| 3 326 pi² |
| Terme |
| Négociable |
| Taux de location |
| Sur demande Sur demande Sur demande Sur demande |
| Utilisation de l’espace |
| Bureau |
| État |
| construction complète |
| Disponible |
| Maintenant |
6e étage, ste 600
| Taille |
| 1 138 à 5 039 pi² |
| Terme |
| Négociable |
| Taux de location |
| 58,36 $ CAD/pi²/an 4,86 $ CAD/pi²/mois 294 058 $ CAD/an 24 505 $ CAD/mois |
| Utilisation de l’espace |
| Bureau |
| État |
| espace cloisonné |
| Disponible |
| Maintenant |
7e étage, ste 700
| Taille |
| 4 000 à 14 625 pi² |
| Terme |
| Négociable |
| Taux de location |
| 59,73 $ CAD/pi²/an 4,98 $ CAD/pi²/mois 873 543 $ CAD/an 72 795 $ CAD/mois |
| Utilisation de l’espace |
| Bureau |
| État |
| construction complète |
| Disponible |
| Maintenant |
2e étage, ste 200
| Taille | 6 879 pi² |
| Terme | Négociable |
| Taux de location | Sur demande |
| Utilisation de l’espace | Bureau |
| État | construction complète |
| Disponible | 30 jours |
Suite 200 offers a combination of open area and private offices.
- Le taux comprend les services publics, les services de bâtiment et les dépenses immobilières.
- 8 bureaux privés
- Clé en main
- Climatisation centrale
- Aire de réception
- Accès aux ascenseurs
- Système de sécurité
- Espace en coin
- Lumière naturelle
- Douches
- Plan ouvert
2e étage, ste 215
| Taille | 2 747 pi² |
| Terme | Négociable |
| Taux de location | 58,36 $ CAD/pi²/an |
| Utilisation de l’espace | Bureau |
| État | construction complète |
| Disponible | Maintenant |
- Le taux comprend les services publics, les services de bâtiment et les dépenses immobilières.
- Entièrement construit comme Bureau standard
- Disposition intensive du bureau
3e étage, ste 300
| Taille | 7 219 pi² |
| Terme | Négociable |
| Taux de location | 58,36 $ CAD/pi²/an |
| Utilisation de l’espace | Bureau |
| État | - |
| Disponible | 2026-10-01 |
- Le taux comprend les services publics, les services de bâtiment et les dépenses immobilières.
5e étage, ste 500
| Taille | 5 595 pi² |
| Terme | Négociable |
| Taux de location | 58,36 $ CAD/pi²/an |
| Utilisation de l’espace | Bureau |
| État | - |
| Disponible | 2026-10-01 |
- Le taux comprend les services publics, les services de bâtiment et les dépenses immobilières.
5e étage, ste 575
| Taille | 3 326 pi² |
| Terme | Négociable |
| Taux de location | Sur demande |
| Utilisation de l’espace | Bureau |
| État | construction complète |
| Disponible | Maintenant |
- Le taux comprend les services publics, les services de bâtiment et les dépenses immobilières.
- Entièrement construit comme Bureau juridique
- 8 bureaux privés
- 2 salles de conférence
- Climatisation centrale
- Aire de réception
- Salle d’impression/Photocopie
- Espace en coin
6e étage, ste 600
| Taille | 1 138 à 5 039 pi² |
| Terme | Négociable |
| Taux de location | 58,36 $ CAD/pi²/an |
| Utilisation de l’espace | Bureau |
| État | espace cloisonné |
| Disponible | Maintenant |
Shell Space, Elevator Lobby Exposure
- Le taux comprend les services publics, les services de bâtiment et les dépenses immobilières.
- Disposition intensive du bureau
- Accès aux ascenseurs
7e étage, ste 700
| Taille | 4 000 à 14 625 pi² |
| Terme | Négociable |
| Taux de location | 59,73 $ CAD/pi²/an |
| Utilisation de l’espace | Bureau |
| État | construction complète |
| Disponible | Maintenant |
Full floor opportunity.
- Le taux comprend les services publics, les services de bâtiment et les dépenses immobilières.
- Entièrement construit comme Bureau standard
- Disposition du plan d’étage ouverte en général
Aperçu de la propriété
Édifice de huit étages avec façade en brique, préfabriqué et vitré. Comprend une cour paysagée et deux étages en marbre et menuiserie sur mesure.
- Cour
- Centre de conditionnement physique
- Restaurant
Faits sur la propriété
Présenté par
Madison Place | 500 Montgomery St
Hmm, il semble y avoir eu une erreur lors de l’envoi de votre message. Veuillez réessayer.
Merci! Votre message a été envoyé.








