Votre courriel a été envoyé.
Certaines informations ont été traduites automatiquement.
Faits saillants du parc
- Gestion immobilière sur place
- Signalisation de la suite des locataires
- Excellente image et attrait en bordure
- Suites prêtes à emménager
- Propriété institutionnelle réactive et proactive
Faits sur le parc
| Superficie totale disponible | 26 006 pi² | Type de parc | Parc industriel |
| Superficie totale disponible | 26 006 pi² |
| Type de parc | Parc industriel |
Tous les espaces disponibles(8)
Afficher les taux de location en
- Espace
- Taille
- Terme
- Taux de location
- Utilisation de l’espace
- Aménagement
- Disponible
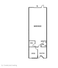
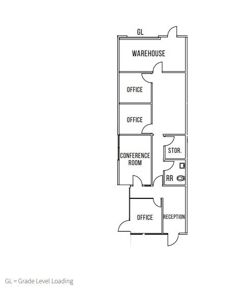
Reception area, 3 private offices, 2 restrooms, warehouse, 2 grade level loading
- Le taux de location ne comprend pas les services publics, les services de bâtiment ou les dépenses immobilières.
- Espace en excellent état
- 2 accès plain-pied
- Salle de bains privée
| Espace | Taille | Terme | Taux de location | Utilisation de l’espace | Aménagement | Disponible |
| 1er étage | 10 595 pi² | Négociable | 20,41 $ CAD/pi²/an 1,70 $ CAD/pi²/mois 216 219 $ CAD/an 18 018 $ CAD/mois | Industriel | construction partielle | Maintenant |
520 S Andreasen Dr - 1er étage
- Espace
- Taille
- Terme
- Taux de location
- Utilisation de l’espace
- Aménagement
- Disponible
- Le taux de location ne comprend pas les services publics, les services de bâtiment ou les dépenses immobilières.
- 1 accès plain-pied
| Espace | Taille | Terme | Taux de location | Utilisation de l’espace | Aménagement | Disponible |
| 1er étage - 109 | 1 689 pi² | Négociable | 21,71 $ CAD/pi²/an 1,81 $ CAD/pi²/mois 36 675 $ CAD/an 3 056 $ CAD/mois | Industriel | construction partielle | Maintenant |
926 S Andreasen Dr - 1er étage - 109
- Espace
- Taille
- Terme
- Taux de location
- Utilisation de l’espace
- Aménagement
- Disponible
End cap suite with 60% office, balance warehouse.
- Le taux de location ne comprend pas les services publics, les services de bâtiment ou les dépenses immobilières.
- Espace en excellent état
- 2 accès plain-pied
| Espace | Taille | Terme | Taux de location | Utilisation de l’espace | Aménagement | Disponible |
| 1er étage - 110-111 | 3 050 pi² | Négociable | 22,04 $ CAD/pi²/an 1,84 $ CAD/pi²/mois 67 223 $ CAD/an 5 602 $ CAD/mois | Industriel | construction partielle | 2026-06-01 |
912 S Andreasen Dr - 1er étage - 110-111
- Espace
- Taille
- Terme
- Taux de location
- Utilisation de l’espace
- Aménagement
- Disponible
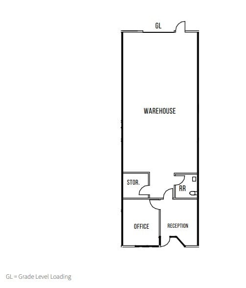
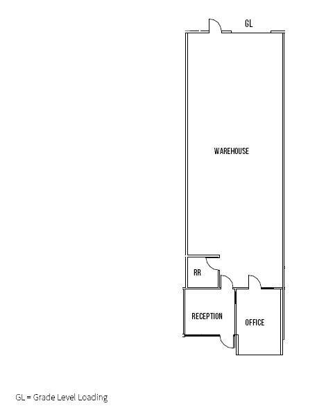
Reception, private office, restroom, warehouse
- Le taux de location ne comprend pas les services publics, les services de bâtiment ou les dépenses immobilières.
- Salle de bains privée
- 1 accès plain-pied
| Espace | Taille | Terme | Taux de location | Utilisation de l’espace | Aménagement | Disponible |
| 1er étage - B | 1 545 pi² | Négociable | 21,71 $ CAD/pi²/an 1,81 $ CAD/pi²/mois 33 548 $ CAD/an 2 796 $ CAD/mois | Industriel | construction complète | Maintenant |
938 S Andreasen Dr - 1er étage - B
- Espace
- Taille
- Terme
- Taux de location
- Utilisation de l’espace
- Aménagement
- Disponible
- Le taux de location ne comprend pas les services publics, les services de bâtiment ou les dépenses immobilières.
- 1 accès plain-pied
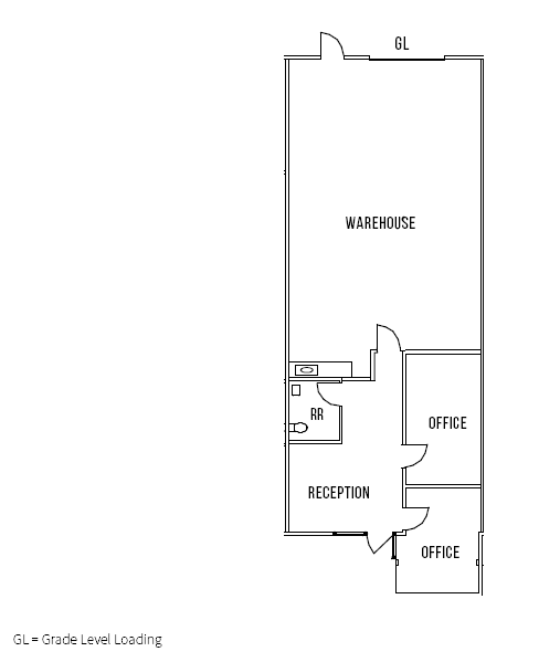
Reception, 2 private offices, restroom, warehouse
- Le taux de location ne comprend pas les services publics, les services de bâtiment ou les dépenses immobilières.
- Salle de bains privée
- 1 accès plain-pied
| Espace | Taille | Terme | Taux de location | Utilisation de l’espace | Aménagement | Disponible |
| 1er étage - F | 1 891 pi² | Négociable | 21,71 $ CAD/pi²/an 1,81 $ CAD/pi²/mois 41 061 $ CAD/an 3 422 $ CAD/mois | Industriel | construction partielle | Maintenant |
| 1er étage - KL | 3 879 pi² | Négociable | 20,90 $ CAD/pi²/an 1,74 $ CAD/pi²/mois 81 061 $ CAD/an 6 755 $ CAD/mois | Industriel | construction partielle | Maintenant |
600 S Andreasen Dr - 1er étage - F
600 S Andreasen Dr - 1er étage - KL
- Espace
- Taille
- Terme
- Taux de location
- Utilisation de l’espace
- Aménagement
- Disponible
- Le taux de location ne comprend pas les services publics, les services de bâtiment ou les dépenses immobilières.
- 1 accès plain-pied
| Espace | Taille | Terme | Taux de location | Utilisation de l’espace | Aménagement | Disponible |
| 1er étage - H | 1 392 pi² | Négociable | 21,71 $ CAD/pi²/an 1,81 $ CAD/pi²/mois 30 226 $ CAD/an 2 519 $ CAD/mois | Industriel | construction complète | Maintenant |
934 S Andreasen Dr - 1er étage - H
- Espace
- Taille
- Terme
- Taux de location
- Utilisation de l’espace
- Aménagement
- Disponible
Reception, private office, restroom, warehouse
- Le taux de location ne comprend pas les services publics, les services de bâtiment ou les dépenses immobilières.
- Salle de bains privée
| Espace | Taille | Terme | Taux de location | Utilisation de l’espace | Aménagement | Disponible |
| 1er étage - I | 1 965 pi² | Négociable | 21,71 $ CAD/pi²/an 1,81 $ CAD/pi²/mois 42 667 $ CAD/an 3 556 $ CAD/mois | Industriel | construction complète | Maintenant |
540 S Andreasen Dr - 1er étage - I
520 S Andreasen Dr - 1er étage
| Taille | 10 595 pi² |
| Terme | Négociable |
| Taux de location | 20,41 $ CAD/pi²/an |
| Utilisation de l’espace | Industriel |
| Aménagement | construction partielle |
| Disponible | Maintenant |
Reception area, 3 private offices, 2 restrooms, warehouse, 2 grade level loading
- Le taux de location ne comprend pas les services publics, les services de bâtiment ou les dépenses immobilières.
- 2 accès plain-pied
- Espace en excellent état
- Salle de bains privée
926 S Andreasen Dr - 1er étage - 109
| Taille | 1 689 pi² |
| Terme | Négociable |
| Taux de location | 21,71 $ CAD/pi²/an |
| Utilisation de l’espace | Industriel |
| Aménagement | construction partielle |
| Disponible | Maintenant |
- Le taux de location ne comprend pas les services publics, les services de bâtiment ou les dépenses immobilières.
- 1 accès plain-pied
912 S Andreasen Dr - 1er étage - 110-111
| Taille | 3 050 pi² |
| Terme | Négociable |
| Taux de location | 22,04 $ CAD/pi²/an |
| Utilisation de l’espace | Industriel |
| Aménagement | construction partielle |
| Disponible | 2026-06-01 |
End cap suite with 60% office, balance warehouse.
- Le taux de location ne comprend pas les services publics, les services de bâtiment ou les dépenses immobilières.
- 2 accès plain-pied
- Espace en excellent état
938 S Andreasen Dr - 1er étage - B
| Taille | 1 545 pi² |
| Terme | Négociable |
| Taux de location | 21,71 $ CAD/pi²/an |
| Utilisation de l’espace | Industriel |
| Aménagement | construction complète |
| Disponible | Maintenant |
Reception, private office, restroom, warehouse
- Le taux de location ne comprend pas les services publics, les services de bâtiment ou les dépenses immobilières.
- 1 accès plain-pied
- Salle de bains privée
600 S Andreasen Dr - 1er étage - F
| Taille | 1 891 pi² |
| Terme | Négociable |
| Taux de location | 21,71 $ CAD/pi²/an |
| Utilisation de l’espace | Industriel |
| Aménagement | construction partielle |
| Disponible | Maintenant |
- Le taux de location ne comprend pas les services publics, les services de bâtiment ou les dépenses immobilières.
- 1 accès plain-pied
600 S Andreasen Dr - 1er étage - KL
| Taille | 3 879 pi² |
| Terme | Négociable |
| Taux de location | 20,90 $ CAD/pi²/an |
| Utilisation de l’espace | Industriel |
| Aménagement | construction partielle |
| Disponible | Maintenant |
Reception, 2 private offices, restroom, warehouse
- Le taux de location ne comprend pas les services publics, les services de bâtiment ou les dépenses immobilières.
- 1 accès plain-pied
- Salle de bains privée
934 S Andreasen Dr - 1er étage - H
| Taille | 1 392 pi² |
| Terme | Négociable |
| Taux de location | 21,71 $ CAD/pi²/an |
| Utilisation de l’espace | Industriel |
| Aménagement | construction complète |
| Disponible | Maintenant |
- Le taux de location ne comprend pas les services publics, les services de bâtiment ou les dépenses immobilières.
- 1 accès plain-pied
540 S Andreasen Dr - 1er étage - I
| Taille | 1 965 pi² |
| Terme | Négociable |
| Taux de location | 21,71 $ CAD/pi²/an |
| Utilisation de l’espace | Industriel |
| Aménagement | construction complète |
| Disponible | Maintenant |
Reception, private office, restroom, warehouse
- Le taux de location ne comprend pas les services publics, les services de bâtiment ou les dépenses immobilières.
- Salle de bains privée
Aperçu du parc
Origin est idéalement situé le long de l'Interstate 15 et de l'autoroute 78. Le projet est composé de 13 bâtiments, soit 255 678 SF. Cet environnement semblable à celui d'un campus offre un environnement idéal pour un locataire qui cherche à être entouré d'entreprises innovatrices qui cherchent à cultiver des idées.
Présenté par
Origin | Escondido, CA 92029
Hmm, il semble y avoir eu une erreur lors de l’envoi de votre message. Veuillez réessayer.
Merci! Votre message a été envoyé.



















