Votre courriel a été envoyé.
Executive Office Space near Downtown 500 SE Osceola St 4 046 pi² d'espace disponible • Bureau • Stuart, FL 34994



Certaines informations ont été traduites automatiquement.
Faits saillants
- Fully renovated in 2025 with modern finishes and updated systems.
- Reception area and two restrooms included.
- Elevator and stair access with 100 feet of frontage on SE Osceola Street.
- 13 private offices plus workstations with natural light and flexible layouts.
- Located across from Cleveland Clinic Martin North Hospital and near Downtown Stuart.
- Zoned R-3, supporting office and medical-related uses.
Tous les espaces disponibles(1)
Afficher les taux de location en
- Espace
- Taille
- Terme
- Taux de location
- Utilisation de l’espace
- Aménagement
- Disponible
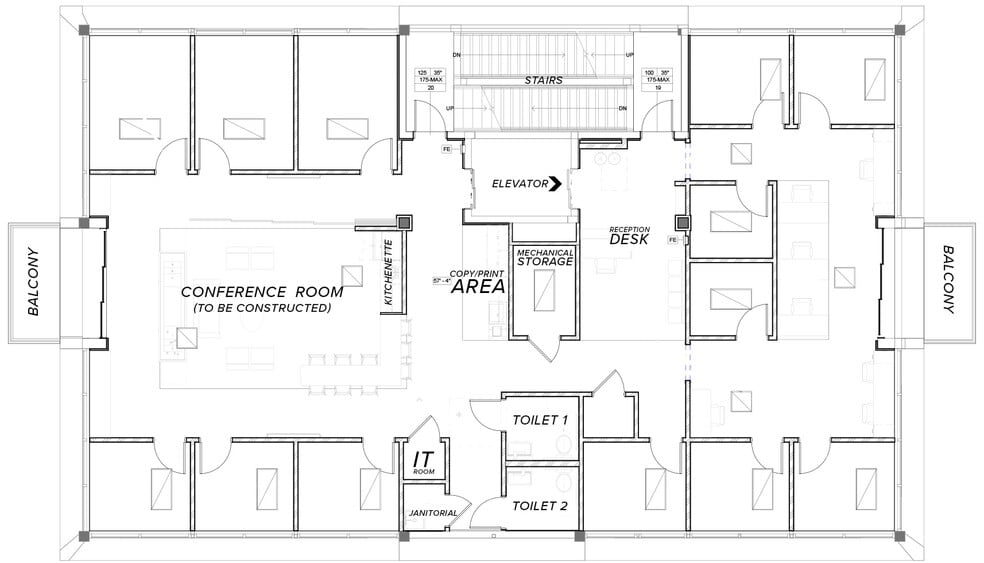
The 1st floor office suite features a layout that includes 13 private offices, with 11 offices ranging from approximately 56–84 SF and two larger offices measuring 124–126 SF. Most offices feature windows, providing natural light throughout the suite.
- Le taux de location ne comprend pas les services publics, les services de bâtiment ou les dépenses immobilières.
- Convient pour 11 à 33 personnes
- 4 postes de travail
- Salle d’impression/Photocopie
- Système de sécurité
- Entièrement construit comme Bureau standard
- 13 bureaux privés
- Climatisation centrale
- Balcon
- Lumière naturelle
| Espace | Taille | Terme | Taux de location | Utilisation de l’espace | Aménagement | Disponible |
| 1er étage, ste 100 | 4 046 pi² | 1-5 ans | 41,09 $ CAD/pi²/an 3,42 $ CAD/pi²/mois 166 255 $ CAD/an 13 855 $ CAD/mois | Bureau | construction complète | 30 jours |
1er étage, ste 100
| Taille |
| 4 046 pi² |
| Terme |
| 1-5 ans |
| Taux de location |
| 41,09 $ CAD/pi²/an 3,42 $ CAD/pi²/mois 166 255 $ CAD/an 13 855 $ CAD/mois |
| Utilisation de l’espace |
| Bureau |
| Aménagement |
| construction complète |
| Disponible |
| 30 jours |
1er étage, ste 100
| Taille | 4 046 pi² |
| Terme | 1-5 ans |
| Taux de location | 41,09 $ CAD/pi²/an |
| Utilisation de l’espace | Bureau |
| Aménagement | construction complète |
| Disponible | 30 jours |
The 1st floor office suite features a layout that includes 13 private offices, with 11 offices ranging from approximately 56–84 SF and two larger offices measuring 124–126 SF. Most offices feature windows, providing natural light throughout the suite.
- Le taux de location ne comprend pas les services publics, les services de bâtiment ou les dépenses immobilières.
- Entièrement construit comme Bureau standard
- Convient pour 11 à 33 personnes
- 13 bureaux privés
- 4 postes de travail
- Climatisation centrale
- Salle d’impression/Photocopie
- Balcon
- Système de sécurité
- Lumière naturelle
Aperçu de la propriété
The property at 500 SE Osceola Street in Stuart, Florida, is an office building originally constructed in 1984 and renovated in 2025. It offers 4,046 square feet on the first floor and includes 13 office suites. The site provides elevator and stair access, 100 feet of frontage, and is zoned R-3 for Residential-Multifamily/Office use. Traffic counts are 3,700 AADT on Osceola Street and 13,100 AADT on Ocean Boulevard. The property is located near Cleveland Clinic Martin North Hospital, the Martin County Courthouse, and Downtown Stuart.
- Plan ouvert
- Balcon
Faits sur la propriété
Sélectionner des locataires
- Nom du locataire
- Secteur
- Jeremiah Baron & Co Commercial Real Estate, LLC
- Immobilier
- Jeremiah Baron Companies
- Immobilier
Présenté par
Executive Office Space near Downtown | 500 SE Osceola St
Hmm, il semble y avoir eu une erreur lors de l’envoi de votre message. Veuillez réessayer.
Merci! Votre message a été envoyé.



