Se Connecter/S’inscrire
Votre courriel a été envoyé.
Certaines informations ont été traduites automatiquement.
Faits saillants de l'investissement
- Infill industrial or IOS development site surrounded by established Tampa distribution corridors.
- Immediate access to multiple ports and major highways for efficient regional logistics
- M zoning provides broad flexibility for industrial development concepts.
- Prominent U.S. Highway 41 frontage with strong daily traffic exposure at 33,500 AADT.
- Strong 10-mile labor and population base supporting industrial operations.
Résumé de l'annonce
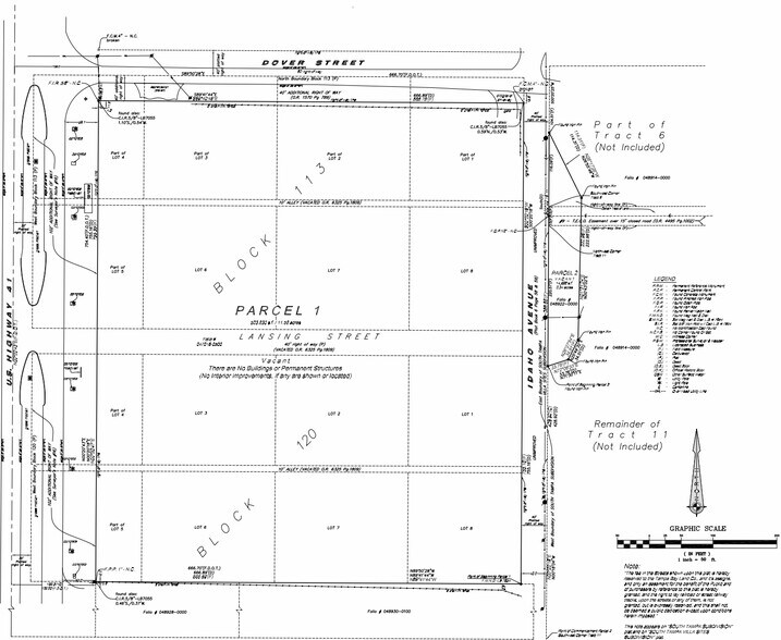
The 11.9-acre site at 5003 Dover St offers a compelling opportunity for buyers seeking a rare infill industrial or IOS development location within one of the most strategically connected corridors in the Tampa region. Positioned along U.S. Highway 41, the property benefits from prominent frontage exposed to more than 33,500 vehicles per day, providing exceptional visibility and access for logistics users, yard-intensive operations, or value-add redevelopment scenarios supported by strong market fundamentals.
Its proximity to major transportation infrastructure amplifies the site’s long-term appeal. Port Tampa Bay and Port Redwing are both within a 12-minute drive, offering streamlined access to maritime cargo and intermodal connectivity. The Selmon Expressway, I-4, I-75, and I-275 are all within minutes, enabling efficient movement throughout the Tampa metropolitan area and broader Central Florida distribution network. Tampa International Airport lies 16 minutes from the property, ensuring smooth integration of air freight operations.
Its proximity to major transportation infrastructure amplifies the site’s long-term appeal. Port Tampa Bay and Port Redwing are both within a 12-minute drive, offering streamlined access to maritime cargo and intermodal connectivity. The Selmon Expressway, I-4, I-75, and I-275 are all within minutes, enabling efficient movement throughout the Tampa metropolitan area and broader Central Florida distribution network. Tampa International Airport lies 16 minutes from the property, ensuring smooth integration of air freight operations.
With M zoning already in place and a conceptual site plan included for illustration, the property provides buyers flexibility to execute a wide range of industrial strategies while benefitting from its infill nature, established roadway network, and proximity to key commercial and residential nodes. This combination of frontage, accessibility, and regional integration positions 5003 Dover St as a standout Tampa opportunity for industrial investors seeking immediate utility and long-term growth potential.
Its proximity to major transportation infrastructure amplifies the site’s long-term appeal. Port Tampa Bay and Port Redwing are both within a 12-minute drive, offering streamlined access to maritime cargo and intermodal connectivity. The Selmon Expressway, I-4, I-75, and I-275 are all within minutes, enabling efficient movement throughout the Tampa metropolitan area and broader Central Florida distribution network. Tampa International Airport lies 16 minutes from the property, ensuring smooth integration of air freight operations.
Its proximity to major transportation infrastructure amplifies the site’s long-term appeal. Port Tampa Bay and Port Redwing are both within a 12-minute drive, offering streamlined access to maritime cargo and intermodal connectivity. The Selmon Expressway, I-4, I-75, and I-275 are all within minutes, enabling efficient movement throughout the Tampa metropolitan area and broader Central Florida distribution network. Tampa International Airport lies 16 minutes from the property, ensuring smooth integration of air freight operations.
With M zoning already in place and a conceptual site plan included for illustration, the property provides buyers flexibility to execute a wide range of industrial strategies while benefitting from its infill nature, established roadway network, and proximity to key commercial and residential nodes. This combination of frontage, accessibility, and regional integration positions 5003 Dover St as a standout Tampa opportunity for industrial investors seeking immediate utility and long-term growth potential.
Faits sur la propriété
| Type de vente | Investissement | Utilisation proposée | Industriel |
| Nombre de lots | 1 | Taille totale du lot | 11,90 AC |
| Type de propriété | Terrain | Nombre d’étages | 1 |
| Sous-type de propriété | Terrain commercial | Zone de développement économique |
Oui
|
| Zonage | M - Manufacturing | ||
| Type de vente | Investissement |
| Nombre de lots | 1 |
| Type de propriété | Terrain |
| Sous-type de propriété | Terrain commercial |
| Utilisation proposée | Industriel |
| Taille totale du lot | 11,90 AC |
| Nombre d’étages | 1 |
| Zone de développement économique |
Oui |
| Zonage | M - Manufacturing |
1 Lot disponible
Lot
| Taille du lot | 11,90 AC |
| Taille du lot | 11,90 AC |
11.9 acres of M zoned land.
1 1
Impraticable à pied
10/100
Exceptionnellement facile d'accès en voiture
90/100
Assez praticable en vélo
20/100
Impôts fonciers
| Numéro de lot | U-03-30-19-1Q3-000113-00006.0 | Évaluation des bâtiments | 1 633 $ CAD |
| Évaluation du terrain | 1 260 429 $ CAD | Évaluation totale | 1 262 062 $ CAD |
Impôts fonciers
Numéro de lot
U-03-30-19-1Q3-000113-00006.0
Évaluation du terrain
1 260 429 $ CAD
Évaluation des bâtiments
1 633 $ CAD
Évaluation totale
1 262 062 $ CAD
1 de 5
Vidéos
Visite extérieure 3D Matterport
Visite 3D Matterport
Photos
Vue depuis la rue
Rue
Carte
1 de 1
Présenté par
5003 Dover St
Vous êtes déjà membre? Connectez-vous
Hmm, il semble y avoir eu une erreur lors de l’envoi de votre message. Veuillez réessayer.
Merci! Votre message a été envoyé.



