Votre courriel a été envoyé.
Sawgrass Business Centre 501 - 599 Sawgrass Corporate Parkway 2 805–7 820 pi² d'espace disponible • Flex • Sunrise, FL 33325



Certaines informations ont été traduites automatiquement.
Faits saillants
- À quelques minutes de l'I-595, de l'I-75 et de l'autoroute Sawgrass
- Situé au centre de la région des trois comtés
- Beaucoup de places de stationnement
- À quelques minutes du centre commercial Sawgrass Mills, d'Ikea, du centre B&T et d'autres grands magasins et restaurants
- Situé dans le magnifique parc international d'entreprises Sawgrass
- Zones de chargement au niveau du niveau
Caractéristiques
Tous les espaces disponibles(2)
Afficher les taux de location en
- Espace
- Taille
- Terme
- Taux de location
- Utilisation de l’espace
- Aménagement
- Disponible
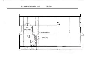
2,805 SF Flex Space in Prime Tri-County Location Well-appointed 2,805 SF unit featuring 3 private offices, a large conference room, a spacious assembly/general-use area, and a private bathroom, all fully air-conditioned. The warehouse offers a clean, highly functional rectangular layout with a 12’ x 12’ overhead door opening to a private grade-level loading area, allowing for efficient operations and easy access. Strategically located in the center of the tri-county region (Miami-Dade, Broward, and Palm Beach), with immediate proximity to I-595 and I-75. The property is minutes from Sawgrass Mills Mall, IKEA, and a wide range of dining, retail, and residential areas. Note: The $16.50 base rent is for a 5-year term. The landlord will consider a 3-year term, but at a higher base rent. The floor plan is not to scale. The listed 1,700 sq ft office area is estimated.
- Le taux de location ne comprend pas les services publics, les services de bâtiment ou les dépenses immobilières.
- 1 accès plain-pied
- Aire de réception
- Plafond suspendu
- CVCA disponible après les heures de travail
- Plafond exposé
- Comprend 1 700 pi² d’espace de bureau dédié
- Climatisation centrale
- Salle de bains privée
- Éclairage encastré
- Salles de conférence
• Corner Unit with lots of natural light. • 100 % A/C, including warehouse. • 4 private offices. Some glass partitioned. 1 with windows. • 1 warehouse bathroom and 1 office bathroom with shower. • Kitchen. • Conference room with storefront windows. • Large open general office / bullpen area. • 2, 12’x12’ overhead bay doors with street level loading zones. • Minutes away from I 595, I 75 & Sawgrass Expressway • Minutes away from Sawgrass Mills Mall, Ikea, and surrounding amenities • Water included in CAM (Standard use). The listed base rent is depends on a 5-year term. Shorter terms may be subject to a higher base rent. The listed size of the office area is estimated.
- Le taux de location ne comprend pas les services publics, les services de bâtiment ou les dépenses immobilières.
- Espace en excellent état
- Climatisation centrale
- Salle de bains privée
- Éclairage d’urgence
- Hauts plafonds
- Plafond exposé
- Comprend 1 500 pi² d’espace de bureau dédié
- 1 accès plain-pied
- Bureaux partitionnés
- Plafond suspendu
- Douches
- Salles de conférence
- Espace en coin
| Espace | Taille | Terme | Taux de location | Utilisation de l’espace | Aménagement | Disponible |
| 1er étage - 543 | 2 805 pi² | 3-5 ans | 23,01 $ CAD/pi²/an 1,92 $ CAD/pi²/mois 64 541 $ CAD/an 5 378 $ CAD/mois | Flex | construction complète | 2026-07-01 |
| 1er étage - 599 | 5 015 pi² | Négociable | 23,01 $ CAD/pi²/an 1,92 $ CAD/pi²/mois 115 391 $ CAD/an 9 616 $ CAD/mois | Flex | construction complète | Maintenant |
1er étage - 543
| Taille |
| 2 805 pi² |
| Terme |
| 3-5 ans |
| Taux de location |
| 23,01 $ CAD/pi²/an 1,92 $ CAD/pi²/mois 64 541 $ CAD/an 5 378 $ CAD/mois |
| Utilisation de l’espace |
| Flex |
| Aménagement |
| construction complète |
| Disponible |
| 2026-07-01 |
1er étage - 599
| Taille |
| 5 015 pi² |
| Terme |
| Négociable |
| Taux de location |
| 23,01 $ CAD/pi²/an 1,92 $ CAD/pi²/mois 115 391 $ CAD/an 9 616 $ CAD/mois |
| Utilisation de l’espace |
| Flex |
| Aménagement |
| construction complète |
| Disponible |
| Maintenant |
1er étage - 543
| Taille | 2 805 pi² |
| Terme | 3-5 ans |
| Taux de location | 23,01 $ CAD/pi²/an |
| Utilisation de l’espace | Flex |
| Aménagement | construction complète |
| Disponible | 2026-07-01 |
2,805 SF Flex Space in Prime Tri-County Location Well-appointed 2,805 SF unit featuring 3 private offices, a large conference room, a spacious assembly/general-use area, and a private bathroom, all fully air-conditioned. The warehouse offers a clean, highly functional rectangular layout with a 12’ x 12’ overhead door opening to a private grade-level loading area, allowing for efficient operations and easy access. Strategically located in the center of the tri-county region (Miami-Dade, Broward, and Palm Beach), with immediate proximity to I-595 and I-75. The property is minutes from Sawgrass Mills Mall, IKEA, and a wide range of dining, retail, and residential areas. Note: The $16.50 base rent is for a 5-year term. The landlord will consider a 3-year term, but at a higher base rent. The floor plan is not to scale. The listed 1,700 sq ft office area is estimated.
- Le taux de location ne comprend pas les services publics, les services de bâtiment ou les dépenses immobilières.
- Comprend 1 700 pi² d’espace de bureau dédié
- 1 accès plain-pied
- Climatisation centrale
- Aire de réception
- Salle de bains privée
- Plafond suspendu
- Éclairage encastré
- CVCA disponible après les heures de travail
- Salles de conférence
- Plafond exposé
1er étage - 599
| Taille | 5 015 pi² |
| Terme | Négociable |
| Taux de location | 23,01 $ CAD/pi²/an |
| Utilisation de l’espace | Flex |
| Aménagement | construction complète |
| Disponible | Maintenant |
• Corner Unit with lots of natural light. • 100 % A/C, including warehouse. • 4 private offices. Some glass partitioned. 1 with windows. • 1 warehouse bathroom and 1 office bathroom with shower. • Kitchen. • Conference room with storefront windows. • Large open general office / bullpen area. • 2, 12’x12’ overhead bay doors with street level loading zones. • Minutes away from I 595, I 75 & Sawgrass Expressway • Minutes away from Sawgrass Mills Mall, Ikea, and surrounding amenities • Water included in CAM (Standard use). The listed base rent is depends on a 5-year term. Shorter terms may be subject to a higher base rent. The listed size of the office area is estimated.
- Le taux de location ne comprend pas les services publics, les services de bâtiment ou les dépenses immobilières.
- Comprend 1 500 pi² d’espace de bureau dédié
- Espace en excellent état
- 1 accès plain-pied
- Climatisation centrale
- Bureaux partitionnés
- Salle de bains privée
- Plafond suspendu
- Éclairage d’urgence
- Douches
- Hauts plafonds
- Salles de conférence
- Plafond exposé
- Espace en coin
Aperçu de la propriété
Espace flexible de classe B très bien entretenu (combo bureau et entrepôt). Situé dans le parc corporatif international Sawgrass, 501-549, 555-599 Sawgrass Corporate Parkway, Sunrise FL 33325, au sud-ouest de la 136th Avenue NW et du boulevard Sunrise. À quelques minutes des principaux commerces et divertissements : IKEA, Sawgrass Mills Mall et The BB&B Center. À quelques minutes des principales autoroutes : I-595, Sawgrass Expressway et I-75. Centré dans la région des trois comtés. Zones de chargement au niveau des niveaux. Portes battantes de 12 pi. Plafonds de 18 pieds dans les entrepôts. Climatisé central dans tous les bureaux et dans certains entrepôts. Panneaux sur les ouragans fournis par le propriétaire. Gestion locale et pratique de l'immeuble.
Faits sur la propriété
Présenté par
E.T. Realty, Inc.
Sawgrass Business Centre | 501 - 599 Sawgrass Corporate Parkway
Hmm, il semble y avoir eu une erreur lors de l’envoi de votre message. Veuillez réessayer.
Merci! Votre message a été envoyé.







