Votre courriel a été envoyé.
501 North Frederick 501 N Frederick Ave 1 371–6 402 pi² d'espace disponible • Gaithersburg, MD 20877



Certaines informations ont été traduites automatiquement.
Faits saillants
- À distance de marche de nombreuses commodités, y compris CVS, Chipotle, Panera, Tropical Smoothie Café et plus
- Energy Star Certified building.
- Ride On bus stop in front of building. 3.5 Miles to Shady Grove METRO
- Located Right off I-270 & Montgomery Village Ave
- Ample free parking
- Local ownership and management
Tous les espaces disponibles(4)
Afficher les taux de location en
- Espace
- Taille
- Terme
- Taux de location
- Utilisation de l’espace
- Aménagement
- Disponible
Shell condition, ready for build-out. Suitable for medical, retail, or office uses. Located in Designated HUB Zone. Ample free parking.
- Taux de location inscrit plus part proportionnelle des coûts de la consommation électrique et du nettoyage
- Disposition du plan d’étage ouverte en général
Fully built-out ground floor medical office suite with direct entrance from on-site parking.
- Taux de location inscrit plus part proportionnelle des coûts de la consommation électrique et du nettoyage
Fully built-out medical office suite. On-site doctor's lounge. Located in Designated HUB Zone. Ample free parking.
- Taux de location inscrit plus part proportionnelle des coûts de nettoyage
- Disposition intensive du bureau
- Entièrement construit comme Espace médical standard
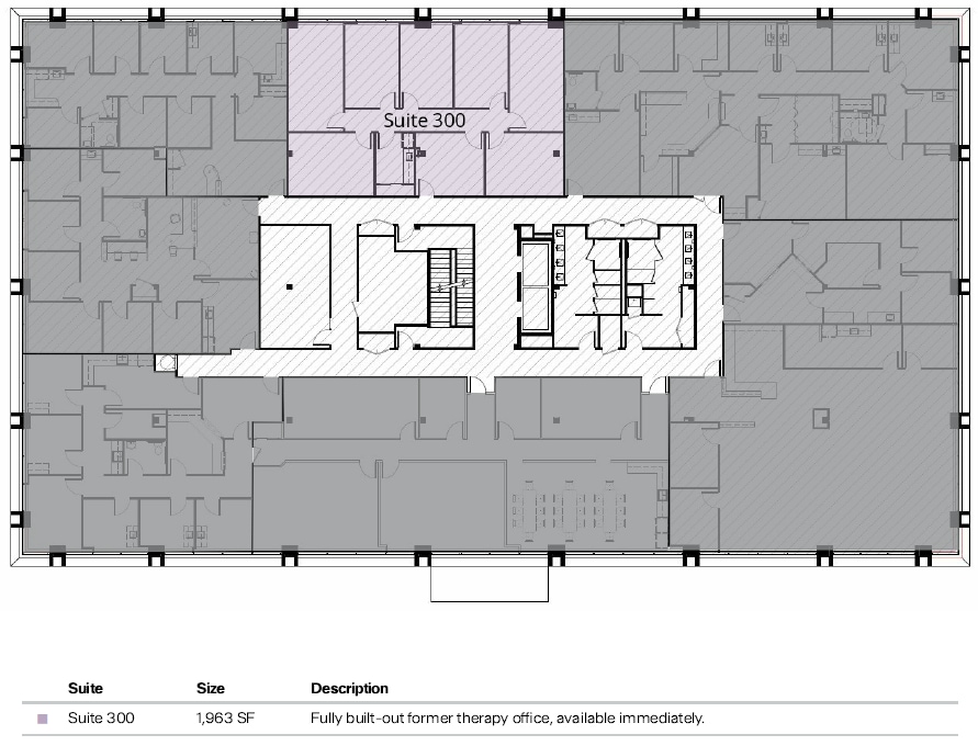
Fully built-out former therapy office. On-site doctor's lounge. Located in Designated HUB Zone. Ample free parking.
- Taux de location inscrit plus part proportionnelle des coûts de nettoyage
- Disposition intensive du bureau
- Entièrement construit comme Espace médical standard
| Espace | Taille | Terme | Taux de location | Utilisation de l’espace | Aménagement | Disponible |
| 1er étage, ste 103 | 1 389 pi² | Négociable | 48,23 $ CAD/pi²/an 4,02 $ CAD/pi²/mois 66 998 $ CAD/an 5 583 $ CAD/mois | Bureau/Commerce de détail | espace cloisonné | Maintenant |
| 1er étage, ste 106 | 1 679 pi² | Négociable | 48,23 $ CAD/pi²/an 4,02 $ CAD/pi²/mois 80 986 $ CAD/an 6 749 $ CAD/mois | Médical | - | 2027-03-01 |
| 2e étage, ste 216 | 1 371 pi² | Négociable | 40,66 $ CAD/pi²/an 3,39 $ CAD/pi²/mois 55 738 $ CAD/an 4 645 $ CAD/mois | Bureau/Médical | construction complète | Maintenant |
| 3e étage, ste 300 | 1 963 pi² | Négociable | 40,66 $ CAD/pi²/an 3,39 $ CAD/pi²/mois 79 806 $ CAD/an 6 651 $ CAD/mois | Bureau/Médical | construction complète | Maintenant |
1er étage, ste 103
| Taille |
| 1 389 pi² |
| Terme |
| Négociable |
| Taux de location |
| 48,23 $ CAD/pi²/an 4,02 $ CAD/pi²/mois 66 998 $ CAD/an 5 583 $ CAD/mois |
| Utilisation de l’espace |
| Bureau/Commerce de détail |
| Aménagement |
| espace cloisonné |
| Disponible |
| Maintenant |
1er étage, ste 106
| Taille |
| 1 679 pi² |
| Terme |
| Négociable |
| Taux de location |
| 48,23 $ CAD/pi²/an 4,02 $ CAD/pi²/mois 80 986 $ CAD/an 6 749 $ CAD/mois |
| Utilisation de l’espace |
| Médical |
| Aménagement |
| - |
| Disponible |
| 2027-03-01 |
2e étage, ste 216
| Taille |
| 1 371 pi² |
| Terme |
| Négociable |
| Taux de location |
| 40,66 $ CAD/pi²/an 3,39 $ CAD/pi²/mois 55 738 $ CAD/an 4 645 $ CAD/mois |
| Utilisation de l’espace |
| Bureau/Médical |
| Aménagement |
| construction complète |
| Disponible |
| Maintenant |
3e étage, ste 300
| Taille |
| 1 963 pi² |
| Terme |
| Négociable |
| Taux de location |
| 40,66 $ CAD/pi²/an 3,39 $ CAD/pi²/mois 79 806 $ CAD/an 6 651 $ CAD/mois |
| Utilisation de l’espace |
| Bureau/Médical |
| Aménagement |
| construction complète |
| Disponible |
| Maintenant |
1er étage, ste 103
| Taille | 1 389 pi² |
| Terme | Négociable |
| Taux de location | 48,23 $ CAD/pi²/an |
| Utilisation de l’espace | Bureau/Commerce de détail |
| Aménagement | espace cloisonné |
| Disponible | Maintenant |
Shell condition, ready for build-out. Suitable for medical, retail, or office uses. Located in Designated HUB Zone. Ample free parking.
- Taux de location inscrit plus part proportionnelle des coûts de la consommation électrique et du nettoyage
- Disposition du plan d’étage ouverte en général
1er étage, ste 106
| Taille | 1 679 pi² |
| Terme | Négociable |
| Taux de location | 48,23 $ CAD/pi²/an |
| Utilisation de l’espace | Médical |
| Aménagement | - |
| Disponible | 2027-03-01 |
Fully built-out ground floor medical office suite with direct entrance from on-site parking.
- Taux de location inscrit plus part proportionnelle des coûts de la consommation électrique et du nettoyage
2e étage, ste 216
| Taille | 1 371 pi² |
| Terme | Négociable |
| Taux de location | 40,66 $ CAD/pi²/an |
| Utilisation de l’espace | Bureau/Médical |
| Aménagement | construction complète |
| Disponible | Maintenant |
Fully built-out medical office suite. On-site doctor's lounge. Located in Designated HUB Zone. Ample free parking.
- Taux de location inscrit plus part proportionnelle des coûts de nettoyage
- Entièrement construit comme Espace médical standard
- Disposition intensive du bureau
3e étage, ste 300
| Taille | 1 963 pi² |
| Terme | Négociable |
| Taux de location | 40,66 $ CAD/pi²/an |
| Utilisation de l’espace | Bureau/Médical |
| Aménagement | construction complète |
| Disponible | Maintenant |
Fully built-out former therapy office. On-site doctor's lounge. Located in Designated HUB Zone. Ample free parking.
- Taux de location inscrit plus part proportionnelle des coûts de nettoyage
- Entièrement construit comme Espace médical standard
- Disposition intensive du bureau
Aperçu de la propriété
L'établissement dispose de suites médicales prêtes à l'emménagement. Situé dans une zone HUB désignée. Il s'agit d'un bâtiment certifié Energy Star.
- Certifié Energy Star
- Wi-Fi
- Climatisation
Faits sur la propriété
Sélectionner des locataires
- Étage
- Nom du locataire
- Secteur
- 1ᵉʳ
- Embrace Orthodontics LLC
- Soins de santé et assistance sociale
- 1ᵉʳ
- First National Bank
- Finance et assurances
- 3ᵉ
- Foster Medical Care, Kamala A. Foster, M.D.
- Soins de santé et assistance sociale
- 1ᵉʳ
- Green Pharmacy
- Détaillant
- 1ᵉʳ
- Huntington Learning Center
- Services éducatifs
- 2ᵉ
- International Pediatrics
- Soins de santé et assistance sociale
- 2ᵉ
- Medstar
- Soins de santé et assistance sociale
- 1ᵉʳ
- OneMain Financial
- Finance et assurances
- 3ᵉ
- Pain Spine & Rehab Associates LLC
- Soins de santé et assistance sociale
- 3ᵉ
- Park Pediatrics & Travel Clnc
- Soins de santé et assistance sociale
Présenté par
Entreprise non fournie
501 North Frederick | 501 N Frederick Ave
Hmm, il semble y avoir eu une erreur lors de l’envoi de votre message. Veuillez réessayer.
Merci! Votre message a été envoyé.









