Votre courriel a été envoyé.
Certaines informations ont été traduites automatiquement.
Faits saillants
- ÉCLAIRAGE À DEL
- Plan ouvert avec murs de briques apparentes.
- Situé à distance de marche du centre-ville de Springfield.
- Beaucoup de places de stationnement pour tous les bâtiments sur les propriétés
Caractéristiques
Tous les espaces disponibles(3)
Afficher les taux de location en
- Espace
- Taille
- Terme
- Taux de location
- Utilisation de l’espace
- Aménagement
- Disponible
- Le taux inscrit peut ne pas comprendre certains services publics, les services de bâtiment et les dépenses immobilières.
- 2 quais de chargement
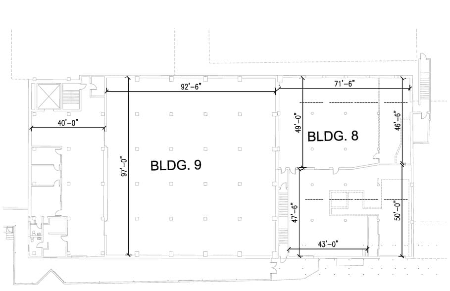
On the west end of the property, building 10 is 2 stories with a total of 8,672 SF. This building also comes with a 689 SF loading dock with CMU Exterior Walls. Other features include: -CIP Structure -CIP Exterior Walls -No Windows See diagram attached for additional details.
- Le taux inscrit peut ne pas comprendre certains services publics, les services de bâtiment et les dépenses immobilières.
- Air central et chauffage
- 1 quai de chargement
On the west end of the property, building 11 is 2 stories with a total of 21,874 SF. This building also comes with a 883 SF loading dock with CMU Exterior Walls. Other features include: -CIP Structure -CIP Exterior Walls -No Windows See diagram attached for additional details.
- Le taux inscrit peut ne pas comprendre certains services publics, les services de bâtiment et les dépenses immobilières.
- Air central et chauffage
- 4 quais de chargement
| Espace | Taille | Terme | Taux de location | Utilisation de l’espace | Aménagement | Disponible |
| 1er étage - 9 | 16 108 pi² | Négociable | 10,94 $ CAD/pi²/an 0,91 $ CAD/pi²/mois 176 286 $ CAD/an 14 690 $ CAD/mois | Industriel | construction partielle | Maintenant |
| 1er étage - Building 10 | 29 492 pi² | Négociable | 9,58 $ CAD/pi²/an 0,80 $ CAD/pi²/mois 282 415 $ CAD/an 23 535 $ CAD/mois | Industriel | - | 30 jours |
| 1er étage - Building 11 | 29 686 pi² | Négociable | 9,58 $ CAD/pi²/an 0,80 $ CAD/pi²/mois 284 273 $ CAD/an 23 689 $ CAD/mois | Industriel | - | Maintenant |
1er étage - 9
| Taille |
| 16 108 pi² |
| Terme |
| Négociable |
| Taux de location |
| 10,94 $ CAD/pi²/an 0,91 $ CAD/pi²/mois 176 286 $ CAD/an 14 690 $ CAD/mois |
| Utilisation de l’espace |
| Industriel |
| Aménagement |
| construction partielle |
| Disponible |
| Maintenant |
1er étage - Building 10
| Taille |
| 29 492 pi² |
| Terme |
| Négociable |
| Taux de location |
| 9,58 $ CAD/pi²/an 0,80 $ CAD/pi²/mois 282 415 $ CAD/an 23 535 $ CAD/mois |
| Utilisation de l’espace |
| Industriel |
| Aménagement |
| - |
| Disponible |
| 30 jours |
1er étage - Building 11
| Taille |
| 29 686 pi² |
| Terme |
| Négociable |
| Taux de location |
| 9,58 $ CAD/pi²/an 0,80 $ CAD/pi²/mois 284 273 $ CAD/an 23 689 $ CAD/mois |
| Utilisation de l’espace |
| Industriel |
| Aménagement |
| - |
| Disponible |
| Maintenant |
1er étage - 9
| Taille | 16 108 pi² |
| Terme | Négociable |
| Taux de location | 10,94 $ CAD/pi²/an |
| Utilisation de l’espace | Industriel |
| Aménagement | construction partielle |
| Disponible | Maintenant |
- Le taux inscrit peut ne pas comprendre certains services publics, les services de bâtiment et les dépenses immobilières.
- 2 quais de chargement
1er étage - Building 10
| Taille | 29 492 pi² |
| Terme | Négociable |
| Taux de location | 9,58 $ CAD/pi²/an |
| Utilisation de l’espace | Industriel |
| Aménagement | - |
| Disponible | 30 jours |
On the west end of the property, building 10 is 2 stories with a total of 8,672 SF. This building also comes with a 689 SF loading dock with CMU Exterior Walls. Other features include: -CIP Structure -CIP Exterior Walls -No Windows See diagram attached for additional details.
- Le taux inscrit peut ne pas comprendre certains services publics, les services de bâtiment et les dépenses immobilières.
- 1 quai de chargement
- Air central et chauffage
1er étage - Building 11
| Taille | 29 686 pi² |
| Terme | Négociable |
| Taux de location | 9,58 $ CAD/pi²/an |
| Utilisation de l’espace | Industriel |
| Aménagement | - |
| Disponible | Maintenant |
On the west end of the property, building 11 is 2 stories with a total of 21,874 SF. This building also comes with a 883 SF loading dock with CMU Exterior Walls. Other features include: -CIP Structure -CIP Exterior Walls -No Windows See diagram attached for additional details.
- Le taux inscrit peut ne pas comprendre certains services publics, les services de bâtiment et les dépenses immobilières.
- 4 quais de chargement
- Air central et chauffage
Aperçu de la propriété
Les bâtiments sont situés à hauteur du quai et sont munis de portes battantes. La température de plusieurs de ces espaces est contrôlée. Certains des bâtiments avoisinants servent à la distribution et à l'entreposage. L'espacement des colonnes varie, mais plusieurs d'entre elles sont de 19 pieds de centre à centre. La puissance triphasée lourde est sur la propriété. Ancien centre de données sur la propriété. Construite en 1939 et 1959, cette ancienne usine de fabrication couvre plus de 200 000 pieds carrés de propriété industrielle qui s'étend sur 7 acres à Springfield, au Missouri. La propriété dispose de plusieurs parkings avec 376 places de stationnement. Les bâtiments font partie du quartier central des affaires et se trouvent en face du bureau de poste des États-Unis et près de l'hôtel de ville, du palais de justice et de nombreux autres lieux de destination. Idéalement situé près du service d'autobus de City Utilities, Transit Hub, qui offre un trajet facile vers et depuis les bâtiments.
Faits sur l’installation entrepôt
Présenté par
501 N Main Ave
Hmm, il semble y avoir eu une erreur lors de l’envoi de votre message. Veuillez réessayer.
Merci! Votre message a été envoyé.








