Se Connecter/S’inscrire
Votre courriel a été envoyé.
501 N Main St Immeuble de 23 500 pi² • Soins de santé • À vendre • Gordonsville, VA 22942



Certaines informations ont été traduites automatiquement.
Faits saillants de l'investissement
- Surrounding region is rich with tourist attractions and cultural landmarks, including the Civil War Museum, Shenandoah National Park, and Lake Orange
- Redevelopment Opportunity
- Zoned B-2, the site offers exceptional flexibility, making it well-suited for adaptive reuse
Résumé de l'annonce
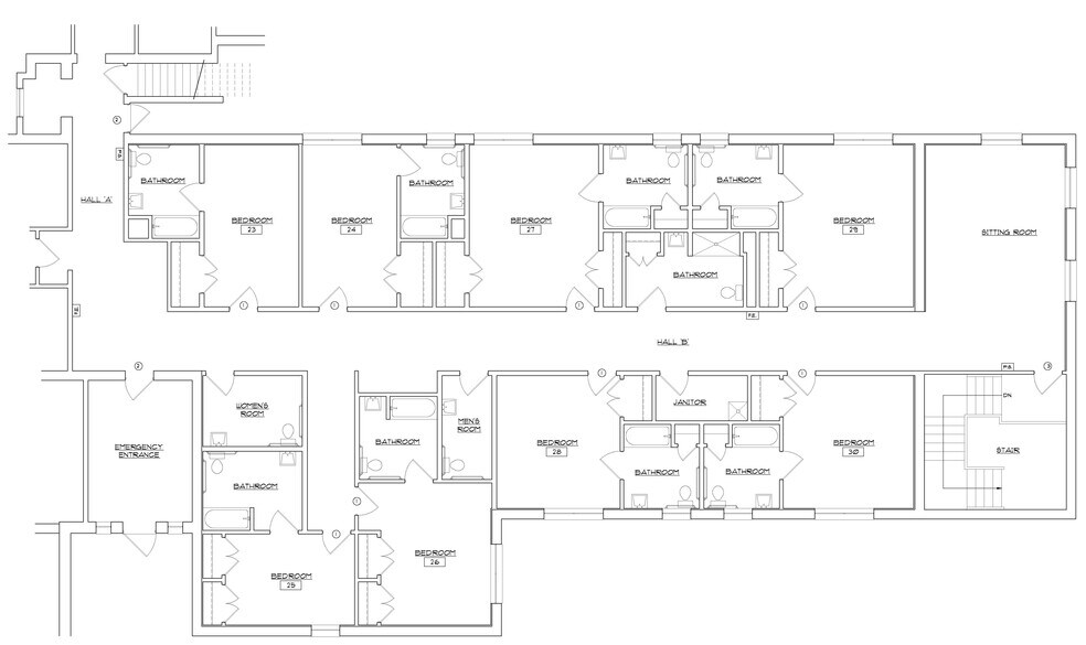
This former assisted living and memory care facility offers approximately 23,500 square feet of interior space on a generous +5-acre lot, providing the perfect canvas for a variety of potential uses.
Zoned B-2, the site offers exceptional flexibility, making it well-suited for adaptive reuse as a small medical office building, multi-family apartments, or a boutique hospitality venture. With ample parking, strong street visibility, and a welcoming layout, the property is ready for transformation.
Situated in a charming Southern town, Gordonsville is widely recognized for its quaint shops, vibrant arts scene, and acclaimed culinary destinations, including the renowned Barbeque Exchange and Gordonsville Ice House. Just 19 miles northeast of Charlottesville and 65 miles northwest of Richmond, the location provides convenient access to major metro areas while retaining its small-town charm.
The surrounding region is rich with tourist attractions and cultural landmarks, including the Civil War Museum, Shenandoah National Park, and Lake Orange, making it an ideal spot for attracting visitors and residents alike. The area is also home to major employers such as Klockner Pentaplast, American Woodmark, Dominion Energy, and Walmart, contributing to a stable local economy and demand for housing and services.
Zoned B-2, the site offers exceptional flexibility, making it well-suited for adaptive reuse as a small medical office building, multi-family apartments, or a boutique hospitality venture. With ample parking, strong street visibility, and a welcoming layout, the property is ready for transformation.
Situated in a charming Southern town, Gordonsville is widely recognized for its quaint shops, vibrant arts scene, and acclaimed culinary destinations, including the renowned Barbeque Exchange and Gordonsville Ice House. Just 19 miles northeast of Charlottesville and 65 miles northwest of Richmond, the location provides convenient access to major metro areas while retaining its small-town charm.
The surrounding region is rich with tourist attractions and cultural landmarks, including the Civil War Museum, Shenandoah National Park, and Lake Orange, making it an ideal spot for attracting visitors and residents alike. The area is also home to major employers such as Klockner Pentaplast, American Woodmark, Dominion Energy, and Walmart, contributing to a stable local economy and demand for housing and services.
Faits sur la propriété
| Type de vente | Investissement ou propriétaire utilisateur | Taille du lot | 5,00 AC |
| Condition de vente | Projet de redéveloppement | Taille du bâtiment | 23 500 pi² |
| Type de propriété | Soins de santé | Nbre de lits | 32 |
| Sous-type de propriété | Logement avec assistance | Nombre d’étages | 2 |
| Classe d’immeuble | B | Année de construction | 2004 |
| Zonage | B-2 | ||
| Type de vente | Investissement ou propriétaire utilisateur |
| Condition de vente | Projet de redéveloppement |
| Type de propriété | Soins de santé |
| Sous-type de propriété | Logement avec assistance |
| Classe d’immeuble | B |
| Taille du lot | 5,00 AC |
| Taille du bâtiment | 23 500 pi² |
| Nbre de lits | 32 |
| Nombre d’étages | 2 |
| Année de construction | 2004 |
| Zonage | B-2 |
1 1
Plutôt praticable à pied
30/100
Exceptionnellement facile d’accès en voiture
100/100
Transports en commun limités
30/100
Assez praticable en vélo
20/100
Impôts fonciers
| Numéro de lot | 068-A2-01-29-0003-0 | Évaluation des bâtiments | 2 288 983 $ CAD |
| Évaluation du terrain | 102 577 $ CAD | Évaluation totale | 2 391 560 $ CAD |
Impôts fonciers
Numéro de lot
068-A2-01-29-0003-0
Évaluation du terrain
102 577 $ CAD
Évaluation des bâtiments
2 288 983 $ CAD
Évaluation totale
2 391 560 $ CAD
1 de 8
Vidéos
Visite extérieure 3D Matterport
Visite 3D Matterport
Photos
Vue depuis la rue
Rue
Carte
1 de 1
Présenté par
501 N Main St
Vous êtes déjà membre? Connectez-vous
Hmm, il semble y avoir eu une erreur lors de l’envoi de votre message. Veuillez réessayer.
Merci! Votre message a été envoyé.
