Votre courriel a été envoyé.
Block 27 501 S Austin Ave 2 372 pi² d'espace disponible • Bureau/Commerce de détail • Georgetown, TX 78626



Certaines informations ont été traduites automatiquement.
Faits saillants
- Récemment rénové.
- Zone piétonnière avec une grande circulation pour les commerces de détail.
- Un pâté de maisons du centre-ville historique de Georgetown Square.
- Accès facile à l'autoroute I-35 par l'intermédiaire de l'avenue S Austin
- Quelques pâtés de maisons jusqu'au front de la rivière San Gabriel.
Tous les espaces disponibles(1)
Afficher les taux de location en
- Espace
- Taille
- Terme
- Taux de location
- Utilisation de l’espace
- Aménagement
- Disponible
This space will be made available early 2026 for a retail tenant. The space is immediately adjacent to the recently opened Public Parking garage and in a prime location facing Austin Avenue. Common area restrooms are available in the building.
- Le taux de location ne comprend pas les services publics, les services de bâtiment ou les dépenses immobilières.
- Espace partiellement démoli
- Espace en coin
- Emplacement de choix au détail au centre-ville de Georgetown
- Espace d'angle
- Disposition du plan d’étage ouverte
- Espace pour locataire majeur
- Baie vitrée
- Immédiatement adjacent au nouveau parking
| Espace | Taille | Terme | Taux de location | Utilisation de l’espace | Aménagement | Disponible |
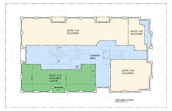
| 1er étage, ste 1115 | 2 372 pi² | Négociable | 54,63 $ CAD/pi²/an 4,55 $ CAD/pi²/mois 129 574 $ CAD/an 10 798 $ CAD/mois | Bureau/Commerce de détail | espace cloisonné | Maintenant |
1er étage, ste 1115
| Taille |
| 2 372 pi² |
| Terme |
| Négociable |
| Taux de location |
| 54,63 $ CAD/pi²/an 4,55 $ CAD/pi²/mois 129 574 $ CAD/an 10 798 $ CAD/mois |
| Utilisation de l’espace |
| Bureau/Commerce de détail |
| Aménagement |
| espace cloisonné |
| Disponible |
| Maintenant |
1er étage, ste 1115
| Taille | 2 372 pi² |
| Terme | Négociable |
| Taux de location | 54,63 $ CAD/pi²/an |
| Utilisation de l’espace | Bureau/Commerce de détail |
| Aménagement | espace cloisonné |
| Disponible | Maintenant |
This space will be made available early 2026 for a retail tenant. The space is immediately adjacent to the recently opened Public Parking garage and in a prime location facing Austin Avenue. Common area restrooms are available in the building.
- Le taux de location ne comprend pas les services publics, les services de bâtiment ou les dépenses immobilières.
- Disposition du plan d’étage ouverte
- Espace partiellement démoli
- Espace pour locataire majeur
- Espace en coin
- Baie vitrée
- Emplacement de choix au détail au centre-ville de Georgetown
- Immédiatement adjacent au nouveau parking
- Espace d'angle
Aperçu de la propriété
Magnifique bureau récemment rénové et espace de vente au détail dans l'un des meilleurs quartiers et zones de Georgetown. Accès rapide à l'autoroute I-35 et à la rivière San Gabriel. Situé sur l'avenue S Austin, ce magnifique bâtiment bénéficie d'une excellente exposition pour les commerces de détail au centre-ville de Georgetown.
- Affichage
- Terrasse sur le toit
- Lumière naturelle
- Affichage sur monument
- Balcon
Faits sur la propriété
Présenté par
Block 27 | 501 S Austin Ave
Hmm, il semble y avoir eu une erreur lors de l’envoi de votre message. Veuillez réessayer.
Merci! Votre message a été envoyé.



