Votre courriel a été envoyé.
New Price! 11000+Sqft Commercial Building,I65 5060 Jack Springs Rd 11 103 pi² 100% Loué Local d'activités Immeuble Atmore, AL 36502 1 097 298 $ CAD (98,83 $ CAD/pi²)



Certaines informations ont été traduites automatiquement.
Faits saillants de l'investissement
- Emplacement stratégique avec haute visibilité : 0,6 milles de l'I-65, entouré de grandes entreprises, nombre de trafic élevé (plus de 25 000 AADT)
- Espace de bureau et d'entreposage polyvalent : 11 103 pieds carrés, 10 bureaux, grand entrepôt avec rangement en loft, cuisine entièrement équipée, salle de conférence meublée
- Croissance économique florissante à Atmore : développements de plusieurs millions de dollars, y compris la nouvelle installation de traitement de la viande de PRF de 29 millions de dollars et une subvention de 703 000$ pour indust
- Avantages de la zone d'opportunité et de la zone hubzone
- Infrastructure et sécurité robustes : parking pavé de 25 places, drainage des bordures et des gouttières, cour d'arrêt, système de sécurité surveillé avec accès mobile
- Investissement clé en main avec ameublement inclus
Résumé de l'annonce
Stratégiquement situé à seulement 0,6 milles de la I-65, à 1,6 mile de la réserve indienne de Poarch Creek et à 0,5 milles de la nouvelle installation de traitement de la viande de PCI de 29 millions de dollars PRF, cet impressionnant bâtiment métallique de 11 103 pieds carrés offre le mélange parfait d'espaces de bureaux et d'entrepôts sur 1 acre.
FAITS SAILLANTS DU BÂTIMENT :
- Extérieur et construction : L'entrée avant comporte un revêtement en cèdre avec de lourds poteaux en bois et un auvent. Bâtiment préfabriqué en métal avec charpente en bois.
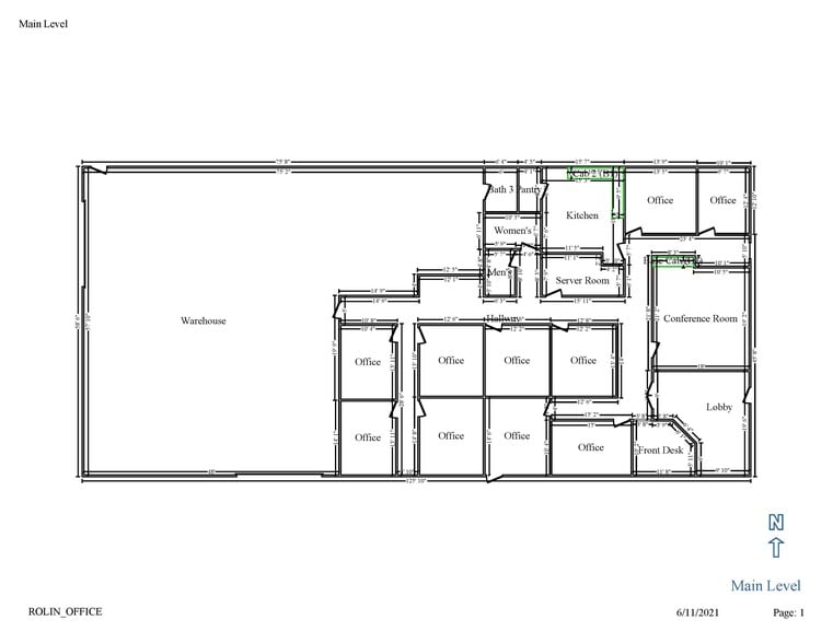
- Bureau et hall d'entrée : Intérieur chauffé et refroidi et fraîchement peint, comprenant 10 bureaux avec portes en bois massif, Internet haute vitesse par fibre optique avec fibre Uniti, téléphones VOIP, une salle de serveurs dédiée et 2 salles de bains. Comprend des finitions haut de gamme, y compris des revêtements de sol en moquette, en liège et en carrelage, ainsi que des menuiseries haut de gamme dans les espaces communs. Le hall d'entrée présente un mur d'appoint en pierre et un bureau de réception intégré. La plupart des meubles, des téléviseurs, des classeurs et des caméras de sécurité transmettent. Il y a aussi 3 unités AC qui sont entretenues régulièrement.
- Entrepôt : 3 435 pieds carrés avec deux portes coulissantes — à l'est et une seule porte coulissante au nord. La plupart des supports, le poste de travail, un réfrigérateur et une machine à glaçons sont inclus.
- Loft d'entrepôt : Entreposage supplémentaire avec un loft de 3 834 pieds carrés construit avec un revêtement de sol en double contreplaqué pour le son et la résistance.
- Salle de conférence : Élégante entrée vitrée, meublée d'une grande table de conférence, de 6 chaises et d'une télévision murale.
- Cuisine complète : équipée de tous les appareils électroménagers (sauf la machine à pop-corn) et d'un garde-manger.
CARACTÉRISTIQUES DE L'INFRASTRUCTURE ET DU SITE :
- Transport et accessibilité : Façades routières pavées sur les chemins Jack Springs et Atmosphere Le système de bordure et de gouttière assure un drainage adéquat.
- Éclairage et signalisation : Nouvel éclairage de sécurité et de stationnement, électricité pour la signalisation éclairée montée sur le bâtiment, et panneau autoportant en pierre et en bois brut près de la route pour une meilleure visibilité.
- Sécurité et sûreté : Système de sécurité surveillé (25 $/mois avec Hunter), accès mobile, alarme silencieuse et intégration des forces de l'ordre.
- Stationnement et entreposage extérieur : Stationnement pavé de 25 places, patio couvert à l'extérieur de l'entrepôt et cour de dépôt avec fraiseuses d'asphalte pour l'équipement et le stockage des matériaux.
- Services publics : L'électricité, l'eau de la ville et une fosse septique fournissent des services essentiels pour soutenir le fonctionnement quotidien de la propriété. Ces désignations peuvent aider les entreprises à réduire leurs coûts opérationnels et à augmenter le rendement des investissements à long terme.
- 4/10 milles de l'Interstate 65
- 1 mile de la réserve indienne de Poarch Creek
- à 3 km de Wind Creek Casino
- à 0,5 km de la nouvelle installation de transformation de la viande PRF à la fine pointe de la technologie (ouverte en février 2025)
- Entouré de Creek Travel Plaza & Diner, Warehouse Market & Bakery et Dollar General
- Avec plus de 25 000 AADT sur la I-65 et 4 500 sur le chemin Jack Springs, cette propriété jouit d'une excellente visibilité et d'une accessibilité excellentes.
DÉVELOPPEMENT ÉCONOMIQUE À ATMORE, AL :
Au cours des cinq dernières années, Atmore a connu une croissance économique importante. Le 6 février 2025, PRF a inauguré son usine de transformation du bœuf, une installation de 23 000 pieds carrés qui représente un investissement de 29 millions de dollars. Cette usine à la fine pointe de la technologie traite environ 50 têtes de bétail par jour et comprend un magasin de détail, offrant aux éleveurs locaux une option de transformation à proximité et contribuant à l'économie locale.
De plus, en décembre 2024, Atmore a reçu une subvention de 703 000$ du programme SEEDS (Site Evaluation and Economic Development Strategy) de l'Alabama. La ville a utilisé ces fonds pour acquérir des terres, agrandissant ainsi le parc industriel Atmore à un total de 120 acres. Cette expansion accroît la capacité de la ville d'attirer des industries, en particulier celles qui cherchent des sites desservis par chemin de fer, renforçant ainsi les perspectives de développement industriel d'Atmore.
Ces développements soulignent l'engagement continu d'Atmore à l'égard de la croissance économique et de la diversification.
Cette installation commerciale haut de gamme au charme moderne et rustique offre une solution clé en main pour les entreprises à la recherche de fonctionnalité, de style et de positionnement stratégique à Atmore, en Alabama.
ID LoopNet : 34864450.
Faits sur la propriété
Services publics
- Éclairage
- Gaz
- Eau - Ville
- Égout - Champ septique
- Chauffage - Électricité
Disponibilité des espaces
- Espace
- Taille
- Utilisation de l’espace
- Aménagement
- Disponible
**Atmore, AL – Maintenant disponible à la location : 4 264± pi² d’espace de bureau dans cette propriété commerciale exceptionnelle.** Situé à seulement 0,4 mile de l’I-65 et dans une *Opportunity Zone*, ce bureau au rez-de-chaussée offre un espace de travail professionnel clé en main avec des finitions haut de gamme et un emplacement stratégique à proximité de la réserve indienne Poarch Creek et de l’installation de transformation de viande PRF de 29 millions $ de PCI. **CARACTÉRISTIQUES DU BUREAU :** - 10 bureaux privés avec portes en bois massif - Salle de conférence meublée avec grande table, 6 chaises et téléviseur mural - Cuisine complète avec tous les appareils (sauf machine à popcorn) et garde-manger - 2 salles de bain carrelées, salle serveur dédiée et espaces de rangement intégrés - Menuiserie haut de gamme, revêtements en liège/carrelage/moquette, et mur d’accueil en pierre empilée avec bureau de réception intégré - La plupart des meubles, classeurs, caméras de sécurité et téléviseurs sont inclus - Internet fibre avec VOIP via Uniti disponible **Informations sur les frais communs (CAM) et les services publics :** *Le propriétaire conserve l’accès à l’entrepôt/espace de stockage et couvrira 15 % des frais d’électricité et d’eau mensuels.* Le propriétaire installera une barre anti-panique sur la porte de l’entrepôt pour une sortie d’urgence. - **CAM :** Arrangement partagé pour les services publics (le locataire paie 85 % de l’électricité et de l’eau) * Électricité : historiquement entre 350 $ et 550 $/mois * Eau : environ 35 $/mois **Autres frais à la charge du locataire :** - Internet (Uniti Fiber) : 275 $/mois (sans VOIP, 578 $ avec VOIP) - Système/services de sécurité Hunt’s : 25 $/mois (si vous souhaitez le conserver) - Assurance : environ 2 900 $/an - Taxes foncières au prorata : environ 2 810 $/an Cet espace est idéal pour un utilisateur professionnel recherchant un bureau de haute qualité, entièrement aménagé, avec une excellente accessibilité et des coûts de démarrage réduits. **VISITE SUR RENDEZ-VOUS UNIQUEMENT.** Contactez-nous dès aujourd’hui pour plus de détails ou pour planifier une visite.
| Espace | Taille | Utilisation de l’espace | Aménagement | Disponible |
| 1er étage | 4 264 pi² | Bureau | construction complète | 30 jours |
1er étage
| Taille |
| 4 264 pi² |
| Utilisation de l’espace |
| Bureau |
| Aménagement |
| construction complète |
| Disponible |
| 30 jours |
1er étage
| Taille | 4 264 pi² |
| Utilisation de l’espace | Bureau |
| Aménagement | construction complète |
| Disponible | 30 jours |
**Atmore, AL – Maintenant disponible à la location : 4 264± pi² d’espace de bureau dans cette propriété commerciale exceptionnelle.** Situé à seulement 0,4 mile de l’I-65 et dans une *Opportunity Zone*, ce bureau au rez-de-chaussée offre un espace de travail professionnel clé en main avec des finitions haut de gamme et un emplacement stratégique à proximité de la réserve indienne Poarch Creek et de l’installation de transformation de viande PRF de 29 millions $ de PCI. **CARACTÉRISTIQUES DU BUREAU :** - 10 bureaux privés avec portes en bois massif - Salle de conférence meublée avec grande table, 6 chaises et téléviseur mural - Cuisine complète avec tous les appareils (sauf machine à popcorn) et garde-manger - 2 salles de bain carrelées, salle serveur dédiée et espaces de rangement intégrés - Menuiserie haut de gamme, revêtements en liège/carrelage/moquette, et mur d’accueil en pierre empilée avec bureau de réception intégré - La plupart des meubles, classeurs, caméras de sécurité et téléviseurs sont inclus - Internet fibre avec VOIP via Uniti disponible **Informations sur les frais communs (CAM) et les services publics :** *Le propriétaire conserve l’accès à l’entrepôt/espace de stockage et couvrira 15 % des frais d’électricité et d’eau mensuels.* Le propriétaire installera une barre anti-panique sur la porte de l’entrepôt pour une sortie d’urgence. - **CAM :** Arrangement partagé pour les services publics (le locataire paie 85 % de l’électricité et de l’eau) * Électricité : historiquement entre 350 $ et 550 $/mois * Eau : environ 35 $/mois **Autres frais à la charge du locataire :** - Internet (Uniti Fiber) : 275 $/mois (sans VOIP, 578 $ avec VOIP) - Système/services de sécurité Hunt’s : 25 $/mois (si vous souhaitez le conserver) - Assurance : environ 2 900 $/an - Taxes foncières au prorata : environ 2 810 $/an Cet espace est idéal pour un utilisateur professionnel recherchant un bureau de haute qualité, entièrement aménagé, avec une excellente accessibilité et des coûts de démarrage réduits. **VISITE SUR RENDEZ-VOUS UNIQUEMENT.** Contactez-nous dès aujourd’hui pour plus de détails ou pour planifier une visite.
Impôts fonciers
| Numéro de lot | 10-07-35-0-200-018.007 | Évaluation des bâtiments | 0 $ CAD |
| Évaluation du terrain | 0 $ CAD | Évaluation totale | 67 855 $ CAD |
Impôts fonciers
Présenté par
New Price! 11000+Sqft Commercial Building,I65 | 5060 Jack Springs Rd
Hmm, il semble y avoir eu une erreur lors de l’envoi de votre message. Veuillez réessayer.
Merci! Votre message a été envoyé.


