Votre courriel a été envoyé.
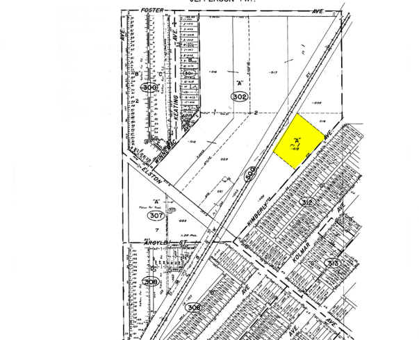
5070 N Kimberly Ave 5066-5070 N Kimberly Ave 3 000–13 000 pi² d'espace disponible • Industriel • Chicago, IL 60630



Certaines informations ont été traduites automatiquement.
Caractéristiques
Tous les espaces disponibles(3)
Afficher les taux de location en
- Espace
- Taille
- Terme
- Taux de location
- Utilisation de l’espace
- Aménagement
- Disponible
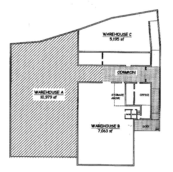
?? Spacious 4000 sq ft Warehouse – Jefferson Park, Chicago Available February 1st – Unit #2 at 5068 N Kimberly Ave Looking for the perfect warehouse space in Jefferson Park? This 4000 sq ft unit features: Rent: $3200/month Ceiling Height: 30’ – plenty of vertical space 24/7 Building Access – work on your schedule Parking Available for an additional fee Three-Phase Power (800–1600 amps) Drive-In Access on-site Security & Surveillance System included Ideal For: Storage, wholesale, light manufacturing, metal/woodshop, distribution, and similar businesses. ?? No automotive tenants Additional Charges May Apply: Utilities (heat, internet, etc.), parking, CAMs ?? Contact us Today!!
- Le taux de location ne comprend pas les services publics, les services de bâtiment ou les dépenses immobilières.
- 1 accès plain-pied
?? Spacious 6000 sq ft Warehouse – Jefferson Park, Chicago Available February 1st – at 5066 N Kimberly Ave Looking for the perfect warehouse space in Jefferson Park? This 6000 sq ft unit features: Rent: $4,500/month Ceiling Height: 30’ – plenty of vertical space 24/7 Building Access – work on your schedule Parking Available for an additional fee Three-Phase Power (800–1600 amps) Drive-In Access on-site Security & Surveillance System included Private Office Ideal For: Storage, wholesale, light manufacturing, metal/woodshop, distribution, and similar businesses. ?? No automotive tenants Additional Charges May Apply: Utilities (heat, internet, etc.), parking, CAMs ?? Contact us Today!!
- Le taux de location ne comprend pas les services publics, les services de bâtiment ou les dépenses immobilières.
- Air central et chauffage
- 1 accès plain-pied
?? Spacious 3000 sq ft Warehouse – Jefferson Park, Chicago Available February 1st – Unit #B at 5066 N Kimberly Ave Looking for the perfect warehouse space in Jefferson Park? This 3000 sq ft unit features: Rent: $2,500/month Ceiling Height: 30’ – plenty of vertical space 24/7 Building Access – work on your schedule Parking Available for an additional fee Three-Phase Power (800–1600 amps) Drive-In Access on-site Security & Surveillance System included Private Office Ideal For: Storage, wholesale, light manufacturing, metal/woodshop, distribution, and similar businesses. ?? No automotive tenants Additional Charges May Apply: Utilities (heat, internet, etc.), parking, CAMs ?? Contact us Today!!
- Le taux de location ne comprend pas les services publics, les services de bâtiment ou les dépenses immobilières.
- Disposition du plan d’étage ouverte en général
- Espace en excellent état
- Plafonds finis: 20’ - 30’
| Espace | Taille | Terme | Taux de location | Utilisation de l’espace | Aménagement | Disponible |
| 1er étage - 2 | 4 000 pi² | Négociable | 13,84 $ CAD/pi²/an 1,15 $ CAD/pi²/mois 55 364 $ CAD/an 4 614 $ CAD/mois | Industriel | - | Maintenant |
| 1er étage - 5066 | 6 000 pi² | Négociable | 12,46 $ CAD/pi²/an 1,04 $ CAD/pi²/mois 74 741 $ CAD/an 6 228 $ CAD/mois | Industriel | - | Maintenant |
| 1er étage - B | 3 000 pi² | Négociable | 13,84 $ CAD/pi²/an 1,15 $ CAD/pi²/mois 41 523 $ CAD/an 3 460 $ CAD/mois | Industriel | - | Maintenant |
1er étage - 2
| Taille |
| 4 000 pi² |
| Terme |
| Négociable |
| Taux de location |
| 13,84 $ CAD/pi²/an 1,15 $ CAD/pi²/mois 55 364 $ CAD/an 4 614 $ CAD/mois |
| Utilisation de l’espace |
| Industriel |
| Aménagement |
| - |
| Disponible |
| Maintenant |
1er étage - 5066
| Taille |
| 6 000 pi² |
| Terme |
| Négociable |
| Taux de location |
| 12,46 $ CAD/pi²/an 1,04 $ CAD/pi²/mois 74 741 $ CAD/an 6 228 $ CAD/mois |
| Utilisation de l’espace |
| Industriel |
| Aménagement |
| - |
| Disponible |
| Maintenant |
1er étage - B
| Taille |
| 3 000 pi² |
| Terme |
| Négociable |
| Taux de location |
| 13,84 $ CAD/pi²/an 1,15 $ CAD/pi²/mois 41 523 $ CAD/an 3 460 $ CAD/mois |
| Utilisation de l’espace |
| Industriel |
| Aménagement |
| - |
| Disponible |
| Maintenant |
1er étage - 2
| Taille | 4 000 pi² |
| Terme | Négociable |
| Taux de location | 13,84 $ CAD/pi²/an |
| Utilisation de l’espace | Industriel |
| Aménagement | - |
| Disponible | Maintenant |
?? Spacious 4000 sq ft Warehouse – Jefferson Park, Chicago Available February 1st – Unit #2 at 5068 N Kimberly Ave Looking for the perfect warehouse space in Jefferson Park? This 4000 sq ft unit features: Rent: $3200/month Ceiling Height: 30’ – plenty of vertical space 24/7 Building Access – work on your schedule Parking Available for an additional fee Three-Phase Power (800–1600 amps) Drive-In Access on-site Security & Surveillance System included Ideal For: Storage, wholesale, light manufacturing, metal/woodshop, distribution, and similar businesses. ?? No automotive tenants Additional Charges May Apply: Utilities (heat, internet, etc.), parking, CAMs ?? Contact us Today!!
- Le taux de location ne comprend pas les services publics, les services de bâtiment ou les dépenses immobilières.
- 1 accès plain-pied
1er étage - 5066
| Taille | 6 000 pi² |
| Terme | Négociable |
| Taux de location | 12,46 $ CAD/pi²/an |
| Utilisation de l’espace | Industriel |
| Aménagement | - |
| Disponible | Maintenant |
?? Spacious 6000 sq ft Warehouse – Jefferson Park, Chicago Available February 1st – at 5066 N Kimberly Ave Looking for the perfect warehouse space in Jefferson Park? This 6000 sq ft unit features: Rent: $4,500/month Ceiling Height: 30’ – plenty of vertical space 24/7 Building Access – work on your schedule Parking Available for an additional fee Three-Phase Power (800–1600 amps) Drive-In Access on-site Security & Surveillance System included Private Office Ideal For: Storage, wholesale, light manufacturing, metal/woodshop, distribution, and similar businesses. ?? No automotive tenants Additional Charges May Apply: Utilities (heat, internet, etc.), parking, CAMs ?? Contact us Today!!
- Le taux de location ne comprend pas les services publics, les services de bâtiment ou les dépenses immobilières.
- 1 accès plain-pied
- Air central et chauffage
1er étage - B
| Taille | 3 000 pi² |
| Terme | Négociable |
| Taux de location | 13,84 $ CAD/pi²/an |
| Utilisation de l’espace | Industriel |
| Aménagement | - |
| Disponible | Maintenant |
?? Spacious 3000 sq ft Warehouse – Jefferson Park, Chicago Available February 1st – Unit #B at 5066 N Kimberly Ave Looking for the perfect warehouse space in Jefferson Park? This 3000 sq ft unit features: Rent: $2,500/month Ceiling Height: 30’ – plenty of vertical space 24/7 Building Access – work on your schedule Parking Available for an additional fee Three-Phase Power (800–1600 amps) Drive-In Access on-site Security & Surveillance System included Private Office Ideal For: Storage, wholesale, light manufacturing, metal/woodshop, distribution, and similar businesses. ?? No automotive tenants Additional Charges May Apply: Utilities (heat, internet, etc.), parking, CAMs ?? Contact us Today!!
- Le taux de location ne comprend pas les services publics, les services de bâtiment ou les dépenses immobilières.
- Espace en excellent état
- Disposition du plan d’étage ouverte en général
- Plafonds finis: 20’ - 30’
Faits sur l’installation fabrication
Présenté par
5070 N Kimberly Ave | 5066-5070 N Kimberly Ave
Hmm, il semble y avoir eu une erreur lors de l’envoi de votre message. Veuillez réessayer.
Merci! Votre message a été envoyé.









