Votre courriel a été envoyé.
Certaines informations ont été traduites automatiquement.
Tous les espaces disponibles(1)
Afficher les taux de location en
- Espace
- Taille
- Terme
- Taux de location
- Utilisation de l’espace
- Aménagement
- Disponible
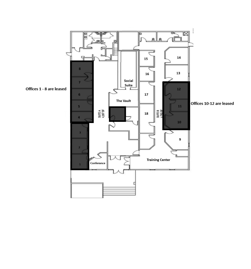
** 7 Offices Left ** Individual private offices ranging from 90 to 238 square feet are available in a well-maintained, professionally operated building. The property includes a staffed reception desk to greet visitors (business hours 9am-4pm & closed on holidays), a waiting area, and complimentary beverages for tenants and guests. Building was remodeled in 2019. Each private office space comes equipped with high-speed internet, some are furnished with a desk & chair, and access to shared amenities including a kitchen/lounge, a printer room with standard business equipment (10 cents for color, 3 cents for black & white), professional meeting rooms (available separately), green room (available separately), and a gym located in the basement. Whether you need a quiet corner to focus or a spacious suite to host your team, you can find flexible office space for rent that matches your business goals. Rent offices by the month, 6 months, or 12 months. No long-term leases are required, however, there is discounted pricing for 12-month leases or longer! Offices are secure, quiet, and suitable for a variety of professional uses. Whether you're a remote professional, a growing startup, or an established business expanding, 507 Knight Street offers a wide selection of private offices. Each individual office varies on pricing, the advertised office is the smallest space and the price is for a 1-year lease agreement. Please see the attached floor plan for the current offices that are available and contact LA for more details on pricing. *** Details regarding individual office availability, pricing, and terms within this shared office building are subject to change without notice. Information is deemed reliable but not guaranteed. Prospective tenants should contact the listing agent for the most current and accurate information. ***
- Le taux comprend les services publics, les services de bâtiment et les dépenses immobilières.
- Convient pour 1 à 19 personnes
- Espace en excellent état
- Staffed reception desk
- Offices are secure & quiet
- Entièrement construit comme Bureau standard
- 12 bureaux privés
- Well-maintained, professionally operated building
- Furnished with desk & chair
| Espace | Taille | Terme | Taux de location | Utilisation de l’espace | Aménagement | Disponible |
| 1er étage | 90 à 2 298 pi² | Négociable | 41,03 $ CAD/pi²/an 3,42 $ CAD/pi²/mois 94 288 $ CAD/an 7 857 $ CAD/mois | Bureau | construction complète | Maintenant |
1er étage
| Taille |
| 90 à 2 298 pi² |
| Terme |
| Négociable |
| Taux de location |
| 41,03 $ CAD/pi²/an 3,42 $ CAD/pi²/mois 94 288 $ CAD/an 7 857 $ CAD/mois |
| Utilisation de l’espace |
| Bureau |
| Aménagement |
| construction complète |
| Disponible |
| Maintenant |
1er étage
| Taille | 90 à 2 298 pi² |
| Terme | Négociable |
| Taux de location | 41,03 $ CAD/pi²/an |
| Utilisation de l’espace | Bureau |
| Aménagement | construction complète |
| Disponible | Maintenant |
** 7 Offices Left ** Individual private offices ranging from 90 to 238 square feet are available in a well-maintained, professionally operated building. The property includes a staffed reception desk to greet visitors (business hours 9am-4pm & closed on holidays), a waiting area, and complimentary beverages for tenants and guests. Building was remodeled in 2019. Each private office space comes equipped with high-speed internet, some are furnished with a desk & chair, and access to shared amenities including a kitchen/lounge, a printer room with standard business equipment (10 cents for color, 3 cents for black & white), professional meeting rooms (available separately), green room (available separately), and a gym located in the basement. Whether you need a quiet corner to focus or a spacious suite to host your team, you can find flexible office space for rent that matches your business goals. Rent offices by the month, 6 months, or 12 months. No long-term leases are required, however, there is discounted pricing for 12-month leases or longer! Offices are secure, quiet, and suitable for a variety of professional uses. Whether you're a remote professional, a growing startup, or an established business expanding, 507 Knight Street offers a wide selection of private offices. Each individual office varies on pricing, the advertised office is the smallest space and the price is for a 1-year lease agreement. Please see the attached floor plan for the current offices that are available and contact LA for more details on pricing. *** Details regarding individual office availability, pricing, and terms within this shared office building are subject to change without notice. Information is deemed reliable but not guaranteed. Prospective tenants should contact the listing agent for the most current and accurate information. ***
- Le taux comprend les services publics, les services de bâtiment et les dépenses immobilières.
- Entièrement construit comme Bureau standard
- Convient pour 1 à 19 personnes
- 12 bureaux privés
- Espace en excellent état
- Well-maintained, professionally operated building
- Staffed reception desk
- Furnished with desk & chair
- Offices are secure & quiet
Caractéristiques et commodités
- Centre de conditionnement physique
- Réception
Faits sur la propriété
Sélectionner des locataires
- Étage
- Nom du locataire
- Secteur
- 1ᵉʳ
- Keller Williams Columbia Basin
- -
- 1ᵉʳ
- New Horizon School Of Massage
- Services éducatifs
- 1ᵉʳ
- Prigge Chiropractic
- Soins de santé et assistance sociale
Présenté par
507 Knight St
Hmm, il semble y avoir eu une erreur lors de l’envoi de votre message. Veuillez réessayer.
Merci! Votre message a été envoyé.







