Votre courriel a été envoyé.
Certaines informations ont été traduites automatiquement.
Faits saillants
- Complexe de 3 immeubles avec aire de stationnement sécurisée et fermée
- Situé sur l'avenue Rosecrans, très visible, à l'est de Long Beach Bl.
- Grande zone principale ouverte, bureaux privés et salle de conférence
- 17 places de stationnement sur un terrain paysager de 19 000 sf
- Utilisé auparavant comme centre de conditionnement physique et bureaux pour un organisme de bienfaisance pour enfants
Afficher les taux de location en
- Espace
- Taille
- Terme
- Taux de location
- Type de loyer
| Espace | Taille | Terme | Taux de location | Type de loyer | ||
| 1er étage, ste 515 E Rosecrans | 1 173 pi² | Négociable | 19,73 $ CAD/pi²/an 1,64 $ CAD/pi²/mois 23 141 $ CAD/an 1 928 $ CAD/mois | Loyer hypernet | ||
| 1er étage, ste 523 E Rosecrans Ave | 4 588 pi² | Négociable | 19,73 $ CAD/pi²/an 1,64 $ CAD/pi²/mois 90 512 $ CAD/an 7 543 $ CAD/mois | Loyer hypernet |
1er étage, ste 515 E Rosecrans
Vacant commercial property available for an owner-user or investor. Great property on a busy street that has a variety of potential uses. Gated Office Complex formerly occupied by the Children’s Institute Inc (Cii) which was formerly Rosecrans Shopping Center in the City of Compton. Fully built out modern office space features new construction with an remote-controlled gate for secure access to parking lot including 17 parking spaces on a 19,000 sf landscaped lot. The interior include carpeting, polished concrete floors, ADA bathrooms, lots of electrical service, ample window glass space, and signage rights to the large monument sign. Location Features: Great space for non-profit corporations and local, regional, and national companies looking for a safe, secure, and clean property for their business. Just a few blocks away from Long Beach Blvd with lots of restaurants and local businesses.
- Le taux de location ne comprend pas les services publics, les services de bâtiment ou les dépenses immobilières.
- Bureaux partitionnés
- Espace en excellent état
- Air central et chauffage
- CVCA disponible après les heures de travail
1er étage, ste 523 E Rosecrans Ave
Vacant commercial property available for an owner-user or investor. Great property on a busy street that has a variety of potential uses. Gated Office Complex formerly occupied by the Children’s Institute Inc (Cii) which was formerly Rosecrans Shopping Center in the City of Compton. Fully built out modern office space features new construction with an remote-controlled gate for secure access to parking lot including 17 parking spaces on a 19,000 sf landscaped lot. The interior include carpeting, polished concrete floors, ADA bathrooms, lots of electrical service, ample window glass space, and signage rights to the large monument sign. Location Features: Great space for non-profit corporations and local, regional, and national companies looking for a safe, secure, and clean property for their business. Just a few blocks away from Long Beach Blvd with lots of restaurants and local businesses.
- Le taux de location ne comprend pas les services publics, les services de bâtiment ou les dépenses immobilières.
- Convient pour 12 à 37 personnes
- Espace en excellent état
- Air central et chauffage
- Espace en coin
- Hauts plafonds
- CVCA disponible après les heures de travail
- Toilettes communes
- Installations WC abandonnées
- Plan ouvert
- Large Open Area with Kitchenette
- High Ceiling, Roll Up Door, and ADA Restrooms
- High Profile Corner Location
- Espace
- Taille
- Terme
- Taux de location
- Type de loyer
| Espace | Taille | Terme | Taux de location | Type de loyer | ||
| 1er étage, ste 509 E Rosecrans Ave | 1 621 pi² | Négociable | 19,73 $ CAD/pi²/an 1,64 $ CAD/pi²/mois 31 979 $ CAD/an 2 665 $ CAD/mois | Loyer hypernet | ||
| 1er étage, ste 515 E Rosecrans | 1 173 pi² | Négociable | 19,73 $ CAD/pi²/an 1,64 $ CAD/pi²/mois 23 141 $ CAD/an 1 928 $ CAD/mois | Loyer hypernet | ||
| 1er étage, ste 523 E Rosecrans Ave | 4 588 pi² | Négociable | 19,73 $ CAD/pi²/an 1,64 $ CAD/pi²/mois 90 512 $ CAD/an 7 543 $ CAD/mois | Loyer hypernet |
1er étage, ste 509 E Rosecrans Ave
Vacant commercial property available for an owner-user or investor. Great property on a busy street that has a variety of potential uses. Gated Office Complex formerly occupied by the Children’s Institute Inc (Cii) which was formerly Rosecrans Shopping Center in the City of Compton. Fully built out modern office space features new construction with an remote-controlled gate for secure access to parking lot including 17 parking spaces on a 19,000 sf landscaped lot. The interior include carpeting, polished concrete floors, ADA bathrooms, lots of electrical service, ample window glass space, and signage rights to the large monument sign. Location Features: Great space for non-profit corporations and local, regional, and national companies looking for a safe, secure, and clean property for their business. Just a few blocks away from Long Beach Blvd with lots of restaurants and local businesses.
- Le taux de location ne comprend pas les services publics, les services de bâtiment ou les dépenses immobilières.
- Espace embout très recherché
- Espace en excellent état
- Climatisation centrale
- Bureaux partitionnés
- Salle de bains privée
- Espace en coin
- Plafond suspendu
- Plafond exposé
- CVCA disponible après les heures de travail
- Gated Office Complex with Large Parking Lot
- Signage rights to the large monument sign.
- ADA bathrooms and upgraded electrical service
1er étage, ste 515 E Rosecrans
Vacant commercial property available for an owner-user or investor. Great property on a busy street that has a variety of potential uses. Gated Office Complex formerly occupied by the Children’s Institute Inc (Cii) which was formerly Rosecrans Shopping Center in the City of Compton. Fully built out modern office space features new construction with an remote-controlled gate for secure access to parking lot including 17 parking spaces on a 19,000 sf landscaped lot. The interior include carpeting, polished concrete floors, ADA bathrooms, lots of electrical service, ample window glass space, and signage rights to the large monument sign. Location Features: Great space for non-profit corporations and local, regional, and national companies looking for a safe, secure, and clean property for their business. Just a few blocks away from Long Beach Blvd with lots of restaurants and local businesses.
- Le taux de location ne comprend pas les services publics, les services de bâtiment ou les dépenses immobilières.
- Bureaux partitionnés
- Espace en excellent état
- Air central et chauffage
- CVCA disponible après les heures de travail
1er étage, ste 523 E Rosecrans Ave
Vacant commercial property available for an owner-user or investor. Great property on a busy street that has a variety of potential uses. Gated Office Complex formerly occupied by the Children’s Institute Inc (Cii) which was formerly Rosecrans Shopping Center in the City of Compton. Fully built out modern office space features new construction with an remote-controlled gate for secure access to parking lot including 17 parking spaces on a 19,000 sf landscaped lot. The interior include carpeting, polished concrete floors, ADA bathrooms, lots of electrical service, ample window glass space, and signage rights to the large monument sign. Location Features: Great space for non-profit corporations and local, regional, and national companies looking for a safe, secure, and clean property for their business. Just a few blocks away from Long Beach Blvd with lots of restaurants and local businesses.
- Le taux de location ne comprend pas les services publics, les services de bâtiment ou les dépenses immobilières.
- Convient pour 12 à 37 personnes
- Espace en excellent état
- Air central et chauffage
- Espace en coin
- Hauts plafonds
- CVCA disponible après les heures de travail
- Toilettes communes
- Installations WC abandonnées
- Plan ouvert
- Large Open Area with Kitchenette
- High Ceiling, Roll Up Door, and ADA Restrooms
- High Profile Corner Location
Types de loyers
Le type et le montant du loyer que le locataire (preneur) est tenu de payer au propriétaire (bailleur) sur la durée du bail sont négociés avant la signature du bail par les deux parties. Le type de loyer varie selon les services fournis. Par exemple, le prix d’un loyer hypernet est habituellement inférieur à celui d’un bail à service complet puisque le locataire est tenu d’assumer des dépenses additionnelles par rapport au loyer de base. Contactez le courtier inscripteur pour tout connaître sur les frais connexes et additionnels associés à chaque type de loyer.
1. Service complet: Un taux de location qui comprend des services standards liés à l’immeuble fournis par le propriétaire dans le cadre d’une location annuelle de base.
2. Loyer supernet: Le locataire paie seulement deux des frais de l’immeuble. Le propriétaire et le locataire déterminent ces frais spécifiques avant la signature du bail.
3. Loyer hypernet: Un bail en vertu duquel le locataire est responsable de tous les frais liés à sa part proportionnelle d’occupation de l’immeuble.
4. Brut modifié: Le loyer brut modifié désigne un type général de taux de location dans lequel le locataire est habituellement responsable de sa part proportionnelle d’un ou de plusieurs frais. C’est le propriétaire qui paie les frais restants. Considérez les structures tarifaires courantes suivantes applicables aux loyers bruts modifiés: 4. Plus les services: Un type de bail brut modifié suivant lequel le locataire est responsable de sa part proportionnelle des coûts des services publics, en plus du loyer. 4. Plus le nettoyage: Un type de bail brut modifié suivant lequel le locataire est responsable de sa part proportionnelle des coûts de nettoyage, en plus du loyer. 4. Plus l'électricité: Un type de bail brut modifié suivant lequel le locataire est responsable de sa part proportionnelle des coûts d’électricité, en plus du loyer. 4. Plus l’électricité et le nettoyage: Un type de bail brut modifié dans lequel le locataire est responsable de sa part proportionnelle des coûts d’électricité et de nettoyage, en plus du loyer. 4. Plus les services publics et le nettoyage: Un type de bail brut modifié dans lequel le locataire est responsable de sa part proportionnelle des coûts des services publics et de nettoyage, en plus du loyer. 4. Bail industriel brut: Un type de bail brut modifié dans lequel le locataire paie un ou plusieurs des frais, en plus du loyer. Le propriétaire et le locataire déterminent ces frais spécifiques avant la signature du bail.
5. L’électricité est à la charge du locataire: Le propriétaire paie pour tous les services et le locataire est responsable de sa propre utilisation de l’éclairage et des prises électriques dans l’espace qu’il occupe.
6. Négociable ou sur demande: Cette option est utilisée lorsque le contact de location ne précise pas le type de loyer ou de service.
7. À déterminer: À déterminer ; utilisé pour les immeubles dont le type de services ou de loyer n’est pas connu, souvent quand l’immeuble n’est pas encore construit.
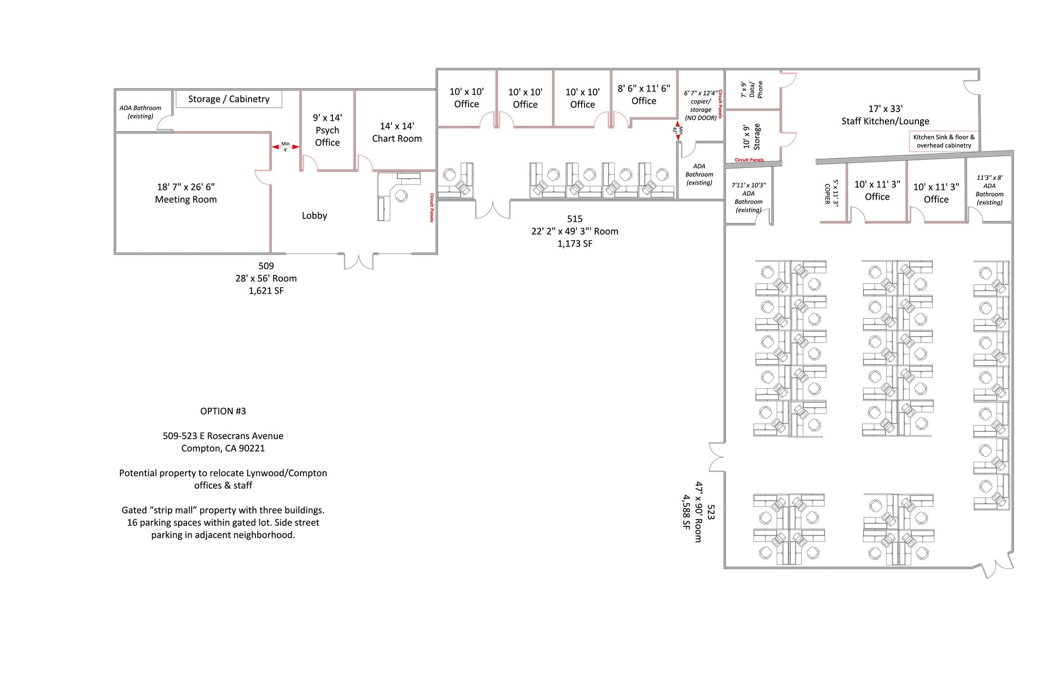
Plan de site
Faits sur la propriété
| Superficie totale disponible | 7 382 pi² | Superficie commerciale brute | 7 382 pi² |
| Type de propriété | Commerce de détail | Année de construction/rénovation | 1950/2016 |
| Sous-type de propriété | Bien à usage mixte | Ratio de stationnement | 2,3/1 000 pi² |
| Superficie totale disponible | 7 382 pi² |
| Type de propriété | Commerce de détail |
| Sous-type de propriété | Bien à usage mixte |
| Superficie commerciale brute | 7 382 pi² |
| Année de construction/rénovation | 1950/2016 |
| Ratio de stationnement | 2,3/1 000 pi² |
À propos de la propriété
Complexe de bureaux et de commerces de détail dans la ville de Compton. Des bureaux modernes entièrement construits et un centre de conditionnement physique au détail sont construits récemment avec un portail télécommandé pour un accès sécurisé au stationnement. Auparavant, il servait de centre de conditionnement physique et de bureaux pour une grande société sans but lucratif. Grande salle de sport et petits espaces privés. Convient à de nombreux usages : commerce de détail, bureau, complexe sportif, centre de conditionnement physique, organisme de bienfaisance, etc. Complexe de bureaux fermé autrefois occupé par le Children's Institute Inc (Cii), qui était auparavant le centre commercial Rosecrans dans la ville de Compton. Les bureaux modernes entièrement construits comprennent une nouvelle construction avec un portail télécommandé pour un accès sécurisé au stationnement, y compris 17 places de stationnement sur un terrain paysager de 19 000 pi2. L'intérieur comprend de la tapis, des planchers en béton poli, des salles de bains ADA, de nombreux services électriques, un grand espace vitré et des droits de signalisation sur le grand panneau du monument. Excellent espace pour les sociétés à but non lucratif et les entreprises locales, régionales et nationales à la recherche d'une propriété sûre, sécuritaire et propre pour leur entreprise. À quelques pâtés de maisons du boulevard Long Beach avec beaucoup de restaurants et d'entreprises locales. Les frais NNN ne sont que de 0,15 $/SF/MO
- Ligne d'autobus
- Installations de conférences
- Lot de coin
- Terrain clôturé
- Enseigne sur pylône
- Système de sécurité
- Affichage
- CVCA contrôlé par le locataire
- Espace d'entreposage
- Éclairage encastré
- Affichage sur monument
Principaux détaillants à proximité
Présenté par
509-523 E Rosecrans Ave
Hmm, il semble y avoir eu une erreur lors de l’envoi de votre message. Veuillez réessayer.
Merci! Votre message a été envoyé.












