Votre courriel a été envoyé.
509 Bynum Rd - Retail Pad Site - Lot 5 Lot • Terrain commercial • 2,05 Acres • 1 205 872 $ CAD • Bel Air, MD 21014



Certaines informations ont été traduites automatiquement.
Faits saillants de l'investissement
- Le trafic est estimé à plus de 35 000 voitures par jour et une excellente visibilité.
- Zoné B-3, le district de zonage commercial le plus inclusif.
Résumé de l'annonce
Faits sur la propriété
1 Lot disponible
Lot 5
| Prix | 1 205 872 $ CAD | Taille du lot | 2,05 AC |
| Prix par AC | 588 230,48 $ CAD |
| Prix | 1 205 872 $ CAD |
| Prix par AC | 588 230,48 $ CAD |
| Taille du lot | 2,05 AC |
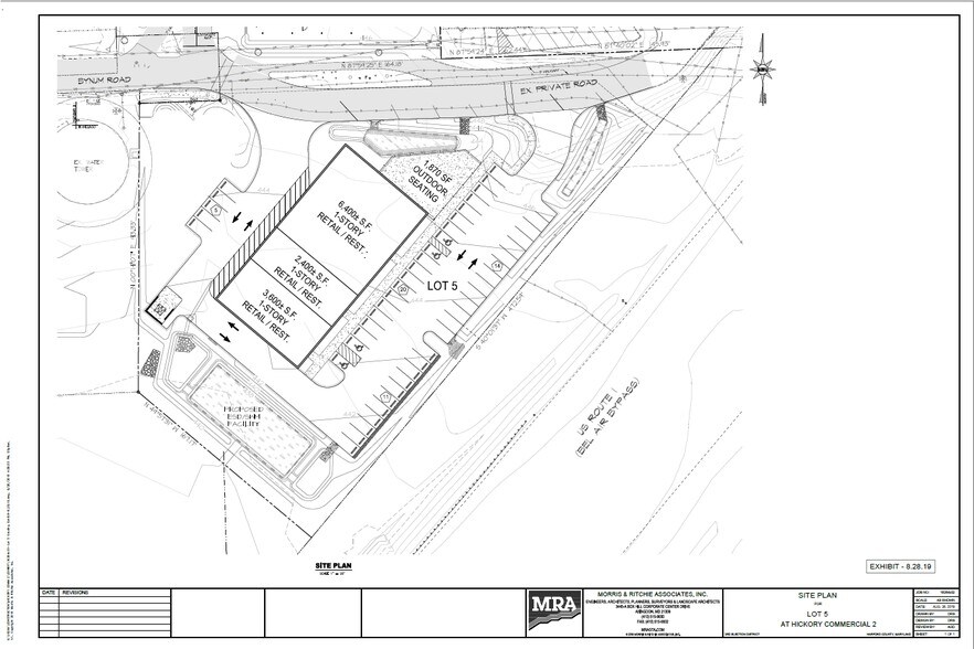
La propriété est actuellement approuvée pour un immeuble commercial de 12 000 pieds carrés avec une allée et un patio. Les approbations actuelles peuvent être modifiées pour accélérer le développement. Voir les notes de vente.
Description
La propriété d'un peu plus de 2 acres. Il est entièrement approuvé pour 12 000 m2. Ft. D'un espace de vente au détail. SWM est approuvé. La propriété a une façade sur le contournement de la route 1 et une visibilité par rapport aux entreprises américaines 1. La propriété est adjacente à McDonald's.
Impôts fonciers
| Numéro de lot | 03-035026 | Évaluation des bâtiments | 0 $ CAD |
| Évaluation du terrain | 648 981 $ CAD | Évaluation totale | 648 981 $ CAD |
Impôts fonciers
Présenté par
509 Bynum Rd - Retail Pad Site - Lot 5
Hmm, il semble y avoir eu une erreur lors de l’envoi de votre message. Veuillez réessayer.
Merci! Votre message a été envoyé.
