Votre courriel a été envoyé.
Certaines informations ont été traduites automatiquement.
Faits saillants
- Spectre, Frontier et Crown Castle Fibre haute vitesse et services de fibre optique + disponibles
- Stationnement en surface et couvert disponible sur la propriété
- On-site tenant canteen
- Gestion sur place et boîte de dépôt FedEx, USPS et UPS
- Lobby Renovations in progress
Tous les espaces disponibles(4)
Afficher les taux de location en
- Espace
- Taille
- Terme
- Taux de location
- Utilisation de l’espace
- État
- Disponible
- Le taux comprend les services publics, les services de bâtiment et les dépenses immobilières.
Standard office space
- Le taux comprend les services publics, les services de bâtiment et les dépenses immobilières.
- Disposition du plan d’étage ouverte en général
- 2 salles de conférence
- Standard office space
- 2 conference rooms.
- Partiellement construit comme Bureau standard
- 2 bureaux privés
- Climatisation centrale
- 2 private offices.
Heavy private office count here, total of seven(7), reception area, conference room and break room. Previous tenant was a law firm.
- Le taux comprend les services publics, les services de bâtiment et les dépenses immobilières.
- Disposition du plan d’étage ouverte en général
- 1 salle de conférence
- Seven (7) private offices
- One (1) conference room
- Entièrement construit comme Bureau standard
- 7 bureaux privés
- Standard office space
- Reception area
- Break room
- Le taux comprend les services publics, les services de bâtiment et les dépenses immobilières.
- Disposition du plan d’étage ouverte en général
- 1 salle de conférence
- 4 private offices.
- Double door entry off elevator lobby.
- Entièrement construit comme Bureau standard
- 4 bureaux privés
- Climatisation centrale
- 1 conference room.
| Espace | Taille | Terme | Taux de location | Utilisation de l’espace | État | Disponible |
| 2e étage, ste 250 | 8 941 pi² | Négociable | 44,89 $ CAD/pi²/an 3,74 $ CAD/pi²/mois 401 353 $ CAD/an 33 446 $ CAD/mois | Bureau | - | 2027-02-01 |
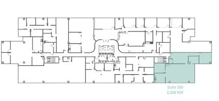
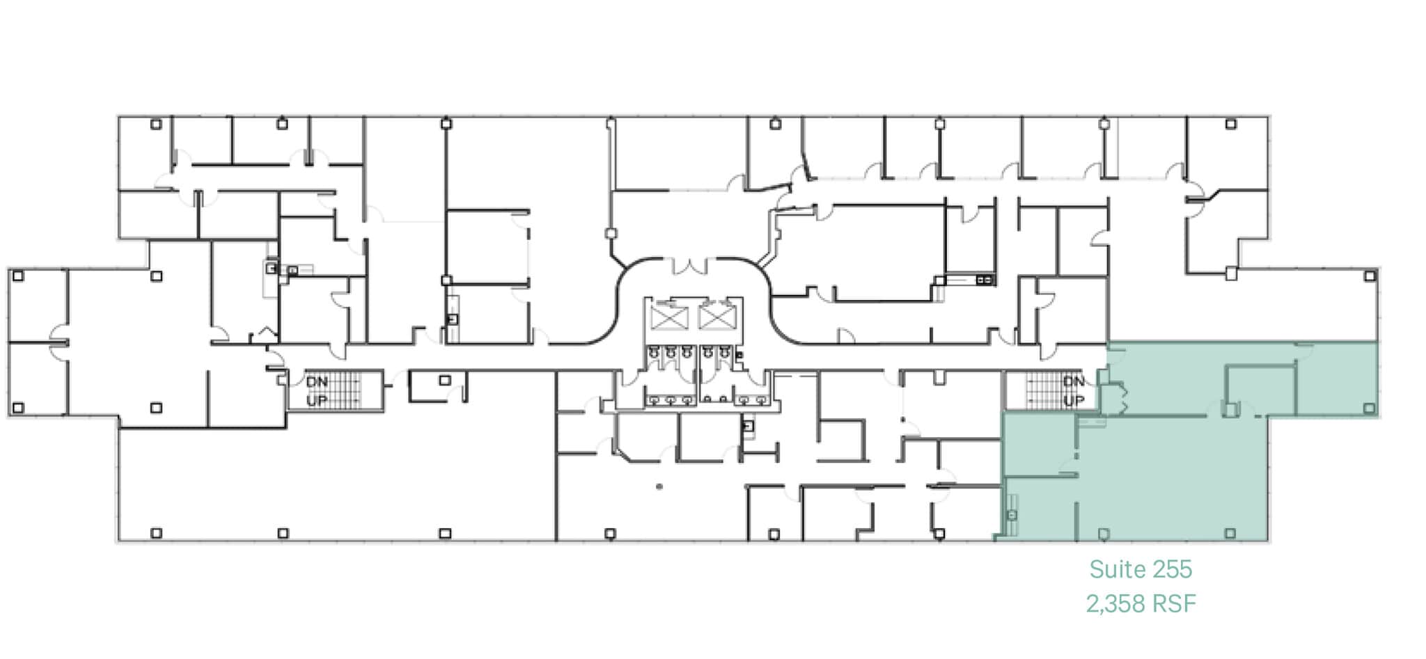
| 2e étage, ste 255 | 2 358 pi² | Négociable | 44,89 $ CAD/pi²/an 3,74 $ CAD/pi²/mois 105 848 $ CAD/an 8 821 $ CAD/mois | Bureau | construction partielle | Maintenant |
| 2e étage, ste 270 | 2 277 pi² | Négociable | 44,89 $ CAD/pi²/an 3,74 $ CAD/pi²/mois 102 212 $ CAD/an 8 518 $ CAD/mois | Bureau | construction complète | Maintenant |
| 3e étage, ste 375 | 4 086 pi² | Négociable | 44,89 $ CAD/pi²/an 3,74 $ CAD/pi²/mois 183 416 $ CAD/an 15 285 $ CAD/mois | Bureau | construction complète | Maintenant |
2e étage, ste 250
| Taille |
| 8 941 pi² |
| Terme |
| Négociable |
| Taux de location |
| 44,89 $ CAD/pi²/an 3,74 $ CAD/pi²/mois 401 353 $ CAD/an 33 446 $ CAD/mois |
| Utilisation de l’espace |
| Bureau |
| État |
| - |
| Disponible |
| 2027-02-01 |
2e étage, ste 255
| Taille |
| 2 358 pi² |
| Terme |
| Négociable |
| Taux de location |
| 44,89 $ CAD/pi²/an 3,74 $ CAD/pi²/mois 105 848 $ CAD/an 8 821 $ CAD/mois |
| Utilisation de l’espace |
| Bureau |
| État |
| construction partielle |
| Disponible |
| Maintenant |
2e étage, ste 270
| Taille |
| 2 277 pi² |
| Terme |
| Négociable |
| Taux de location |
| 44,89 $ CAD/pi²/an 3,74 $ CAD/pi²/mois 102 212 $ CAD/an 8 518 $ CAD/mois |
| Utilisation de l’espace |
| Bureau |
| État |
| construction complète |
| Disponible |
| Maintenant |
3e étage, ste 375
| Taille |
| 4 086 pi² |
| Terme |
| Négociable |
| Taux de location |
| 44,89 $ CAD/pi²/an 3,74 $ CAD/pi²/mois 183 416 $ CAD/an 15 285 $ CAD/mois |
| Utilisation de l’espace |
| Bureau |
| État |
| construction complète |
| Disponible |
| Maintenant |
2e étage, ste 250
| Taille | 8 941 pi² |
| Terme | Négociable |
| Taux de location | 44,89 $ CAD/pi²/an |
| Utilisation de l’espace | Bureau |
| État | - |
| Disponible | 2027-02-01 |
- Le taux comprend les services publics, les services de bâtiment et les dépenses immobilières.
2e étage, ste 255
| Taille | 2 358 pi² |
| Terme | Négociable |
| Taux de location | 44,89 $ CAD/pi²/an |
| Utilisation de l’espace | Bureau |
| État | construction partielle |
| Disponible | Maintenant |
Standard office space
- Le taux comprend les services publics, les services de bâtiment et les dépenses immobilières.
- Partiellement construit comme Bureau standard
- Disposition du plan d’étage ouverte en général
- 2 bureaux privés
- 2 salles de conférence
- Climatisation centrale
- Standard office space
- 2 private offices.
- 2 conference rooms.
2e étage, ste 270
| Taille | 2 277 pi² |
| Terme | Négociable |
| Taux de location | 44,89 $ CAD/pi²/an |
| Utilisation de l’espace | Bureau |
| État | construction complète |
| Disponible | Maintenant |
Heavy private office count here, total of seven(7), reception area, conference room and break room. Previous tenant was a law firm.
- Le taux comprend les services publics, les services de bâtiment et les dépenses immobilières.
- Entièrement construit comme Bureau standard
- Disposition du plan d’étage ouverte en général
- 7 bureaux privés
- 1 salle de conférence
- Standard office space
- Seven (7) private offices
- Reception area
- One (1) conference room
- Break room
3e étage, ste 375
| Taille | 4 086 pi² |
| Terme | Négociable |
| Taux de location | 44,89 $ CAD/pi²/an |
| Utilisation de l’espace | Bureau |
| État | construction complète |
| Disponible | Maintenant |
- Le taux comprend les services publics, les services de bâtiment et les dépenses immobilières.
- Entièrement construit comme Bureau standard
- Disposition du plan d’étage ouverte en général
- 4 bureaux privés
- 1 salle de conférence
- Climatisation centrale
- 4 private offices.
- 1 conference room.
- Double door entry off elevator lobby.
Aperçu de la propriété
Le Kennedy Center, situé dans le Westshore Business District, est très visible depuis le boulevard Kennedy. Kennedy Center est à proximité des commodités piétonnières, y compris Westshore Plaza, des restaurants, des hôtels, des magasins de détail, des banques, ainsi que des quartiers résidentiels et des complexes. Le Kennedy Center offre un excellent accès à l'autoroute Veterans, à l'avenue W. Hillsborough, au pont-jetée Courtney Campbell, à l'I-275 et à quelques minutes de l'aéroport international de Tampa, du centre-ville de Tampa, de l'aéroport de Saint-Pete/Clearwater et de la zone Carillon/Gateway.
- Service d'alimentation
- Gestionnaire d'immeuble sur place
Faits sur la propriété
Présenté par
Kennedy Center | 5100 W Kennedy Blvd
Hmm, il semble y avoir eu une erreur lors de l’envoi de votre message. Veuillez réessayer.
Merci! Votre message a été envoyé.







