Votre courriel a été envoyé.
Certaines informations ont été traduites automatiquement.
Faits saillants
- This versatile property offers an ideal blend of warehouse, retail, and fitness potential within a highly accessible West Side Cincinnati corridor.
- The site benefits from strong visibility and traffic counts of approximately seventeen thousand nine hundred vehicles per day at Glenway Avenue and Cr
- Prominent signage opportunities along Crookshank enhance brand exposure for incoming users.
- Two convenient drive-in doors and clear heights ranging from fourteen to sixteen feet support a wide range of operational needs.
- Formerly occupied by KOI Auto Parts, the building lends itself well to service, distribution, or customer-facing business models.
Disponibilité de l’espace (1)
Afficher les taux de location en
- Espace
- Taille
- Terme
- Taux de location
- Type de loyer
| Espace | Taille | Terme | Taux de location | Type de loyer | ||
| 1er étage | 6 900 pi² | 3-5 ans | 12,32 $ CAD/pi²/an 1,03 $ CAD/pi²/mois 84 980 $ CAD/an 7 082 $ CAD/mois | Loyer hypernet |
1er étage
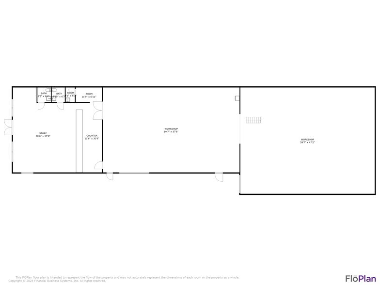
The available space totals approximately 6,900 square feet and is configured for flexible retail, warehouse, or fitness-oriented use. Two ten-foot drive-in doors provide efficient loading and customer access, supported by clear heights between fourteen and sixteen feet. Positioned at the Glenway and Crookshank intersection, the property captures excellent exposure from nearly eighteen thousand vehicles daily. Previously home to KOI Auto Parts, the space is well suited for operators seeking visibility, accessibility, and adaptable floor area. Offered at $9.95 per square foot plus $1.81 NNN, this location presents strong value within a high-traffic commercial corridor.
- Le taux de location ne comprend pas les services publics, les services de bâtiment ou les dépenses immobilières.
- Partiellement construit comme Espace de commerce de détail standard
- L’espace est une parcelle de terrain de cette propriété
- Espace pour locataire majeur
- Air central et chauffage
- Salle de bains privée
- Hauts plafonds
- Plafond exposé
- CVCA disponible après les heures de travail
- Baie vitrée
- Excellent Retail/Warehouse/Fitness Location
Types de loyers
Le type et le montant du loyer que le locataire (preneur) est tenu de payer au propriétaire (bailleur) sur la durée du bail sont négociés avant la signature du bail par les deux parties. Le type de loyer varie selon les services fournis. Par exemple, le prix d’un loyer hypernet est habituellement inférieur à celui d’un bail à service complet puisque le locataire est tenu d’assumer des dépenses additionnelles par rapport au loyer de base. Contactez le courtier inscripteur pour tout connaître sur les frais connexes et additionnels associés à chaque type de loyer.
1. Service complet: Un taux de location qui comprend des services standards liés à l’immeuble fournis par le propriétaire dans le cadre d’une location annuelle de base.
2. Loyer supernet: Le locataire paie seulement deux des frais de l’immeuble. Le propriétaire et le locataire déterminent ces frais spécifiques avant la signature du bail.
3. Loyer hypernet: Un bail en vertu duquel le locataire est responsable de tous les frais liés à sa part proportionnelle d’occupation de l’immeuble.
4. Brut modifié: Le loyer brut modifié désigne un type général de taux de location dans lequel le locataire est habituellement responsable de sa part proportionnelle d’un ou de plusieurs frais. C’est le propriétaire qui paie les frais restants. Considérez les structures tarifaires courantes suivantes applicables aux loyers bruts modifiés: 4. Plus les services: Un type de bail brut modifié suivant lequel le locataire est responsable de sa part proportionnelle des coûts des services publics, en plus du loyer. 4. Plus le nettoyage: Un type de bail brut modifié suivant lequel le locataire est responsable de sa part proportionnelle des coûts de nettoyage, en plus du loyer. 4. Plus l'électricité: Un type de bail brut modifié suivant lequel le locataire est responsable de sa part proportionnelle des coûts d’électricité, en plus du loyer. 4. Plus l’électricité et le nettoyage: Un type de bail brut modifié dans lequel le locataire est responsable de sa part proportionnelle des coûts d’électricité et de nettoyage, en plus du loyer. 4. Plus les services publics et le nettoyage: Un type de bail brut modifié dans lequel le locataire est responsable de sa part proportionnelle des coûts des services publics et de nettoyage, en plus du loyer. 4. Bail industriel brut: Un type de bail brut modifié dans lequel le locataire paie un ou plusieurs des frais, en plus du loyer. Le propriétaire et le locataire déterminent ces frais spécifiques avant la signature du bail.
5. L’électricité est à la charge du locataire: Le propriétaire paie pour tous les services et le locataire est responsable de sa propre utilisation de l’éclairage et des prises électriques dans l’espace qu’il occupe.
6. Négociable ou sur demande: Cette option est utilisée lorsque le contact de location ne précise pas le type de loyer ou de service.
7. À déterminer: À déterminer ; utilisé pour les immeubles dont le type de services ou de loyer n’est pas connu, souvent quand l’immeuble n’est pas encore construit.
Sélectionner des locataires à 5101 Crookshank Rd, Cincinnati, OH 45238
- Locataire
- Description
- Emplacements US
- Portée
- Construction
- Construction
- -
- -
- Koi Auto Parts
- Automobile
- 59
- Régional
- Retail Location
- Détaillant
- -
- -
- Wholesale
- Grossiste
- -
- -
| Locataire | Description | Emplacements US | Portée |
| Construction | Construction | - | - |
| Koi Auto Parts | Automobile | 59 | Régional |
| Retail Location | Détaillant | - | - |
| Wholesale | Grossiste | - | - |
Faits sur la propriété
| Superficie totale disponible | 6 900 pi² | Superficie commerciale brute | 6 989 pi² |
| Type de propriété | Commerce de détail | Année de construction | 1959 |
| Sous-type de propriété | Immeuble de commerce | Ratio de stationnement | 0,86/1 000 pi² |
| Superficie totale disponible | 6 900 pi² |
| Type de propriété | Commerce de détail |
| Sous-type de propriété | Immeuble de commerce |
| Superficie commerciale brute | 6 989 pi² |
| Année de construction | 1959 |
| Ratio de stationnement | 0,86/1 000 pi² |
À propos de la propriété
Property Highlights • High-Impact Visibility: Command attention with exposure to over 17,900 vehicles per day (VPD). This is a proven destination for automotive, retail, or service-oriented businesses. • Flexible Industrial Features: * Clear Height: 14' to 16' ceilings, providing ample vertical volume for racking or equipment. Loading: (2) 10' Drive-in Doors, ideal for effortless inventory management or vehicle service. • Functional Layout: The 6,900+/- SF footprint offers a seamless blend of showroom potential and back-stock/warehouse space.
- Accès 24 heures
- Accès contrôlé
- Affichage
- CVCA contrôlé par le locataire
- Accessible aux fauteuils roulants
Principaux détaillants à proximité
Présenté par
5101 Crookshank Rd
Hmm, il semble y avoir eu une erreur lors de l’envoi de votre message. Veuillez réessayer.
Merci! Votre message a été envoyé.



