Votre courriel a été envoyé.
5121 West Union Rd. | Millington, TN 38053 5121 Union rd 2 308 pi² d'espace disponible • Commerce de détail • 4 étoiles • Millington, TN 38053



Certaines informations ont été traduites automatiquement.
Faits saillants
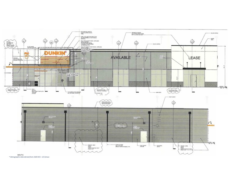
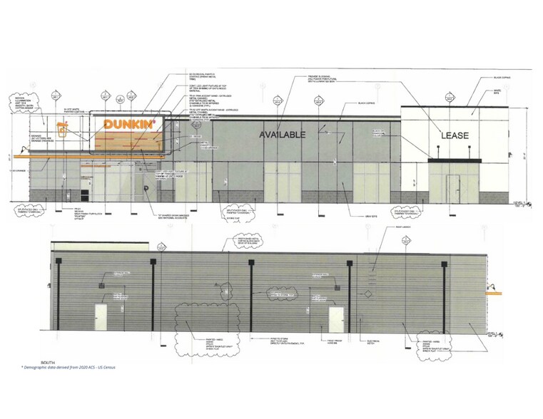
- Build to Suit, End Cap, 2,308 SQ FT
- Across from Forked River Commons, Millington, TN
- Ample on-site parking
- 21,000+ VPD
- Drive-Thru Capability
- Prominent pylon and building signage available
Disponibilité de l’espace (1)
Afficher les taux de location en
- Espace
- Taille
- Terme
- Taux de location
- Type de loyer
| Espace | Taille | Terme | Taux de location | Type de loyer | ||
| 1er étage | 2 308 pi² | Négociable | Sur demande Sur demande Sur demande Sur demande | Loyer hypernet |
1er étage
Build-to-Suit in Dunkin' Donuts Building | Prime Retail Location – Millington, TN 2,308 SQ FT Available - Endcap Premium built-to-suit opportunity in Dunkin' Donuts' building located in the heart of Millington's thriving retail corridor. Strategically located directly across from Forked River Commons, this high-visibility site offers excellent exposure along a heavily trafficked commercial stretch with strong neighboring national brands.
- Le taux de location ne comprend pas les services publics, les services de bâtiment ou les dépenses immobilières.
- Espace embout très recherché
- 21,000 +VPD
- Build-to-Suit Up to 2,308 SF (End Cap)
- Drive-Thru Capability
- Ample Parking
- Anchor Tenant - Dunkin Donuts
- Delivery Timeline: 1st Quarter 2026
Types de loyers
Le type et le montant du loyer que le locataire (preneur) est tenu de payer au propriétaire (bailleur) sur la durée du bail sont négociés avant la signature du bail par les deux parties. Le type de loyer varie selon les services fournis. Par exemple, le prix d’un loyer hypernet est habituellement inférieur à celui d’un bail à service complet puisque le locataire est tenu d’assumer des dépenses additionnelles par rapport au loyer de base. Contactez le courtier inscripteur pour tout connaître sur les frais connexes et additionnels associés à chaque type de loyer.
1. Service complet: Un taux de location qui comprend des services standards liés à l’immeuble fournis par le propriétaire dans le cadre d’une location annuelle de base.
2. Loyer supernet: Le locataire paie seulement deux des frais de l’immeuble. Le propriétaire et le locataire déterminent ces frais spécifiques avant la signature du bail.
3. Loyer hypernet: Un bail en vertu duquel le locataire est responsable de tous les frais liés à sa part proportionnelle d’occupation de l’immeuble.
4. Brut modifié: Le loyer brut modifié désigne un type général de taux de location dans lequel le locataire est habituellement responsable de sa part proportionnelle d’un ou de plusieurs frais. C’est le propriétaire qui paie les frais restants. Considérez les structures tarifaires courantes suivantes applicables aux loyers bruts modifiés: 4. Plus les services: Un type de bail brut modifié suivant lequel le locataire est responsable de sa part proportionnelle des coûts des services publics, en plus du loyer. 4. Plus le nettoyage: Un type de bail brut modifié suivant lequel le locataire est responsable de sa part proportionnelle des coûts de nettoyage, en plus du loyer. 4. Plus l'électricité: Un type de bail brut modifié suivant lequel le locataire est responsable de sa part proportionnelle des coûts d’électricité, en plus du loyer. 4. Plus l’électricité et le nettoyage: Un type de bail brut modifié dans lequel le locataire est responsable de sa part proportionnelle des coûts d’électricité et de nettoyage, en plus du loyer. 4. Plus les services publics et le nettoyage: Un type de bail brut modifié dans lequel le locataire est responsable de sa part proportionnelle des coûts des services publics et de nettoyage, en plus du loyer. 4. Bail industriel brut: Un type de bail brut modifié dans lequel le locataire paie un ou plusieurs des frais, en plus du loyer. Le propriétaire et le locataire déterminent ces frais spécifiques avant la signature du bail.
5. L’électricité est à la charge du locataire: Le propriétaire paie pour tous les services et le locataire est responsable de sa propre utilisation de l’éclairage et des prises électriques dans l’espace qu’il occupe.
6. Négociable ou sur demande: Cette option est utilisée lorsque le contact de location ne précise pas le type de loyer ou de service.
7. À déterminer: À déterminer ; utilisé pour les immeubles dont le type de services ou de loyer n’est pas connu, souvent quand l’immeuble n’est pas encore construit.
Faits sur la propriété
| Superficie totale disponible | 2 308 pi² | Superficie commerciale brute | 2 308 pi² |
| Type de propriété | Commerce de détail | Année de construction | 2025 |
| Superficie totale disponible | 2 308 pi² |
| Type de propriété | Commerce de détail |
| Superficie commerciale brute | 2 308 pi² |
| Année de construction | 2025 |
À propos de la propriété
This premium build-to-suit end-cap opportunity is located within the Dunkin’ Donuts building along Millington’s dominant retail corridor. Directly across from the $58M Forked River Commons development, the property benefits from exceptional exposure, strong traffic flow, and adjacency to top national retailers. This site is ideal for operators seeking to capitalize on strong local and commuter traffic in a rapidly growing trade area. With proximity to national retailers, military installations, schools, and residential developments, this location offers a powerful mix of visibility, accessibility, and brand synergy. Inquire now to secure this premier location to Millington!
Principaux détaillants à proximité
Présenté par
5121 West Union Rd. | Millington, TN 38053 | 5121 Union rd
Hmm, il semble y avoir eu une erreur lors de l’envoi de votre message. Veuillez réessayer.
Merci! Votre message a été envoyé.



