Se Connecter/S’inscrire
Votre courriel a été envoyé.
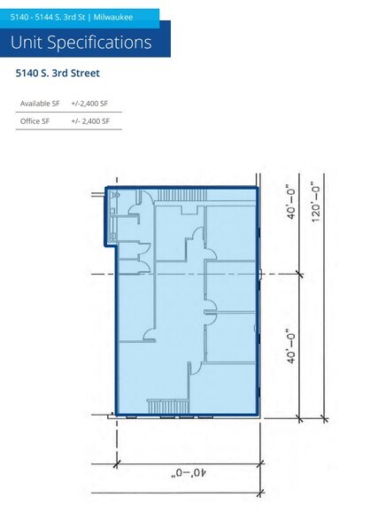
5140 S 3rd St
Milwaukee, WI 53207
Bureau Propriété À louer
·
2 400 pi²


Certaines informations ont été traduites automatiquement.
Faits saillants
- Situé à seulement un pâté de maisons de l'aéroport international General Mitchell
- Possibilité d'ajouter une charge supplémentaire
- 0,5 mille de l'autoroute I-94 et du 894 sur la bretelle
Caractéristiques
Hauteur libre
18’
Baies d’entrée
1
Niveleurs
3
Places de stationnement standard
25
Aperçu de la propriété
Espace de bureau au deuxième étage disponible à louer. Communiquez avec les courtiers pour obtenir de plus amples renseignements.
Faits sur l’installation Entrepôt
Taille du bâtiment
16 800 pi²
Taille du lot
1,73 AC
Année de construction
1978
Construction
Maçonnerie
Éclairage
Halogénure métallique
Chauffage
Gaz
Alimentation électrique
Ampères: 100-200 Volts: 120-208 Phase: 3 Fil: 4
Zonage
IL-1 - Light Industrial District
1 de 3
Vidéos
Visite extérieure 3D Matterport
Visite 3D Matterport
Photos
Vue depuis la rue
Rue
Carte
